查看完整案例

收藏

下载
入眼浮沤见此台,岭南风致自天开
——明·霍韬
窗影几许,芳华斐然,明暗牵引虚实折转,时光掩映人文雅韵。当四周归于隐逸,现代的笔触折衷了这场静默,画境与诗意相融,流光溢彩间游移于岭南雅致,如诗如颂。
「炳炉」品牌主打粤菜体系,创新地方食味与当代烹饪技艺的融合。于是空间选择在馥郁的人文形意中探讨与当代结合的可能性,汲取岭南风格的传统碎片进行转译,植入地方文化的美学意向,创新现代、多元与融合的形式,呈现用餐体验的新意真趣。
空间汲取岭南建筑元素——满洲窗为灵感,西洋彩色玻璃工艺与传统中式窗棂结合,营造碧波潋滟的光影效果。经芳华洗练,于暗调中弥漫流光烁金的浪漫韵味,深刻挖掘文化内里的美妙感性。
近水知鱼,近山识鸟,近厨辨食。餐厅设置了两个入口,分于左右两侧,同时汇入厨房明档,通过视觉触达内部的结构感官,自然形成潜意识的动线导向。
散客区设置一道似隔未隔的格栅屏风,围合出了不同分区的构造,区块之间显而不露,合理调度座间节奏,营造秩序与美学交织的韵味,沉浸式引导对品牌的探究与体会。
现代的“简”与人文的“繁”通过形式转译,融汇为空间的形与体,充分展现品牌所承载的美学意义与深远的文化蕴藏。循窗景深入空间领域,沉浸于镜面制造的平行世界,虚与实、明与暗,融入空间所承载的万象,交汇形成更为深厚的空间层次。
当视线从结构秩序中游离出来,聚焦于细润之物。灯光微漾下,绿植与器物自成一处端景,或远眺或近观,显现卓然气韵。设计细致推敲景观与动线的尺度比例,前后置景层次得当。人、景、空间互为观照,焕新更多感官切面。
大象无形,大巧不工,空间应如是。包厢区铺展宁静祥和的复古色泽,徜徉于亭台楼阁的朗逸画境,极尽雕琢后气韵兼备,以形传神,回归自然淡雅。
暖光轻巧润色,调和明朗气息。器物与空间互相组合、匹配,融于此时此地的默契,引导食客沉浸于情绪体验的当下。
在现代语境中营造地方饮食与文化体验,同频转译不同的材质语言和设计语调,通过人文意韵的舒展与雅趣,获得对于空间、对于饮食的价值认同,呈现一场记忆中完整独特的用餐体验。
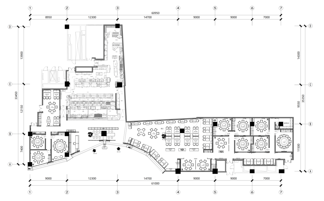
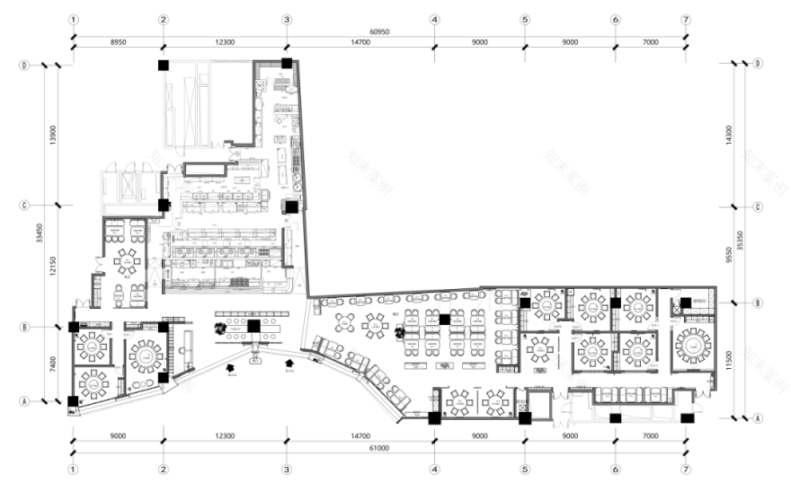
项目平面
项目信息
项目名称:炳炉
项目地址:湖北·武汉
项目面积:928m²
设计公司:深圳市本来空间艺术设计有限公司
设计总监:齐研智
主案设计:梁健豪 黄倩莹 周证印
施工单位:湖北力象装饰工程有限公司
空间摄影:夏旭威
主要材料:绿色木饰面 米黄肌理漆 海棠玻璃 黑色镜面不锈钢
OSD
探索×创新×美学×文化
Original Space Design
since 2017
Interior丨Casa丨Art丨Architecture
本来空间设计
,新派餐饮空间设计倡领者。2017 年创立至今,深研新商业、新空间、新文化,怀着“为真实而设计,传递生活美学” 的设计初心,重构 “探索、创新、美学、文化” 的设计基因,挖掘城市审美\人文\时尚,寻根值得珍视的传统文化,融合多元圈层艺术,业务覆盖建筑丨室内丨软装丨展览,助力传统品牌焕新,协力新锐品牌崛起,以设计复兴东方美学。
OSD WORKS
OSD AWARDS
【1】2023 法国双面神国际设计大奖餐饮空间金奖
【2】第十四届亚太设计精英邀请赛餐饮空间金奖
【3】2023 美国 IDA 设计大奖 Honorable Mention
【4】十八届中国国际建筑装饰及设计艺博会金奖
【5】第十四届 CBDA 设计大赛餐饮空间二等奖
【6】第十二届国际空间设计大赛餐饮空间入围奖
……
Tel: 130 5981 1777
深圳市南山区香山东街1号
康佳之星K-park园区H2栋602-603室
客服
消息
收藏
下载
最近



























