查看完整案例

收藏

下载
Life is like a journey
HOME
IS A HAVEN
抚平躁动
在舒适安然中放松自我
感受家带来的光明与惬意
CASE / 重庆 · 北恒紫云
设计团队 / Design uint
无向空间设计
设计时间 / Design Time
2023年
面积 / Area
110m²
造价 / Price
33万
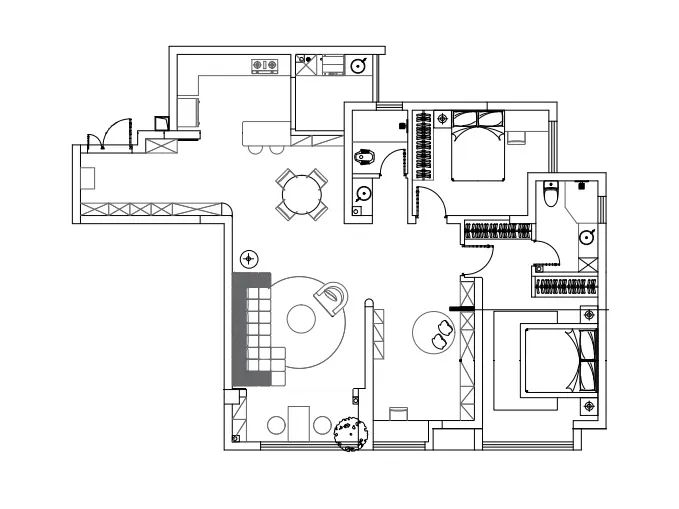
平面 / 结构
PLANAR STRUCTURE
向下滑动查看
设计思路
DESIGN IDEAS
“家,是心灵的栖息之所”,这句话很有道理。它所承载的,是一种对生活的态度,和对未来的期望。
“我想要的不是奢华,而是一个充满着温馨的、能让人安静下来的地方,让我能和自己相处和家人相处。”在这个项目中,设计师用了很多心思来处理空间与人之间的关系,并赋予了它温暖与舒适。就像那句话说的:“家不只是一个房子,更是一种生活方式。”因为喜爱设计,所以选择了这个项目。
实景 / 展示
REAL PHOTOS
玄关
玄关是我们进出家门后第一眼看到的地方,玄关处的艺术雕塑隐约与客餐厅对望,形成了空间与艺术的完美融合。
客厅
全屋无主灯设计,利用筒灯和氛围灯营造出温馨的居住空间。奶白色的墙体搭配黑胡桃木家具,恰到好处,沉稳中不失淡雅。
客厅的设计相对简单,沙发、电视墙选择奶白色,搭配白纱窗帘,简洁而不失层次感。
阳台用木地板抬高与客厅区分开来,摆放茶台,晒着和煦阳光别是一番惬意,在这繁华的都市中扎寻自然的宁静。
厨房
开放式厨房做U型设计,既保证了餐厨区的需求,又能当做拓展吧台。
橱柜和客厅的家具相呼应,使用胡桃木让整体空间更为统一、整洁。
书房
书房安装全透明玻璃移门,不仅拥有良好的采光,还让空间更灵活。打开玻璃移门就是亲子空间,关上玻璃门即是书房又是卧室,书桌面窗能让居住者在工作之余享受窗外的日光景致。
卧室
卧室采用无主灯设计,床头背景墙是用胡桃木做造型,搭配奶油色衣柜和床,让空间看上去更加柔和舒适,整体配色干净大气,给人一种高级感。
往 期 精 选 回 顾
Case Review
客服
消息
收藏
下载
最近























