查看完整案例

收藏

下载
▲
无畏咖啡
“无量无碍,力所无畏。”——《法华经》
无畏咖啡的“无畏”二字取自《法华经》,《法华经》是南北朝之后,中国佛教走向以大乘佛教为主流的重要经典依据,也是中国佛教佛性理论确立以一切众生悉有佛性、都能成佛为主流的重要经典依据。
无畏咖啡位于由地产的售楼中心改造的硬核动力健身房内部。刚到现场的时候我看到的是10年前的地产调性:新中式,奢华,精英。10年后我们经历得太多,
不再那么形
诸于外,而是
求
诸于心。无畏的四位创始人是建筑工程,法律,健身跨界的斜杠青年,刚好在人生起,承,转,合之中。其中还有学佛的居士,相识在自在生成正在做寺庙设计的节点上,理念不用多说,一切都是新的机缘。
▲中庭景观
院子
四面是
黑色的
镜面,空间既无限延伸又相互反照,中间有个高出庭院的平台。对于这个360度无死角的围观空间,我私心觉得——这就是个舞台。北面我们画上巨大的须弥山,
每个人都有自己小千世界,一个小千世界就是我们院子里北面的须弥山。原本的喷泉缩小到西面,
水中巨大的无畏被分解为几个方向,每天在喷泉形成的噪音冲刷中完成无畏意义的解释。南面是三个巨大的花池,原本是要搬走,放进新的巨石和绿植,最后因为工程太大而保留了下来。这也是整个院子索性地面,花池,水池,座椅完全刷黑的转折点,一切杂乱,斑驳,陈旧,不明确,被刷黑退却,白的更白,金的更金,花草更加鲜明艳丽。
也许每个人内心都想创造一个自己的道场,又恰恰成为他人的剧场。
四位合伙人和程工一起在院子里刷黑桌椅,刷黑成了我们设计师和甲方互相调侃的话,我内心想这很像Pina的穆勒咖啡馆。院子比室内下沉1米多,西南角的转折楼梯在一棵树的映衬下意外的成为小姐姐们打卡的重点,我们完成我们认为的
意境之后,这是所有人的舞台,舞台的核心就是现场,这个在现场操作完成的空间是个意外的惊喜,以致于室内只是个常规操作不需赘述了。
离开南宁二十年再回来的我,哪哪儿都像要逆袭的样子。唯独南宁的咖啡店的密度和文化让我尤其感到温暖。真爱做咖啡的是一群特别不急躁能把事物精细化的人,所有味道都有他庞大的线索,全世界的豆子都在我们的杯子里转动。
我也有一帮卯足劲不服气的朋友,为南宁挣出一张张打的出手的牌。也许大家归去来兮,心里总有一个地标,仿佛好像,回家了。
——欧阳李文
▲户外下沉中庭景观
下沉中庭四面皆被巨大的镜面玻璃环绕,中庭内的园林景观布置在镜面效应下得到了四面八方的延伸。
▲中庭喷泉
喷泉底部完全涂黑,将“无畏”二字更清晰的倒影出来。
▲中庭喷泉
▲中庭花圃
靠近通往室内入口的一侧,花圃中的高低错落的芦苇绣球花搭配走向治愈心灵的荒野风格,与枫树营造的肃杀之气形成反差。这里自然也成为了人们钟爱的打卡胜地之一。
▲中庭花圃
▲中庭全景
▲
户
外阶梯
疫情之下,自在生成
不得不重新思考室内和户外的关系,让不同的空间有机结合起来。相对户外利用大场景来展示佛法主题,在室内,我们更多的是通过微小的细节装饰来体现禅意。
自在生成南宁品牌设计,空间改造项目。一帮中年才俊,在各自领域都是事业有成,情怀串起合纵开创东方风骨咖啡品牌,自在生成受邀打造咖啡品牌视觉与改造社交空间,在有限预算下信手拈来,恰到好处的设计处理,在网红空间林立的时代,拓展咖啡品牌东方生活方式,以低调谦和,得体的存在于都市。
——自在生成创始人 王猛
▲室内全景
▲吧台全景
▲室内装饰细节
无畏咖啡不仅做出了苏式点心配西式咖啡的创意,还根据四季和二十四节气的灵感来推出咖啡特调饮品,中西方文化就此产生了碰撞的火花。
▲无畏咖啡产品
佛法和科学其本质都是在追求宇宙本质的真理。无畏咖啡的4位创始人,在探寻自我的过程中有了一个共同的目标——创办无畏咖啡。虽然最初他们只是单纯的想打造一个真正属于自己的心灵归宿。但自在生成因为设计理念上与无畏咖啡企业文化的契合,决定投入自己最大的热情,将细节做到极致,以促成其品牌的诞生。无畏咖啡开业以来,在南宁迅速获得大众的喜爱。几乎每天下午都一位难求。这是无畏咖啡自身的气质外加自在生成的助力顺其自然的结果。
过去的2022年是魔幻的一年,俄乌战争、能源危机、各国持续高通胀、中国疫情政策变化,全球经济趋向低迷。在这个至暗时刻,人们需要停下来沉静冥想,放下所有焦虑和杂念,蓄力前行。也许,50年后,当我们回顾过去,会发现,2023年是最无畏的一年。
▲
无畏咖啡
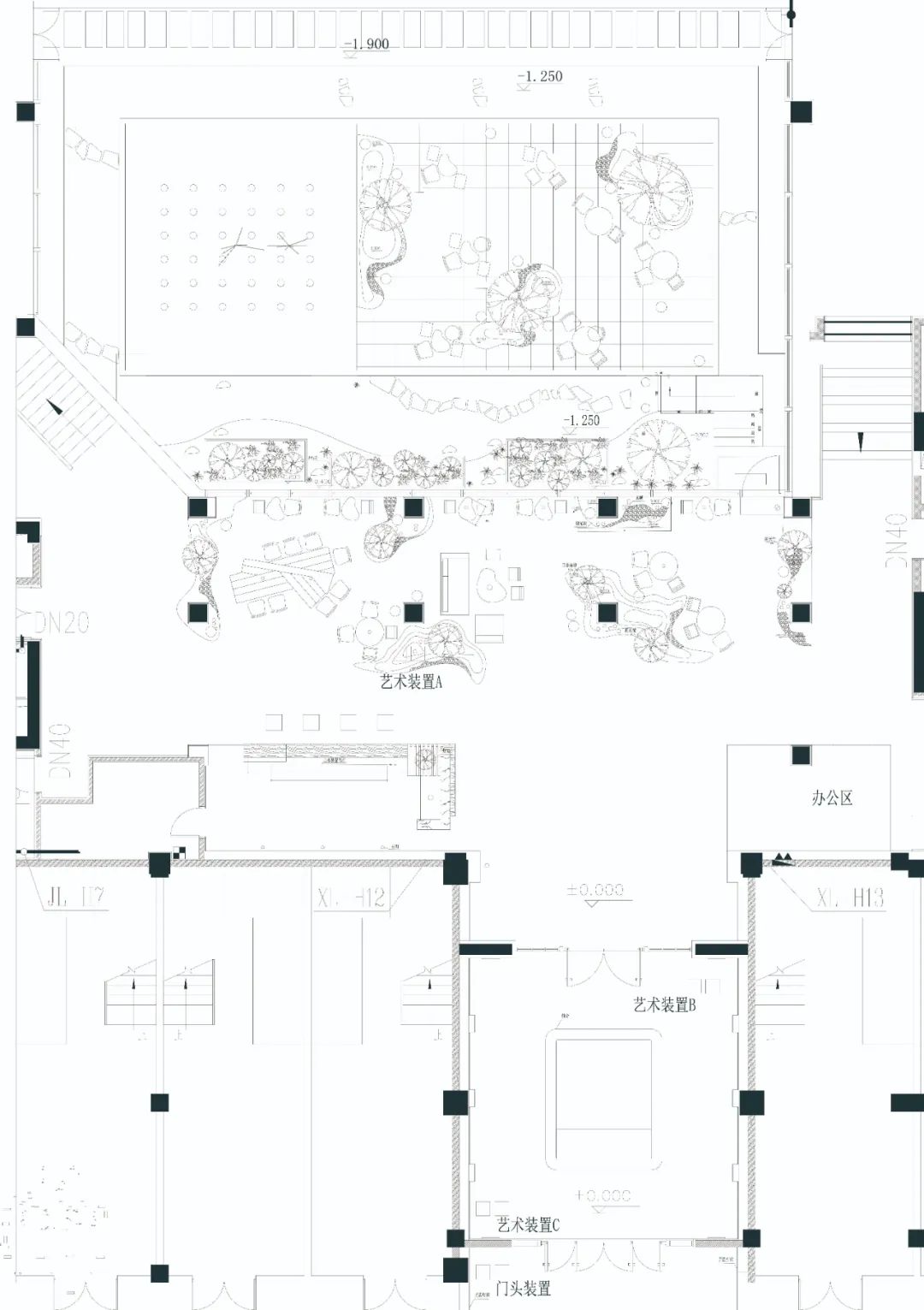
无畏咖啡平面设计图
空间名称:无畏咖啡
空间类型:餐饮空间、咖啡厅
空间地址:南宁市青秀区东葛路161号硬核动力健身空间内
设计公司:自在生成
设计总监:欧阳李文、王猛
设计团队:莫泊蕾,叶展鹏
,颜渝,林思昶
施工深化:程良开
项目面积:400m²
摄影:宋凯迪
影片:Amanda提供
撰稿:林西,白方格
» 关于我们 «
ONTOGENESIS自在生成跨学科设计,位于汉口原英租界的老沙逊洋行二楼。由设计师王猛和建筑师欧阳李文共同创立,提供在地全球化的建筑、室内、前期规划、平面设计、艺术策展以及中古家具买手服务。
» 业务联络 «
自在生成武汉公司业务联系/
TEL:13006377036
武汉江岸区洞庭街32号2楼自在生成ONTOSPACE
(洞庭街 南京路与青岛路路段)
自在生成南宁公司业务联系/
TEL:15618633341
广西南宁市青秀区东葛路161号绿地中央广场
A7号楼1526-1527 自在生成
客服
消息
收藏
下载
最近






















