查看完整案例

收藏

下载
知性稳重的灰色调、自由随性的局部线条,以及大胆前卫的视觉解构,勾勒了抽象或写实的空间文意。
超时空的艺术重塑,才是摩登而现代。
时至今日,复古文化与现代气息的相融早已不再那么拔新领异,但从不同的视角去演绎这场现代摩登的面孔,设计师给出了另一种表达。
书本、画册,甚至爱不释手的白瓷水杯、人形模具,在金色的台面上更显精致。
看似随性而松散的配置,给足了空间灵性和呼吸。
以张为发,以弛为蓄,简洁中不失强烈的装饰,再强调材料的高贵质感与光泽,明暗互衬,对比鲜明。
大面积的灰色大理石与深红的布艺碰撞,浓烈而深沉,庄严而优雅,竟不自觉地让焦点停留。
摩登是反叛的,它还热衷于表现不受重力约束的动感,把室内空间的面和线以一定的视觉延伸拉成斜向,完整对立于传统的构造标准。
而悬浮式的链状垂灯正是利用了这个原理,但点到为止的好处,营造出动人心魄的心理体验,欲坠而不坠。
多元文化与艺术的盛行,是源于新一代社会精英已不再满足单一的格调,他们渴望表达自己的生活态度,确立自己的生活方式。
不管是白色的毛绒芦草,还是简笔色彩的拿破仑挂画,都试图通过欧洲大革命思想底蕴和现代文明的碰撞、交织,刻画现代人的生活和精神追求。
卧室的设计延续了客厅的用意,从墙体到软装,淡色调为主,不同灰度的色块组合拼接,搭配酒红色的布艺,格外醒目,精细车线工艺以及丝滑的材质尽显雍容大气。
粗犷拱形般的墙面装饰用摩登风格的思维达到喜剧般的建筑解体,既对抗了原本的平面秩序,又与窗台呼应,有意锻造了肢解建筑、立体断层的感受,觥筹交错,带着未知与猎奇,正是它的魔力。
设计最大化限度地挖掘相邻场域的渗透与交互,保证了个体功能独立的同时,又强化了整体延续性。
深色的木面和金属边框为空间勾勒出了清晰的轮廓,与灯具等空间摆设呈现方中有圆、圆中有方的形态,雅致而内蕴。
不经意间,阳光顺着窗口倾泻而入,斑驳的光点滴落在泛黄的芦苇,熏着书页微微的香气,沁人心脾。
我们在温软岁月里浸泡着,一边疼痛,一边勇敢。
不管生命有过几次忘乎所以的疯狂,终愿在静谧的角落里,嚼着涩涩的文字。
尽疏珍禽添尔雅,更书香草续离骚。枕书香入梦,何尝是生命中最美的感觉。
大凡优美的事物,在其中总是包含着一定的奇异性,不规律的壁灯,想抓住一切的手,每一细节都潜藏着一种内在力量的外放。
大胆、张扬、简约、时尚……,不羁精神和绅士风度成就了新时代所谓的“雅痞”风范,就像摩登与现代的打磨,张弛有度,才收放自如。
摩登风格的规则是“反对一切的规则”,无论是毫无关系的复杂性、爆炸般的空间,还是近乎疯狂的不和谐,都成为它最无法割舍的符号。
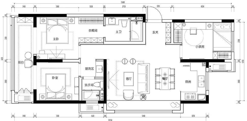
▲平面图
项目信息
项目名称︱芜湖伟星国宾台114户型样板房
项目地址︱安徽 芜湖
项目面积︱114平方
室内设计︱深圳太合南方建筑室内设计事务所
设计团队︱王五平 刘志勇 刘春燕 周红敏
项目摄影︱形界空间
设计总监
王五平
中国知名室内设计师,高级室内建筑师,深圳室内设计师协会(SZAID)理事,从事室内设计16年,深圳太合南方建筑室内设计事务所创始人︱设计总监。
关于太合南方设计
深圳太合南方建筑室内设计事务以国际化的视野的经验,致力于打造国内顶尖的高端会所、售楼处样板房、别墅豪宅、办公商业空间等室内设计精品。我们坚持原创设计,在业内外取得了不俗的佳绩和一致好评。
这么多年来,公司主张设计创新是推动公司前进的动力,高品质的设计和高效快捷的服务在业界赢得了很好的声誉,同时在行业内也获得了国内外多项设计大奖。
小编插话
如您喜欢
太和南方设
计
作品 想委托他们设计
我们帮您对接该设计机构!
新品推荐
2020高清实景案例大全
客服
消息
收藏
下载
最近

































