查看完整案例

收藏

下载
Lfie is like a journey
HOME
IS A HAVEN
让房间产生温度的
不仅仅是收纳、功能、颜值
还有生活家对家的热爱...
CASE / 重庆 · 绿城
设计团队 / Design uint
无向空间设计
设计时间 / Design Time
2022年
面积 / Area
130m²
造价 / Price
25万
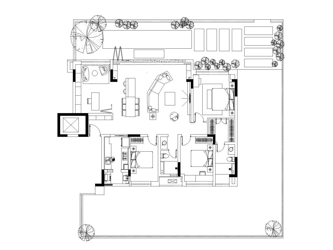
平面 / 结构
PLANAR STRUCTURE
向下滑动查看
设计思路
DESIGN IDEAS
打造新极简主义的关键,在于清晰立体的线条元素、有特色的点睛设计单品,无论是一些独特的装饰细节,还是或经典或新潮的软装单品,都能在家中创造一种平静、有个性的氛围。
实景 / 展示
REAL PHOTOS
客厅
本案为精装房改造,客厅设计简洁干净,尽显轻松、自然、舒适。无主灯设计让家的意境更自在有趣。整个客厅没有多余的色彩,往上至下,同一色系家具提升空间整体质感的同时,也奠定了整个空间的统一性。
餐厅
大理石岛台配上餐桌,更显温润简约。岛台可用作西式使用,也可作为餐边柜,收纳客厅以及餐厅的物品。灯光是食物最好的贩卖者,所以餐厅并未延续无主灯设计,而是以艺术灯具作为照明工具,完美践行“人居住于家,家应服务于人“的理念。
书房
当人们的生活方式趋向于多元化,一个工作休闲两相宜的多功能空间显得尤为重要。开放式的大开间能塑造多种功能,工作、生活的界限弱化,使得相应的空间分区也会减少。没有固定墙体的遮挡,通过折叠门或幕帘进行遮挡,即可实现某一区域的独立或开放。
主卧
主卧的色调偏深沉,大限度的考虑了舒适度和便捷度,自然光和顶面的配置光源很好的营造出卧室空间的舒适氛围。
次卧 / 儿童房
让自然光更好地进入室内,窗边书桌不仅起到收纳作用,还能让孩子有一个学习的空间。床头安装造型壁灯,柔和的光线恰好充当小夜灯。
往 期 精 选 回 顾
Case Review
客服
消息
收藏
下载
最近























