查看完整案例

收藏

下载
因为欣赏我们在深圳某项目的作品,所以深圳汉京的甲方邀请我们在深圳山樾湾这个项目展开合作。
项目位置非常好,在深圳南山前海板块这个稀缺的热点区位。而山樾湾项目有 58 万方的综合体量,以小户型为主,覆盖年轻家庭、刚需过渡客群,项目中 70㎡ 两房户型在项目中占比高达 76%(其中 70B 占比 33%、70C 占比 13%)。
而甲方的诉求就是提升产品力,提升现有产品的居住体验,提供更多的居住可能性,从而带动销售。
我们来看一下全部的 70 面积段的户型
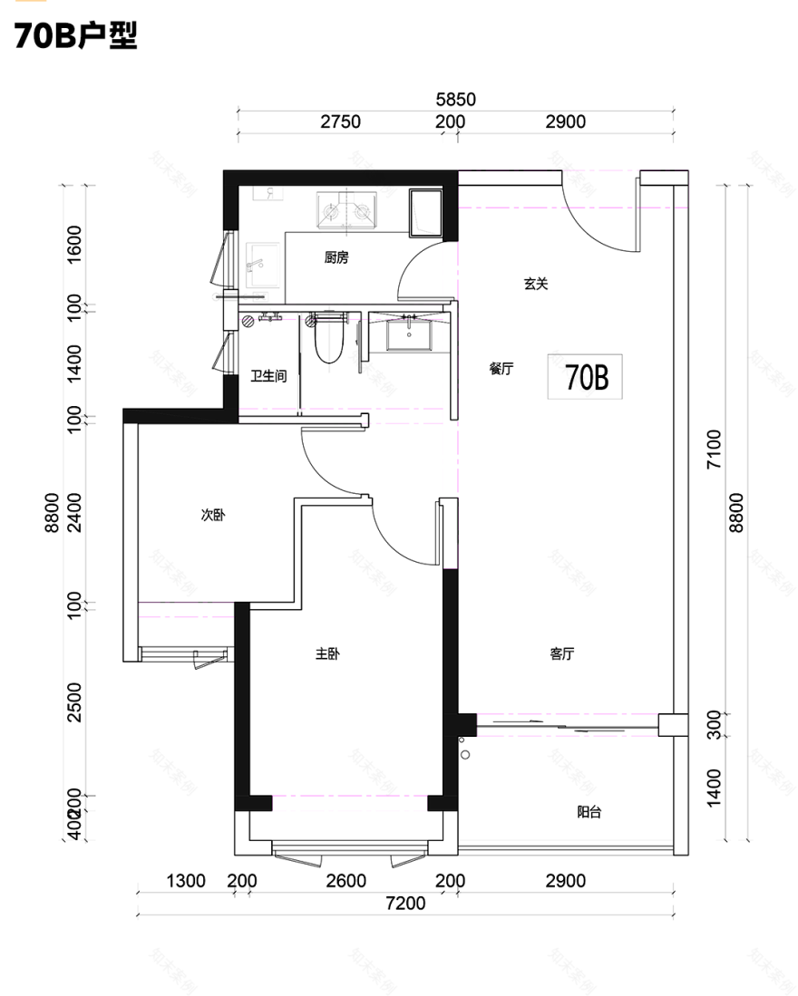
其中 70A 为两房户型,而我们的求解重点是 70B、70C 这两个 2 面宽的户型。好吧,我们的起手式还是从客研开始,走访项目,深访客户和销售。
通过客研同事走访项目和竞品,深访了销售和客户,我们基本建立了对项目的手感,我们也提出了几个观念并和甲方取得了共识。
那么我们对项目的理解,一言以蔽之:小有小的好处,比如小面积的房子总价低,所以我们要解决的核心的问题不是房子小,也不是怎么让小房子看起来大,而是在小空间中,客户不知道怎么经营自己未来的生活,客户面对小户型缺少想象力,而我们要做的是,给客户提供一个明确具体的生活指南,为客户将来要面对的生活挑战,前置性的给出答案。
换而言之,小户型低总价,解决了上车门槛的问题,让客户「有得住」,而我们的样板间需要解决的是,怎么才能在小户型中「住得下且住得好」的问题;
面对「70㎡怎么做两房」的命题,我们拿出《梦想改造家》式的工作方式展开对户型优化,而无论我们的哪一个户型平面,核心要解决的问题都是:1、竖厅布局有空间实现腔体化,打破竖长的涵洞感,同时处理好功能问题2、在两室的房子里最少放上三张床3、完备功能,提供丰富场景
让我们从最难处理的 70B 户型开始。
我们最后稳定的设计平面(过程中有过 3 个不同方向的平面探索,最终甲方选择了这个平面方式)
这一套样板间我们打算往女性化的,柔软的,温馨,松弛的方向打造。
接下来我们再来看 70C 户型
这一套样板间,我们打算往男性视角,有趣,酷的方向打造。
我们是一家帮助地产商做空间产品研发的公司,我们比较擅长从产品视角切入项目,以发现问题和解决问题,最终为甲方提供差异化的产品力,提升甲方的市场竞争力。
我们更是一个致力于通过:“研究中国人的生活方式,提升中国人的居住品质”为使命的团队。我们打算心无旁骛的把这事干上50年。
客服
消息
收藏
下载
最近
































































































































