查看完整案例


收藏

下载

附件

翻译
The project’s concerns: In 2011, the Gaumont-Pathé group decided to renovate the existing building in order to upgrade the cinemas and to improve user comfort. This was part of a broader scheme to gradually update the image of their chain of cinemas, which often occupy exceptional, city-centre sites, but suffered from being seen as old-fashioned. The aim is to transform them into high-quality cultural venues, animated day and night, and suffi ciently fl exible to accommodate a varied programme, mixing cinema with other cultural events: the image of the city cinema was to be entirely rethought. Through this project, Gaumont-Pathé aims to open a whole new chapter for its cinema architecture, a chapter that is contemporary and innovative, where the accent is on comfort as well as audio and visual quality for the fi lm theatres themselves, but also on original and generous public spaces for before and after the fi lm.
The site – the context: The Alésia multi-screen cinema is on the edge of a large urban space. Its main facade faces due west onto the broad Boulevard du Général Leclerc, a major thoroughfare in southern Paris. The building now comprises eight screens and occupies a fairly deep site, with a second facade on the side street, Rue d’Alésia. The main facade on Boulevard du Général Leclerc is long (about 25 metres), and framed by two adjacent buildings, very different from one another: a seven-storey apartment building to the right, a two-storey, mixed-use building to the left.
The history of the building: in constant evolution On 4 February 1921 a temple to cinema, the ‘Montrouge Palace’, opened to the public on this site. Built entirely in reinforced concrete, audacious for the time, it comprised a single, magnifi cent, 2800-seat fi lm theatre. In 1930 the Gaumont chain took it over. In 1951 the building was completely transformed, with a gleaming new cinema inaugurated on 10 October 1951: the new 2000-seat fi lm theatre boasted a large balcony and preserved the majestic reinforced concrete arcades, but lost the boxes on either side of the stage. It was equipped with a large screen to cater for the growing trend of large-format fi lms, which led to the advent of the great ‘CinemaScope’ fi lms in 1953. In the 1960s the cinema shed its ‘Palace’ designation and became simply the ‘Montrouge Gaumont’. In 1973, like so many others, the large theatre was partitioned into four and the cinema became the ‘Gaumont-Sud’. Screen 1 (900 seats) was made by extending the old balcony, while screens 2 and 3 (400 and 300 seats respectively) were made from the old stalls. The small screen 4, a new, 120-seat theatre, was placed up above
In December 1986 a new era began with the transformation to seven screens and, above all, a new sky-blue facade sporting a giant clapperboard. The new screens 4, 5 and 6 (100, 150 and 150 seats) were made by hiving off space from the rear of screen 1 (reducing its capacity to 520 seats), screens 2 and 3 were untouched, and the old Gaumont-Sud screen 4 became screen 7.
A little anecdote regarding the clapperboard: it was mechanised to clap shut, but in the face of protest from local residents over the noise, was soon immobilised .... The last renovation was completed on 26 May 2004, with the inauguration of a new ‘Gaumont-Alésia’. It involved the complete transformation of all the spaces (screens, halls, circulation...), in line with a new identity for Gaumont cinemas designed by Christian Lacroix. At this point the cinema was given a new facade, less fl amboyant than its predecessor.
A NEW CINEMA FOR THE 21ST CENTURY The project has two main aims: - To showcase the fi lm theatres and visually identify them as physical spaces, as much from within the building as from without. - To showcase the fi lms, this time directly on the facade. Here the fi lms themselves, rather than the theatres, take their place ... The facades are covered in a kind of huge curtain of LEDs, which is used to screen a range of animation: fi lm extracts, stills, colours and abstract images can be used to bring the facade to life. These are the means by which the cinema hopes to resume its position within the city: internally, the architecture aims to display the cinema’s unusual and spectacular volumes, while externally it envelops itself in fi lm extracts and moving images, which also speak of cinema ....
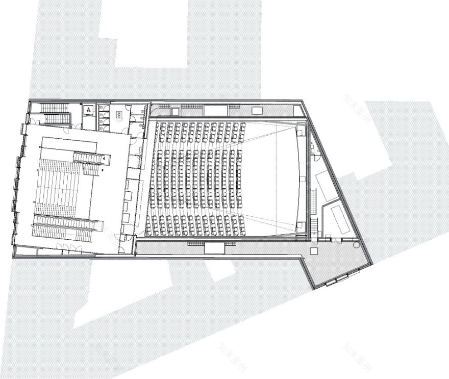
An assembly of theatres, stacked and slotted together The fi lm theatres are arranged within the building so that virtually every volume is visible and identifi able. The contents of the project form a sort of vertical sculpture, where the theatres slot into one another like a puzzle. The tiered seating in the theatres is made visible on its underside, forming magnifi cent stepped ceilings. These ceilings are then extended into the adjacent space to create partially tiered lobby areas: little amphitheatres that slope down towards the theatre entrances. These create spaces for informal projections, supplementary spaces where yet again cinema is present and disseminated.
It is almost as though the stalls in the fi lm theatres had reached out beyond their boundaries to welcome the public into a universe bathed in fi lm and projections ... The public is welcomed in a vast space beneath tiers of theatre seating As already mentioned, the aim was to make the project more fl uid and accessible to all members of the public: entrance is made via a large hall, which runs the full depth of the building and links the Boulevard de Général Leclerc directly to the Rue d’Alésia.
Within this vast, light and airy space are all the reception services: fi rst in line from the Boulevard entrance are ticket sales, an information point, automated ticket and information points and refreshments, with a seating area and a cafe. Beyond these, to the left, is access to the different theatres, above and below, and then a quieter space towards the Rue d’Alésia entrance, with areas for screening fi lms. This sculpted space is tucked into a hollow beneath the tiered seating of one of the theatres above. All the circulation interlinks within the majestic, triple-height atrium. A series of escalators and walkways behind the facade lead to the different mezzanine levels and upper-level theatres. The public can be seen, and can move around to look at the spaces from below or from above, as well as enjoying views onto the outside world.
Within this array of stairs, walkways and escalators, large areas of tiered seating are arranged. These punctuate the public spaces, providing further spaces for sitting and chatting before going in to see a film. With their backs to the facade, these little amphitheatres address the fi lm theatre wall, onto which moving images can be projected and viewed from the banked seating. A sneak preview of the film, for example ...
客服
消息
收藏
下载
最近












































