查看完整案例

收藏

下载
Metyis数字园区由UNUM建筑事务所创始建筑师Miguel Ibraim da Rocha设计,体现了当代办公空间的战略性与创新性愿景——在这里,建筑成为提升人才潜能、激发创造力与优化绩效的主动工具。
The Metyis Digital Campus, designed by Miguel Ibraim da Rocha as founding architect of UNUM Architecture, embodies a strategic and innovative vision of the contemporary workplace — where architecture becomes an active tool for enhancing talent, creativity, and performance.
▼项目鸟瞰,aerial view of the project © Ivo Tavares Studio
▼项目外观,exterior of the project © Ivo Tavares Studio
建筑根植于对场地地形与自然环境的敏感融合,以清晰、优雅而永恒的建筑姿态展现自身。纯净的体量、高贵的材料与精致的构图共同表达出一个全球化品牌所代表的卓越、精致与前瞻精神。
Rooted in a sensitive integration with the site’s topography and natural surroundings, the building asserts itself through a clear, elegant, and timeless architectural gesture. Clean volumes, noble materials, and a refined composition reflect the identity of a global brand that values excellence, sophistication, and forward – thinking.
▼清晰、优雅而永恒的建筑姿态,a clear, elegant, and timeless architectural gesture © Ivo Tavares Studio
▼纯净的体量,clean volumes © Ivo Tavares Studio
▼大理石立面,marble facade © Ivo Tavares Studio
室内设计着重营造一种“奢华”的氛围——并非以堆砌与浮华为目的,而是通过品质、细节与空间体验来实现。这种奢华被理解为空间、光线与材料性的和谐统一,它并非终点,而是一种激发灵感的催化剂。通过营造开阔、明亮、精心设计的环境,项目强化了Metyis所推崇的创造力与高绩效文化。
The interior was conceived with special attention to crafting a luxurious atmosphere — not in excess, but through quality, refinement, and spatial experience. This sense of luxury, understood as the harmony of space, light, and materiality, is not an end in itself, but a catalyst for inspiration. By offering spacious, luminous, and carefully designed environments, the project reinforces Metyis’ culture of creativity and high performance.
▼营造一种“奢华”的氛围,crafting a luxurious atmosphere © Ivo Tavares Studio
▼营造开阔、明亮、精心设计的环境,the harmony of space, light, and materiality © Ivo Tavares Studio
▼空间、光线与材料性的和谐统一,
the harmony of space, light, and materiality © Ivo Tavares Studio
▼一层大堂,the lobby on the ground floor © Ivo Tavares Studio
▼大堂空间,the lobby space © Ivo Tavares Studio
▼楼梯细部,the staircase detail © Ivo Tavares Studio
从协作区到独立办公室,每一个空间都旨在激发自由思考、专注与共享创新。精心挑选的饰面、标志性家具的融入以及流畅的动线设计,共同塑造出一种兼具创新与低调优雅的叙事。
Each space — from collaborative areas to private offices — was designed to stimulate free thinking, focus, and shared innovation. The thoughtful selection of finishes, integration of signature furniture pieces, and fluid circulation design all contribute to a narrative of innovation and understated elegance.
▼通高的中庭,double-height atrium © Ivo Tavares Studio
▼通高的中庭,double-height atrium © Ivo Tavares Studio
▼激发自由思考的空间,space designed to stimulate free thinking © Ivo Tavares Studio
▼会议室外观,exterior of the meeting room © Ivo Tavares Studio
▼会议室空间,the meeting room space © Ivo Tavares Studio
▼开阔的办公空间,the open office space © Ivo Tavares Studio
▼引入自然光线,the introduce of natural lights © Ivo Tavares Studio
Metyis项目作为建筑表达的典范,深刻理解办公空间在象征性与功能性层面的力量,将其转化为企业文化的真正驱动力——一座以含蓄的奢华激发创造能量、让建筑积极支撑雄心的建筑。
The Metyis project stands as an architectural expression that understands both the symbolic and functional power of the workplace, transforming it into a true driver of corporate culture. A building where discreet luxury becomes a source of creative energy — and where architecture actively supports ambition.
▼灯光下的建筑,building under lights © Ivo Tavares Studio
▼建筑夜景,the night view of the building © Ivo Tavares Studio
▼场地平面,site plan © UNUM
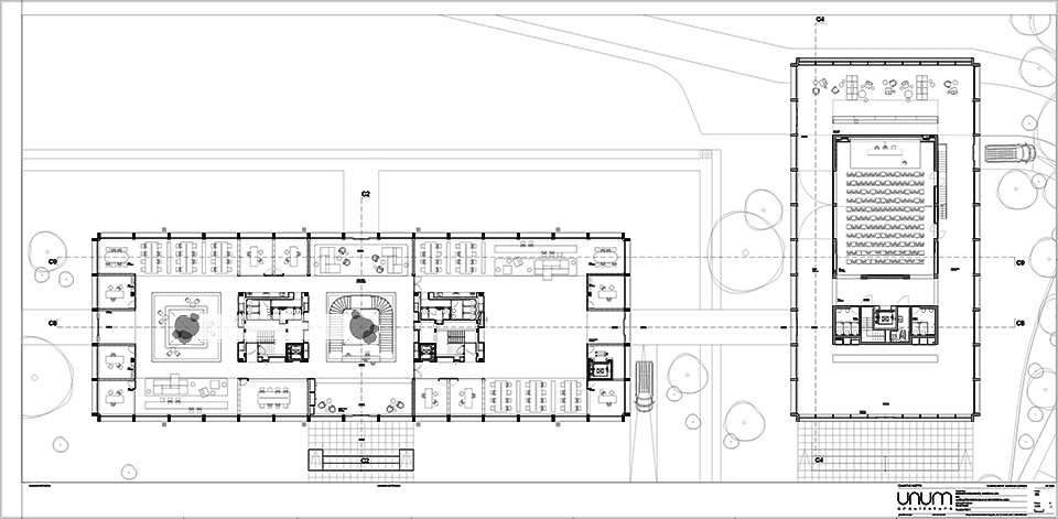
▼一层平面,ground floor plan © UNUM
▼二层平面,first floor plan © UNUM
▼屋顶平面,roof plan © UNUM
Project name: Metyis Digital Campus
Architecture Office: UNUM – Oficina de Projectos de Arquitectura
Main Architect: Miguel Ibraim da Rocha
geral@unum.pt
Location: Gondomar, Portugal
Year of conclusion : 2025
Total area: 4013.70 m2
Engineering: Engwork
Landscape: UNUM
Architectural photographer: Ivo Tavares Studio
Website :
客服
消息
收藏
下载
最近














































































