查看完整案例

收藏

下载
广东理工职业学院中山校区四期工程体育馆,项目位于中山市五桂山龙石村石鼓。基地所处位于中山市五桂山脉腹地, 毗邻港澳和珠海经济特区,北面与中心城区接界, 南面与南部中心及三乡对接,西邻板芙,东面是翠亨新区。
© 广东理工职业学院+华南理工大学+江苏浩森建筑设计有限公司
The Phase IV Gymnasium Project of Zhongshan Campus, Guangdong Polytechnic Institute, is located in Shigu, Longshi Village, Wuguishan, Zhongshan City. The site lies in the central area of the Wuguishan mountain range, adjacent to Hong Kong, Macao, and the Zhuhai Special Economic Zone. It borders the city center to the north, connects with the southern center and Sanxiang to the south, adjoins Banfu to the west, and faces Cuiheng New District to the east.
▼校园东南侧整体鸟瞰,Aerial view of the southeastern part of the campus© 目外摄影
▼西南角鸟瞰,Aerial view from the southwest corner© 是然建筑摄影
▼南侧鸟瞰,Aerial view from the southwest corner© 目外摄影
▼主立面夜景透视,Night view perspective of the main facade© 是然建筑摄影
▼东南角透视,Perspectiveview from the southeast corner© 目外摄影
一、规划整合:重塑校园场所精神
I. Planning Integration: Reshaping the Campus Spirit of Place
介入项目时,校园前期建设已部分完成。通过实地调研和分析,梳理发现校园内部建筑界面较为零散,绿地及公共空间缺乏系统性整合,未形成积极的核心空间,导致校园整体形象辨识度较弱。
When the design team became involved, part of the campus construction had already been completed. Through on-site investigation and analysis, it was found that the campus building interfaces were relatively fragmented, the green spaces and public areas lacked systematic integration, and no active core space had yet been formed, resulting in a weak overall campus identity.
▼项目区位,Project location© 江苏浩森建筑设计有限公司
▼校园现状,Current campus conditions© 华南理工大学
原规划中风雨操场、游泳池、会堂等功能分散布置于校园内三个地块,不仅使用便利性欠佳,且土地利用效率较低。设计将三者的功能和用地进行整合,集约化布置于同一个建筑地块内,既显著提升了土地利用效率、实现用地集约,又有效强化了功能间的联动效应,提升整体使用价值。
In the original master plan, the gymnasium, swimming pool, and auditorium were scattered across three separate plots within the campus, which not only compromised convenience of use but also resulted in low land-use efficiency. The new design integrates these functions into a single site, achieving a compact and efficient layout. This approach significantly enhances land utilization, fosters synergies among the different functions, and increases the overall usability and value of the complex.
▼规划整合前后校园总平面图对比,Comparison of campus master plan before and after planning integration© 华南理工大学
设计将融合三种功能的体育馆调整至图书馆北侧地块,强调出校园的 “T”形空间结构,体育馆与图书馆遥相对望,二者相得益彰,共同构筑校园的核心空间与视觉焦点。二者围合而形成的宽敞开放空间,既丰富了校园景观层次,又为师生提供了多元聚合的活动场域。并且设计希望通过新建筑的植入优化既有零散空间,完善校园空间系统,强化场所精神。
The gymnasium, which integrates three functions, is relocated to the plot north of the library, emphasizing the “T-shaped” spatial structure of the campus. Facing each other across an open courtyard, the gymnasium and library complement one another, together forming the campus’s core spatial and visual focus. The spacious open area enclosed by the two buildings enriches the spatial hierarchy of the campus landscape while providing a diverse and dynamic venue for student and faculty activities. The design aims to optimize fragmented existing spaces through the insertion of the new building, improving the overall spatial system and strengthening the campus’s spirit of place.
▼优化前后校园规划结构对比,Comparison of campus planning structure before and after optimization© 华南理工大学
同时,以核心建筑为依托构建景观绿轴,强化场所感。绿地系统与自然山体沿核心建筑延展,形成贯穿校园的景观脉络,进一步优化校园生态环境与空间辨识度。
At the same time, a landscape green axis is established around these core buildings to enhance the sense of place. The green system extends from the core buildings toward the surrounding natural hills, forming a continuous landscape network that traverses the campus, further improving the ecological environment and spatial identity.
▼顶视航拍,Aerial top-view photograph© 是然建筑摄影
此外,通过建筑界定和围合校园外部界面和内部空间。校外侧通过四期实训楼的序列式界面设计,打造校外道路进入校园的第一形象展示面;四期宿舍楼以规整排列强化校园空间秩序感,与核心区域形成视觉与功能上的良性反差,完善校园整体空间逻辑。
In addition, the architectural layout helps define and articulate both the external and internal interfaces of the campus. On the external side, the sequential façades of the Phase IV training buildings create a strong visual frontage, serving as the first impression for visitors entering the campus. The Phase IV dormitory buildings, arranged in an orderly manner, reinforce the sense of spatial order within the campus and create a complementary visual and functional contrast with the central core area, thereby refining the overall spatial logic of the campus.
▼东南角鸟瞰,Aerial view from the southeast corner© 目外摄影
二、形象塑造:构建校园视觉地标
II. Image Formation: Creating a Visual Landmark on Campus
体育馆作为校园的中心建筑,通过雕塑感的建筑体量,以清晰的空间逻辑强化核心辨识度,成功实现对校园整体空间的统领,成为整个校园的视觉核心。弧线型形体打破校园传统方正单一的形象,简约的几何形态与图书馆形成视觉对话,进一步强化 “双核” 的空间记忆点;同时,建筑与校园内山体遥相呼应,形成 “建筑 – 自然” 的和谐对话。
As the central building of the campus, the gymnasium establishes itself as a visual landmark through its sculptural massing and clear spatial logic, reinforcing the core identity and serving as a unifying element for the entire campus layout. Its curved form breaks away from the traditional orthogonal and monotonous campus image, while its simple geometric expression creates a visual dialogue with the library, further emphasizing the campus’s “dual-core” spatial memory. At the same time, the building resonates with the surrounding hills, forming a harmonious dialogue between architecture and nature.
▼东南角鸟瞰,Aerial view from the southeast corner© 目外摄影
建筑材料采用金属屋面和混凝土屋面,通过两种材质的对比,体现体育馆与众不同的风格色彩,向上动感的造型,体现着校园的精神核心。整体立面设计大气又不失学院气息,红棕和灰色相间的建筑外墙搭配,呼应了原有校园建筑的现代学院气息。
The gymnasium adopts a combination of metal and concrete roofing, using the contrast between the two materials to express a distinctive architectural character. Its upward, dynamic form embodies the spiritual core of the campus. The façade design is both dignified and academic, with alternating red-brown and gray tones that echo the modern collegiate style of the existing campus buildings.
▼立面草图,Facade sketch© 孙一民工作室
▼概念草图,Concept sketch© 华南理工大学
夜间,体育馆弧形天窗的内透光和简洁几何化的场地照明相互交织,使得其成为校园夜间最醒目的视觉焦点。
At night, the internal glow from the gymnasium’s curved skylight interacts with the clean, geometric lighting of the surrounding plaza, making it the most striking visual focal point on campus after dark.
▼主入口广场透视,Perspective view of the main entrance plaza© 目外摄影
▼西南角夜景透视,Night perspectiveview from the southwest corner© 是然建筑摄影
三、场地适配:顺应高差的场地设计
III. Site Adaptation: Terrain-Responsive Design
整个场地南北高差显著,约达7米。设计利用地形高差,将游泳馆和训练馆精心设置于平台之下,巧妙地化解了南北道路之间存在的高差难题。体育馆的南面,经由开阔的大广场,人们能够径直进入体育馆主馆;而北面也充分顺应地势,可直接从道路便捷地进入游泳馆和训练馆。各场馆的出入口布局科学合理,使得流线之间互不干扰,为人员的进出和活动提供了极大的便利。
The site features a significant north–south elevation difference of approximately seven meters. The design makes full use of this topographical condition by placing the swimming hall and training hall beneath the main platform, ingeniously resolving the height disparity between the northern and southern roads. On the south side, visitors can access the main gymnasium directly from a spacious plaza, while on the north side, the swimming and training halls are conveniently accessible from the adjacent road, following the natural terrain. The entrances of each venue are arranged with clear functional logic, ensuring smooth and non-overlapping circulation, which greatly enhances accessibility and operational efficiency.
▼东南角透视,Perspective view of the southeast corner© 目外摄影
四、功能复合:多元需求导向的平面设计
IV. Functional Integration: Plan Design Oriented Towards Diverse Needs
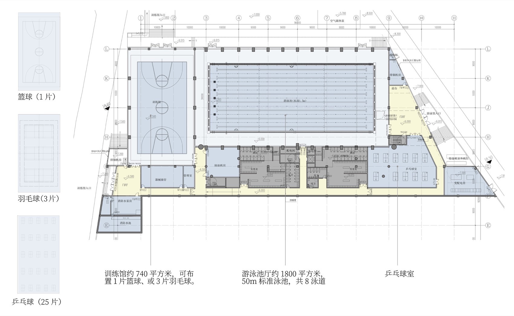
建筑主要功能包括:主馆、游泳馆、训练馆等功能。设计在保障基础功能的前提下,通过 “空间复合利用” 最大化拓展使用场景。其中训练馆可满足篮球、羽毛球、乒乓球等运动;主体育馆可满足多样体育运动赛事和训练,同时可用作学校礼堂等文艺演出和典礼。实现 “一馆多用” 的使用价值,提升场馆利用率。
▼主场馆多功能使用分析,Multi-functional analysis of the main venue© 华南理工大学
▼训练馆及游泳馆平面功能分析,Layout and Functions analysis of the training gym and swimming © 华南理工大学+江苏浩森建筑设计有限公司
The main functions of the building include the main gymnasium, swimming hall, and training hall. While ensuring the fulfillment of basic functional requirements, the design maximizes spatial adaptability through multi-functional spatial integration. The training hall accommodates activities such as basketball, badminton, and table tennis, while the main gymnasium can host a wide range of sports events and training sessions. It can also serve as a school auditorium for performances and ceremonies, realizing the concept of “one venue, multiple uses” and significantly improving the overall utilization efficiency of the facility.
▼比赛大厅透视图,Perspective view of the competition hall© 目外摄影
五、技术创新:可持续视角下的技术整合与创新
V. Technological Innovation: Integration and Innovation from a Sustainable Perspective
体育馆上部采用空间网架结构,最大跨度达 105 米。该结构形式兼具高效的空间利用率与优质的视觉效果,能营造大跨度的无柱场地,完美适配体育场馆这类大型公共建筑需求。其通过节点将各杆件紧密连接,形成稳定的整体结构,可有效承受各类荷载,充分保障建筑的安全性与稳定性。下部游泳馆则选用钢筋混凝土结构,借助规整的结构序列,赋予泳池空间独特的秩序美感。
▼建设过程照片,Construction process photos© 华南理工大学
The upper part of the gymnasium adopts a space frame structure with a maximum span of 105 meters. This structural system combines high spatial efficiency with an excellent visual effect, creating a large, column-free space ideally suited for the functional and aesthetic requirements of major public sports facilities. The closely connected members and joints form a stable structural network capable of bearing various loads, ensuring the building’s overall safety and stability. The swimming hall below uses a reinforced concrete structure, whose orderly structural rhythm imparts a unique sense of spatial harmony and compositional beauty to the pool area.
▼比赛大厅透视图,Perspective view of the competition hall© 目外摄影
▼游泳馆室内透视图,Interior perspective of the swimming pool© 目外摄影
主体育馆屋面材料选用焊接不锈钢屋面,其为焊接工艺形成整体式屋面,耐腐蚀性能、抗风揭性能强,且无需另外增加装饰板,既达到美观度的要求,同时又节约造价。▼焊接不锈钢屋面局部与节点做法,Details and joint techniques of welded stainless steel roof© 华南理工大学+江苏浩森建筑设计有限公司
The main gymnasium’s roof is constructed with a welded stainless-steel roofing system, which forms an integrated surface through welding techniques. This material offers excellent corrosion resistance and wind uplift performance, while eliminating the need for additional decorative cladding. The result is a roof that meets both aesthetic and functional demands, achieving visual refinement with cost efficiency.
▼建筑局部,Architectural details© 是然建筑摄影
▼入口环廊透视,Perspective view of the entrance corridor© 目外摄影
主体育馆大厅采用天窗与导光管结合的双自然采光组合设计。南侧天窗作为场地的主光源,北侧导光管主要照亮坐席区并补充场地光线,确保在无人工照明时仍能满足场地照度要求,有效节约平时使用中的用电能耗。▼采光分析,Daylighting analysis© 华南理工大学
▼导光管辅助照明,Light tubes providing supplementary illumination© 华南理工大学
The main gymnasium adopts a dual natural lighting system that combines skylights and light tubes. The south-facing skylights serve as the primary light source for the arena, while the north-side light tubes illuminate the seating areas and supplement the overall lighting. This design ensures that the required illuminance levels can be met even without artificial lighting, effectively reducing energy consumption during daily use.
▼东南角透视,Perspective view of the southeast corner© 目外摄影
▼西南透视,Perspective view of thesouthwest corner © 目外摄影
建成后的体育馆已举办多类校园体育赛事和文艺演出,其作为体育教学和训练场所,为学生提供更好的体育学习和锻炼环境。它还将丰富校园文化生活,为师生提供更多的休闲娱乐选择。并作为举办各类校园文化活动的场所,如运动会、文艺晚会等,增强校园文化的凝聚力和影响力,成为校园内极具辨识度和活力的文体地标。
Since its completion, the gymnasium has hosted a variety of campus sports events and cultural performances. Serving as a venue for physical education and training, it provides students with an enhanced environment for learning and exercise. At the same time, it enriches campus cultural life by offering more opportunities for leisure and recreation. As a key venue for school-wide events such as sports meets and art performances, it strengthens the cohesion and influence of campus culture, establishing itself as a distinctive and vibrant landmark for sports and cultural activities on campus.
▼规划总平面图,Master plan© 华南理工大学
▼首层平面图,Ground floor plan© 华南理工大学+江苏浩森建筑设计有限公司
▼地下一层平面图,Basement level 1plan© 华南理工大学+江苏浩森建筑设计有限公司
▼剖面图,Section view© 华南理工大学+江苏浩森建筑设计有限公司
项目名称:广东理工职业学院体育馆
项目类型:体育建筑
设计方:华南理工大学
项目设计:2020.03-2020.12
完成年份:2024.01
主创建筑师:孙一民
设计团队:(华南理工大学)建筑:章艺昕、柳庆、叶伟康;结构:孙文波、陈汉翔
合作单位:(江苏浩森建筑设计有限公司)建筑:孙勤涛、韩妞、王洪宇、李昆鹏、梁伟杰、伍翩翩、黄宝莹;结构:马冠鹏、颜东红、方嘉伟、黄剑锋;给排水:范珺、陈秋连;电气:黄嘉乐
项目地址:广东省中山市广东理工职业学院内
建筑面积:12542㎡
摄影版权:是然建筑摄影,目外摄影
客户:广东理工职业学院
材料:钢筋混凝土、钢、焊接不锈钢、玻璃
客服
消息
收藏
下载
最近







































