查看完整案例

收藏

下载
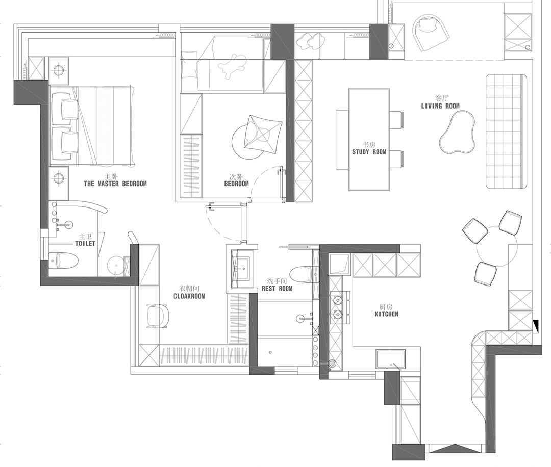
这是一间先生为太太筑的爱巢112平,4房改2房先生找到设计师的时候明确表示希望能够给太太一个她想要的家
设计以四大功能区为出发点,通过整合与拆改提升空间利用率。打破传统分区,通过融合与扩充,优化了入户动线和厨房操作空间的连贯性。
入户玄关的弧形切面,像张开的怀抱。无时无刻在等待晚归的他,悬空离地的设计,给予空间更多的放松与呼吸感。
温暖的姜黄色涂料,从玄关顶面一直延伸至客厅,引导人走向阳台的木盒子。坐下来抚摸阳光,或者,打开生活收纳的琐碎。
厨房狭小拥挤,设计师巧妙地增加入户换鞋凳的同时,通过地面材质重新划分了厨房空间。将厨房扩大了近60公分,实现了大冰箱、洗碗机,子母门背后还隐藏小电器收纳。
从鞋柜延伸至餐厅转角,做了大量的收纳系统,补充厨房的收纳不足。悬臂吊灯既是餐厅照明,移动转向后也是沙发氛围光。
小小的圆桌汇聚的是家,是爱。餐厨互动之间,能想象到业主入住后的场景。
地面抬高后的阳台,看起来是一个木盒子,但内部暗藏玄机。序列孔洞的折叠门背后,隐藏着洗烘套装,以及家政收纳。家的设计,不仅仅要解决好用,更要解决的是好看。
拆除相邻卧室,将单一空间转化为集电视观看、阅读、收纳于一体的多功能活动区,满足日常互动需求。以及留白的空间给予日后更多的成长可能性。
改造后的主卫特别不同,弧形的设计让空间多了柔和。墙面渐变马赛克和顶面赭红色涂料呼应,让睡眠空间更放松。
同时将主卧与客卧打通,设计成宽敞的衣帽梳妆空间,满足太太的日常需求。
奶油色铺满的客卫,藏着的是清爽,是惬意。洗漱收纳之间,能想象到业主使用时的舒心场景。
从镜柜延伸至台面角落,做了隐形的收纳系统,补充日常备品的收纳。温柔的奶油底色,搭配胡桃木点缀,让每一次使用都更放松。
- 项目名称 -栖心于木
- 设计机构 -白菜适家空间设计
- 总设计师 -蔡海安
- 项目面积 -112m²
客服
消息
收藏
下载
最近



































