查看完整案例

收藏

下载
项目名称:广东理工职业学院体育馆
位置:中山
设计单位:华南理工大学 + 江苏浩森建筑设计有限公司
图片数量:34张
广东理工职业学院中山校区四期工程体育馆,项目位于中山市五桂山龙石村石鼓。基地所处位于中山市五桂山脉腹地, 毗邻港澳和珠海经济特区,北面与中心城区接界, 南面与南部中心及三乡对接,西邻板芙,东面是翠亨新区。▼校园东南侧整体鸟瞰© 目外摄影
▼西南角鸟瞰© 是然建筑摄影
▼南侧鸟瞰© 目外摄影
▼主立面夜景透视© 是然建筑摄影
▼东南角透视© 目外摄影
一、规划整合:重塑校园场所精神
介入项目时,校园前期建设已部分完成。通过实地调研和分析,梳理发现校园内部建筑界面较为零散,绿地及公共空间缺乏系统性整合,未形成积极的核心空间,导致校园整体形象辨识度较弱。
▼项目区位© 江苏浩森建筑设计有限公司
▼校园现状© 华南理工大学
原规划中风雨操场、游泳池、会堂等功能分散布置于校园内三个地块,不仅使用便利性欠佳,且土地利用效率较低。设计将三者的功能和用地进行整合,集约化布置于同一个建筑地块内,既显著提升了土地利用效率、实现用地集约,又有效强化了功能间的联动效应,提升整体使用价值。
▼规划整合前后校园总平面图对比© 华南理工大学
设计将融合三种功能的体育馆调整至图书馆北侧地块,强调出校园的 “T”形空间结构,体育馆与图书馆遥相对望,二者相得益彰,共同构筑校园的核心空间与视觉焦点。二者围合而形成的宽敞开放空间,既丰富了校园景观层次,又为师生提供了多元聚合的活动场域。并且设计希望通过新建筑的植入优化既有零散空间,完善校园空间系统,强化场所精神。
▼优化前后校园规划结构对比© 华南理工大学
同时,以核心建筑为依托构建景观绿轴,强化场所感。绿地系统与自然山体沿核心建筑延展,形成贯穿校园的景观脉络,进一步优化校园生态环境与空间辨识度。
▼顶视航拍© 是然建筑摄影
此外,通过建筑界定和围合校园外部界面和内部空间。校外侧通过四期实训楼的序列式界面设计,打造校外道路进入校园的第一形象展示面;四期宿舍楼以规整排列强化校园空间秩序感,与核心区域形成视觉与功能上的良性反差,完善校园整体空间逻辑。▼东南角鸟瞰© 目外摄影
二、形象塑造:构建校园视觉地标
体育馆作为校园的中心建筑,通过雕塑感的建筑体量,以清晰的空间逻辑强化核心辨识度,成功实现对校园整体空间的统领,成为整个校园的视觉核心。弧线型形体打破校园传统方正单一的形象,简约的几何形态与图书馆形成视觉对话,进一步强化 “双核” 的空间记忆点;同时,建筑与校园内山体遥相呼应,形成 “建筑 – 自然” 的和谐对话。
▼东南角鸟瞰© 目外摄影
建筑材料采用金属屋面和混凝土屋面,通过两种材质的对比,体现体育馆与众不同的风格色彩,向上动感的造型,体现着校园的精神核心。整体立面设计大气又不失学院气息,红棕和灰色相间的建筑外墙搭配,呼应了原有校园建筑的现代学院气息。▼立面草图© 孙一民工作室
▼概念草图© 华南理工大学
夜间,体育馆弧形天窗的内透光和简洁几何化的场地照明相互交织,使得其成为校园夜间最醒目的视觉焦点。▼主入口广场透视© 目外摄影
▼西南角夜景透视© 是然建筑摄影
三、场地适配:顺应高差的场地设计
整个场地南北高差显著,约达7米。设计利用地形高差,将游泳馆和训练馆精心设置于平台之下,巧妙地化解了南北道路之间存在的高差难题。体育馆的南面,经由开阔的大广场,人们能够径直进入体育馆主馆;而北面也充分顺应地势,可直接从道路便捷地进入游泳馆和训练馆。各场馆的出入口布局科学合理,使得流线之间互不干扰,为人员的进出和活动提供了极大的便利。
▼东南角透视© 目外摄影
四、功能复合:多元需求导向的平面设计
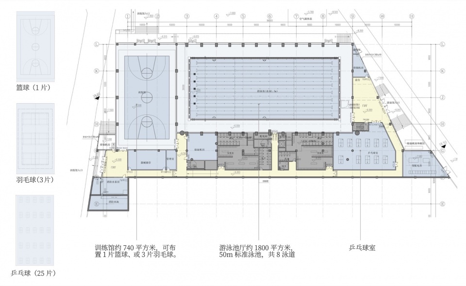
建筑主要功能包括:主馆、游泳馆、训练馆等功能。设计在保障基础功能的前提下,通过 “空间复合利用” 最大化拓展使用场景。其中训练馆可满足篮球、羽毛球、乒乓球等运动;主体育馆可满足多样体育运动赛事和训练,同时可用作学校礼堂等文艺演出和典礼。实现 “一馆多用” 的使用价值,提升场馆利用率。
▼主场馆多功能使用分析© 华南理工大学
▼训练馆及游泳馆平面功能分析© 华南理工大学+江苏浩森建筑设计有限公司
▼比赛大厅透视图© 目外摄影
五、技术创新:可持续视角下的技术整合与创新
体育馆上部采用空间网架结构,最大跨度达 105 米。该结构形式兼具高效的空间利用率与优质的视觉效果,能营造大跨度的无柱场地,完美适配体育场馆这类大型公共建筑需求。其通过节点将各杆件紧密连接,形成稳定的整体结构,可有效承受各类荷载,充分保障建筑的安全性与稳定性。下部游泳馆则选用钢筋混凝土结构,借助规整的结构序列,赋予泳池空间独特的秩序美感。
▼建设过程照片© 华南理工大学
▼比赛大厅透视图© 目外摄影
▼游泳馆室内透视图© 目外摄影
主体育馆屋面材料选用焊接不锈钢屋面,其为焊接工艺形成整体式屋面,耐腐蚀性能、抗风揭性能强,且无需另外增加装饰板,既达到美观度的要求,同时又节约造价。▼焊接不锈钢屋面局部与节点做法© 华南理工大学+江苏浩森建筑设计有限公司
▼建筑局部© 是然建筑摄影
▼入口环廊透视© 目外摄影
主体育馆大厅采用天窗与导光管结合的双自然采光组合设计。南侧天窗作为场地的主光源,北侧导光管主要照亮坐席区并补充场地光线,确保在无人工照明时仍能满足场地照度要求,有效节约平时使用中的用电能耗。▼采光分析© 华南理工大学
▼导光管辅助照明© 华南理工大学
▼东南角透视© 目外摄影
▼西南透视© 目外摄影
建成后的体育馆已举办多类校园体育赛事和文艺演出,其作为体育教学和训练场所,为学生提供更好的体育学习和锻炼环境。它还将丰富校园文化生活,为师生提供更多的休闲娱乐选择。并作为举办各类校园文化活动的场所,如运动会、文艺晚会等,增强校园文化的凝聚力和影响力,成为校园内极具辨识度和活力的文体地标。
▼规划总平面图© 华南理工大学
▼首层平面图© 华南理工大学+江苏浩森建筑设计有限公司
▼地下一层平面图© 华南理工大学+江苏浩森建筑设计有限公司
▼剖面图© 华南理工大学+江苏浩森建筑设计有限公司
客服
消息
收藏
下载
最近




































