查看完整案例


收藏

下载

附件

翻译
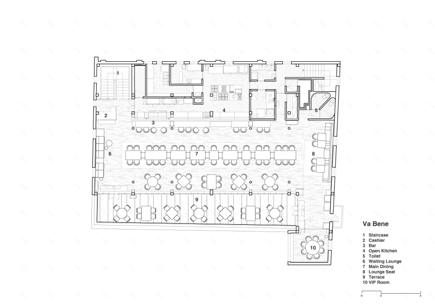
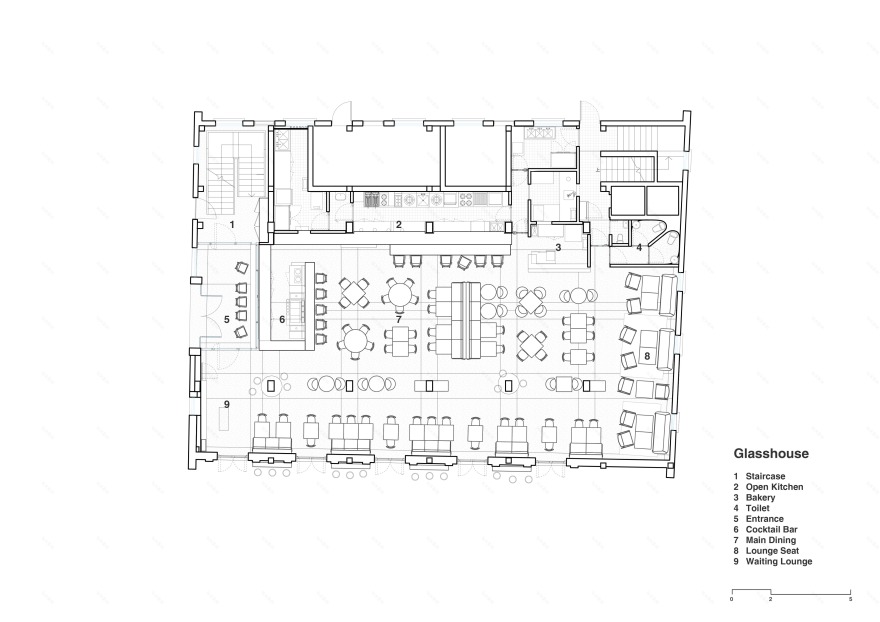
Located in Xintiandi, the 2 story building needs to serve two restaurants. Luckily both spaces have their own character. The ground level is bright and very accessible, a good spot for a new concept for shanghai: glasshouse. The top floor is intimate and spacious and will allocate an updated version of the well known Italian restaurant Vabene. So creating a white and bright downstairs and a dark and moody upstairs seemed the only way to go
Great daylight comes into this space. We can use this light to create that intermediate space between inside and outside.
There is a glass roof ,The daylight that comes through there is a mood defining element. All this light makes us want to add green. Real green. Can we make it feel like a garden or a real glass house? Making a white terrazzo floor. Keeping it white and bright. Adding lots wood furniture and elements of reclaimed wood make it a casual and light dining experience.
Design Team: Wendy Saunders, Vincent de Graaf, Byungmin Jeon, ZhaoLei, Shelly Mock
客服
消息
收藏
下载
最近
















