查看完整案例

收藏

下载
如一交錯縱橫編織的水網,匯聚成一股自然之源,行徑空橋中,微風,綠意,鳥語,透過流水将四季美景引入建筑,帶來自然清新的未来工业聚落。
Like an intricately woven water network, converging into a source of nature.
Walking across the sky bridges, one is surrounded by gentle breezes, lush greenery, and birdsong.
Flowing water draws the beauty of the four seasons into the architecture, giving rise to a fresh, natural future industrial settlement.
© 孫中川
概况
Project Description
中国高速城镇化浪潮中,原乡肌理渐失,如何平衡产业升级与文化传承,成为当代建筑领域核心命题。友邦集成吊顶总部园区以非常规规划建造逻辑,给出实践答案—— 既承载 “分享设计” 使命,更以 “环境共生” 理念,让工业用地重植地域文化根系。
Amid China’s rapid urbanization, the loss of indigenous fabric poses a core challenge: balancing industrial upgrading with cultural continuity. The Youbang headquarters Campus offers a practical response through an unconventional planning and construction logic—fulfilling its mission of “Sharing Design” while rooting the industrial site in local culture via the concept of “Environmental Symbiosis.”
▼场地鸟瞰,Bird’s eye view© 胡艺怀
项目由阔合CROX林琮然担任总建筑师,以九年时间完成从景观到建筑的一体化塑造,使园区成为一座“生长的有机体”。不同于传统“设计后置” 模式,林琮然以环境共生为核心,推动地方文化现代转译:彻底摒弃工业园 “生产至上” 逻辑,将江南水渠地景转化为串联办公、生产、展示的生态脉络,重构了 “步移景异” 叙事;以蔓延生長的建筑体量,呼应江南聚落 “自然” 的原生尺度,“分享设计” 通过开放南面的设计权,邀请了七家国际事务所共同打造,让设计力量关怀重新回到工业土地上,重现生产的聚落本应有的自由思想。
▼总平概念图,design concept© CROX闊合
Led by Chief Architect C.R. Lin of CROX, the project underwent a nine-year integrated development from landscape to architecture, transforming the campus into a “growing organism.” Departing from the conventional post-design approach, Lin prioritized environmental symbiosis, facilitating a modern reinterpretation of local culture. Rejecting the industrial “production-first” paradigm, the design converts Jiangnan’s aquatic landscapes into an ecological spine linking office, production, and exhibition spaces, reconstructing a narrative of “scenes changing with every step.” The sprawling architectural volumes echo the innate scale of Jiangnan settlements, while “Sharing Design” involved ceding the southern plot’s design authority to seven international firms, reintroducing humanistic care onto industrial land and reviving the free-thinking ethos intrinsic to productive settlement.
▼顶视,Top view© 胡艺怀
更具行业价值的是建筑师角色革新:在国际化与地域性张力间,从“设计执行者” 跃升为项目统筹者与社会沟通媒介。这种实践恰是中国制造业 “由量到质” 转型的建筑缩影 —— 以设计赋能产业空间,让工业用地重获文化温度,使生产聚落的自由思想在当代建筑语境中重生。
Of greater professional significance is the redefined role of the architect: navigating the tension between internationalism and regionalism, C.R. Lin evolved from “design executor” to project coordinator and social communicator. This practice epitomizes the architectural reflection of Chinese manufacturing’s shift “from quantity to quality”—empowering industrial space through design, reinfusing cultural warmth into industrial land, and resurrecting the liberal spirit of production settlements within a contemporary architectural context.
▼夜览鸟瞰,Bird’s eye night view© 胡艺怀
规划原则
Planning Principle
友邦集成吊顶总部坐落于嘉兴百步开发区,基地被东西向水渠自然分隔为南北两地块。规划以“最大化保留江南水岸风貌” 为核心出发点,构建工业功能与人文气息交融的空间体系。核心设计 “年桥” 突破单纯的地面交通连接属性,以通透轻盈的空中形态接连结全年365 天不同时段的生活场景:它将闲适漫步的节奏与自然水岸景致相融,以蜿蜒的生态廊道串联南北的办公、生产与展示功能。北地块聚焦产业运营需求,布局生产、办公、住宿及餐厅等复合功能,建筑沿年桥东西两侧舒展生长,建筑群以低伏蔓延的体量嵌入大地,呼应传统聚落与自然共生的原生尺度,使机械性的工业厂房,更化作人与环境互动的核心平台,既实现园区多元功能的整合,又通过生态立体化设计优化办公空间,最终形成连贯且富有韵律感的建筑序列。
Located in Baibu Development Zone, Jiaxing, the Youbang headquarters Campus is naturally divided by an east-west water channel into northern and southern plots. Planning prioritizes “maximizing preservation of the Jiangnan waterfront character,” creating a spatial system where industrial function and humanistic ambiance merge. The core design element, the “Annual Bridge,” transcends mere ground connection—its light, transparent aerial form links 365 days a year at different times life scenarios: integrating leisurely strolls with natural waterfront views, this winding ecological corridor, connects northern offices, production, and exhibition facilities. The north plot focuses on industrial operation needs, integrating composite functions such as production, office, accommodation, and dining. The architecture extends laterally along both sides of “Annual Bridge,” with low-lying, sprawling volumes embedded into the terrain, echoing the innate scale of traditional settlements coexisting with nature. This transforms mechanical industrial facilities into a core platform for human-environment interaction. By integrating diverse functions within the park and optimizing office spaces through ecological three-dimensional design, a coherent and rhythmically engaging architectural sequence is ultimately achieved.
▼总体规划平面图,masterplan© CROX闊合
南地块平台的端点恰好呼应“滴水成河” 的自然源动力,动线向上环绕形成一座艺术展览馆;以此馆为核心,设计借鉴“縱橫水網” 的传统聚落肌理,划分出七块 “一亩三分地”,七栋功能各异的为地景建筑分置其中,与江南自然地景相映互动,未來將营造出独具韵味的人文空间。设计不止于满足机能需求与视觉美学,通过外部连接系统唤醒人与自然的深层记忆;同时以 “六感体验” 为纽带,让使用者从声、光、形、味、触、气等多维度感知空间,最终实现对当代江南生活场域的诗意回归。
The southern platform’s endpoint resonates with the natural dynamism of “raindrops forming rivers.” Circulation ascends to form an art gallery; radiating from this core, the design references the traditional settlement texture of a “crisscrossing water network,” dividing the area into seven individual plots. Seven distinct landscape-oriented buildings are placed within, interacting with the Jiangnan natural scenery to create uniquely charming cultural spaces in the future. The design surpasses functional and visual aesthetics, using external connective systems to awaken deep memories of human-nature connection. Simultaneously, a “Six-Senses Experience” engages users through sound, light, form, scent, touch, and atmosphere, enabling a multi-dimensional spatial perception and ultimately achieving a poetic return to the contemporary Jiangnan living realm.
▼聚落概念分析图,analysis diagram©CROX闊合
▼轴测分析图,axo©CROX闊合
未來设计聚落由林琮然协同七家国际知名的建筑设计事务所包括:里伯斯金(美国),娜德塔·塔格利亚布(西班牙),藤本壮介(日本),亚历杭德罗.札拉波罗(西班牙),承孝相(韩国),武重义(越南)郭锡恩和胡如珊(中国上海)等9位国际著名的建筑师共同打造。
The future design cluster was co-created by C.R. Lin and seven internationally renowned architectural firms, including Daniel Libeskind (USA), Benedetta Tagliabue(Spain), Sou Fujimoto (Japan), Alejandro Zaera-Polo (Spain), Seung H-Sang (South Korea), Vo Trong Nghia (Vietnam), and Lyndon Neri & Rossana Hu (Shanghai, China).
▼夜览鸟瞰,Bird’s eye night view © 胡艺怀
建筑聚落
Architecture
天棚年桥:连接与融合的象征
Canopy and Annual Bridge: A Symbol of Connection and Integration
友邦总部园由北向南汇聚的回廊(年桥),其设计概念源自江南传统水流与桥的共生意象,二者交融凝练为承载风土记忆的核心空间载体。作为南北连通的主轴,年桥通过天桥系统将园区所有建筑串联为整体,这股持续的“连接力量” 不仅催生了建筑阶梯舞台与景觀平台,更让人与自然的关联记忆在此落地。▼连廊概念,bridge concept©CROX闊合
Youbang Campus is connected by a north-south linking gallery (Annual Bridge) draws from the symbiotic imagery of traditional Jiangnan waterways and bridges, crystallizing into a core spatial载体 (carrier) of local memory. As the main north-south axis, the Annual Bridge’s skybridge system interconnects all campus buildings into a whole. This continuous “connecting force” generates architectural stepped plazas and landscape platforms, grounding memories of the human-nature relationship. ▼模块化玻璃天棚,Modular glass ceiling © 胡艺怀
园区内的大型天棚与连续空中回廊采用轻型结构设计,中央走廊上方覆盖透明钢构玻璃幕墙—既保障了遮雨的实用功能,又最大化引入自然采光与通风,构建出通透舒适的过渡空间。
The campus’s large canopy and continuous aerial galleries employ lightweight structural design. The central corridor is covered with a transparent steel-framed glass curtain wall—providing shelter from rain while maximizing natural light and ventilation, creating a bright, comfortable transitional space.
▼年桥天棚与建筑连通,The ceiling is connected to the building© 胡艺怀
▼天棚结构设计,Ceiling structure design © 胡艺怀
当多样绿植与穿梭于其间的办公人群相映,建筑与自然环境的边界被悄然模糊,这种“融合精神” 不仅流淌于日常办公与个体活动的细节中,更成为串联园区全域、维系空间活力的重要命脉。
As diverse greenery interacts with circulating office crowds, the boundary between architecture and nature blurs. This “spirit of integration” permeates daily work and individual activities, becoming the vital lifeline that connects the entire campus and sustains spatial vitality.
▼年桥下工作区,Work area under the bridge © 胡艺怀
▼工作区近景,Work areaclose view© 胡艺怀
生产工厂:功能与美学的统一
Production Factories: Unity of Function and Aesthetics
八栋工厂采用两两对称的布局逻辑,设计以简洁实用为核心准则。方正体量为基础,搭配水滴形三角开窗,开窗形式与天棚分割语汇保持一致,确保整体设计语言的连贯性。
▼工厂概念图,factory design concept©CROX闊合
Eight factories employ a pairwise symmetrical layout, prioritizing simplicity and practicality. Rectangular volumes form the base, complemented by water-drop-shaped triangular windows whose form aligns with the canopy’s segmentation language, ensuring cohesive design vocabulary.
▼生产工厂南入口,South entrance of the factory © 胡艺怀
中庭区域留设大面采光玻璃,通过视线穿透形成内部空间的联结系统;同步配置空中廊道,构建以人为本的动线组织,一层开口面向天棚回廊,实现人员直通地面的便捷性,天桥则衔接至建筑内部,同时预留两层高的机械工作平台,满足工业操作需求。
Central atriums feature large glazed skylights, creating visual connectivity between internal spaces. Aerial corridors are incorporated to establish human-centered circulation. Ground-floor openings face the canopy gallery for direct access, while skybridges connect to building interiors. Two-story-high mechanical work platforms are reserved to meet industrial operational needs.
▼厂房建筑表皮,Factory building facade © 胡艺怀
南北向两两连排的工厂通过角度调整,释放出户外卸货场地;每个厂房单元内部整合完整流水线,既保障单栋独立高效生产,也能实现八栋厂房协同运作的整体效率,达成功能与布局的深度适配。
North-south paired factory rows are angled to release outdoor loading areas. Each plant unit integrates a complete production line, enabling both independent efficient operation and coordinated functionality across all eight buildings, achieving deep integration of function and layout.
▼生产工厂回廊端口,Factory corridor port © 胡艺怀
总部与生活楼: 水岸边交错生成的建筑
Headquarters and Living Quarters: Architecture Interlocking with the Water’s Edge
建筑核心设计概念“与流水交错的山”,旨在让建筑呼应场地肌理、传递空间动态平衡感,而非对自然形态的符号化借用。▼总部与生活楼概念图,Headquarters and living quarters concept ©CROX闊合
▼桥系统,Bridge Structure System © CROX闊合
The core design concept, “a mountain interlocking with flowing water,” aims to make the architecture respond to the site’s texture and convey spatial dynamic balance, rather than symbolically borrowing natural forms.
▼空中连廊通生活楼和总部楼,Sky bridge connects the residential building and the headquarters building© 胡艺怀
▼空中连廊近景,Bridge close view© 胡艺怀
量体规划以东西两侧建筑的水平向度共生为核心:摒弃摩天楼对垂直高度的追求,转向让建筑“贴地生长”;中心 “年桥” 作为串联平衡的关键媒介,既从空间上区隔两侧建筑体,又通过水平视觉呼应形成 “隔而不断” 的对话关系,弱化建筑高耸感,实现与场地环境的共生。
▼动线分析图,Circulation © CROX闊合
Massing planning focuses on horizontal symbiosis between eastern and western buildings: eschewing skyscrapers’ vertical pursuit for “ground-hugging growth.” The central “Annual Bridge” acts as a key intermediary, spatially separating the two building masses while maintaining visual dialogue through horizontal echoing, softening the building height and achieving symbiosis with the site context.
▼总部办公楼北面视角,North view of the headquarters office building © 胡艺怀
▼总部办公楼南面视角,South view of the headquarters office building © 胡艺怀
▼总部楼电瓶车车道,Headquarters Building Electric Vehicle Lane © 胡艺怀
立面设计提取国画“斧劈皴” 灵感,结合南面临水特质传递东方山水意境。为兼顾意趣与实用,选用折叠式百叶幕墙:其折叠肌理呼应抽象山水,幕墙虚实关系形成动态模糊感,呈现通透且不定的整体形象;功能上,凹凸建筑表面可高效绝缘隔热、阻挡光污染,同时保障任意角度观景视野,室内则借面板间光线反射形成散射光,维持明朗通透。
The facade design draws inspiration from the “axe-cut” texture in Chinese ink painting, combining with the southern waterfront characteristic to convey an Eastern landscape artistic conception. Balancing artistic interest and practicality, a folded louvered curtain wall was chosen: its folded texture echoes abstract landscapes, and the interplay of solid and void creates dynamic ambiguity, presenting a transparent, indeterminate image. Functionally, the undulating building surface provides efficient insulation and blocks light pollution while maintaining viewing sightlines from any angle. Indoors, light reflects between panels, creating diffused illumination and maintaining brightness.
▼总部仰望视角,Headquarters looking up © 胡艺怀
▼总部立面铝板冲孔自然排列,The perforated aluminum panels on the headquarters facade are arranged naturally© 胡艺怀
建筑量体细节的多维度进退处理,以创造实用空间为目的:进退间生成阳台,作为室内外过渡带;形成的室内角落空间,为总部办公或生活休憩提供灵活小尺度场域。
Multi-dimensional recesses and projections in the building massing serve to create functional space: generating balconies as transitional zones between inside and outside; forming interior corner spaces that provide flexible, small-scale areas for headquarters work or living.
▼总部与生活楼夜景,Night view of headquarters and staff quarters © 胡艺怀
此外,东西侧建筑交错造型在一层围合开阔大堂,作为使用者聚集、交流的公共核心;中间楼层与顶部因量体上下错位形成内庭花园,将绿化引入建筑内部,拓展开放活动场域,使功能性空间融入自然生机。
Furthermore, the interlocking forms of the east and west buildings enclose a spacious ground-floor lobby—a public core for gathering and interaction. Mid-level and rooftop formed by vertical misalignments create interior courtyard gardens, introducing greenery into the building and expanding open activity areas, infusing functional space with natural vitality.
▼总部办公楼大堂,Headquarters office buildinghall© 胡艺怀
云馆艺术中心:传统哲思的现代转译
Main Exhibition Gallery:Modern Translation of Traditional Philosophy
“太极生两仪,两仪生四象,四象演八卦”—— 传统哲思中,“万有、万事、万物” 皆循纲纪运行,八卦以 “通彻天地” 之能成 “大道之源”,其周而复始、包罗万象的精神,恰与友邦企业精神相契,若以廊桥道路为 “河道”,这股由八卦衍生的正面力量,便如 “源头活水” 般贯穿整个厂区;而将八卦的 “万象变化” 与龙卷风的 “声势宏大” 相融合,更形成引人探寻的空间张力,恰应 “波浪兼天,舟中不知惧,君子身在局中,而心在局外” 的意境。
▼云馆概念图,Cloud Pavilion design concept©CROX闊合
▼结构过程图,axo© CROX闊合
“The Tai Chi generates two polarities, which yield four phenomena, which evolve into eight trigrams”—in traditional philosophy, all things operate under universal order. The eight trigrams (Bagua), with their capacity to “penetrate heaven and earth,” form the “source of the great Dao.” Their cyclical, all-encompassing spirit aligns with Youbang corporate ethos. If gallery bridges and paths are “watercourses,” the positive force derived from the trigrams flows through the entire plant like “living water from a source.” Fusing the Bagua’s “myriad transformations” with a tornado’s “overwhelming momentum” creates a spatial tension that invites exploration, resonating with the concept of “remaining calm within the storm.”
▼云馆北面视角,Cloud Pavilion northern view© 胡艺怀
▼云馆全貌,Cloud Pavilion © 胡艺怀
▼云馆立面,Cloud Pavilion facade© 胡艺怀
友邦艺术中心位于园区一端,相较于厂区其他建筑更具外向性,是对外展示企业文化的地标性载体。其设计概念锚定“八卦”:无论从何种角度观察,建筑皆能呈现 “正面” 观感,既暗合企业多面向发展、积极向上的形象,更借八卦 “含盖万有” 的属性,宣示艺术中心的核心价值 —— 成为激发创意的 “可能性场域”,既是设计师的灵感之源,亦是企业发展的动力之源。
The Youbang Art Center, situated at one end of the campus, is more extroverted than other plant buildings, serving as a landmark showcase of corporate culture. Its design concept is anchored in the “Bagua”: from any viewing angle, the building presents a “frontal” appearance, alluding to the company’s multi-faceted, progressive image while leveraging the Bagua’s “all-encompassing” nature to proclaim the art center’s core value—becoming a “field of possibilities” that sparks creativity, a source of inspiration for designers and momentum for corporate development.
▼中庭挑空处,Atrium © 胡艺怀
艺术中心以文化展陈、艺术交流、创意展售为核心功能,形态上采用“八面体” 设计,呼应中国传统 “八卦楼” 的属性。空间规划延续南北长廊的动线逻辑,沿长廊向上回转可抵达屋顶 —— 此处既是瞭望全园的观景台,亦是进入建筑的入口:通过屋顶漩涡造型的玻璃体步入室内,再顺流线而下,整个过程暗喻 “凝聚多元视野与创思”。
Art center focuses on cultural exhibition, artistic exchange, and creative retail. Its form adopts an “octahedral” design, responding to the attributes of traditional Chinese “Bagua Lou.” Spatial planning continues the north-south gallery circulation logic—ascending and winding up to the roof, which serves both as an observatory overlooking the campus and a building entrance: visitors descend indoors via a vortex-shaped glass volume, metaphorically “condensing diverse perspectives and creative thinking.”
▼中庭仰视,Atrium looking up© 胡艺怀
门卫房:与土地肌理呼应
Gatehouse: Echoing the Land’s Texture
门卫房以“地表上掀” 为核心手法生成屋顶,如连接天地般自然形成开放式等候空间:访客在此停留后,经内庭进入园区。
The gatehouse’s roof is generated primarily through an “uplifted ground plane” design techniques, naturally forming an open waiting space that connects heaven and earth. Visitors pause here before entering the campus via an inner courtyard.
▼上掀门卫房,The gatehouse © 胡艺怀
建筑对外保留全面视野,对内则开放屋顶层,提升空间使用性。大面玻璃幕墙支撑屋顶,中部留设中庭,实现建筑与植物的共生;两层式布局强化建筑与土地的关联,让小体量空间既满足基础功能,又融入场地肌理。
The building maintains full external sightlines while opening roof to interior space, enhancing spatial utility. Large glass curtain walls support the roof, with a central courtyard allowing architecture and plants to coexist. A two-story layout strengthens the building’s connection to the land, enabling the small volume to fulfill basic functions while integrating into the site’s texture.
▼与树木共生,Symbiosis with trees © 胡艺怀
▼入口夜景,Entrance night view© 胡艺怀
前卫自然:生态表意到文化转译
Avant-garde Nature: From Ecological Expression to Cultural Translation
林琮然的“前卫自然”理念在友邦总部园区中,实现了从自然形态到生态智慧、从地域符号到文化基因的升华。
C.R. Lin’s “Avant-garde Nature” concept elevates the Youbang Headquarters Campus from natural form to ecological wisdom, from regional symbols to cultural genes.
▼室内大厅,Interior hall© 胡艺怀
▼通高的空间,Full height space© 胡艺怀
▼办公空间,Office space© 胡艺怀
▼会议室,Meeting room© 胡艺怀
这一实践不仅为产业建筑提供了“环境共生”的技术样本,更通过设计重构了工业文明与自然、传统的伦理关系,预示了中国建筑从“量产空间”向“生命场域”转型的深层探索。
This practice not only provides a technical model of “environmental symbiosis” for industrial architecture but also reconstructs, through design, the ethical relationship between industrial civilization and nature/tradition. It signals a profound exploration in Chinese architecture’s transition from “mass-produced space” to “life field.”
▼连廊中庭挑空夜间景观,Night view© 胡艺怀
▼天桥通往生产工厂入口夜景,Night view© 胡艺怀
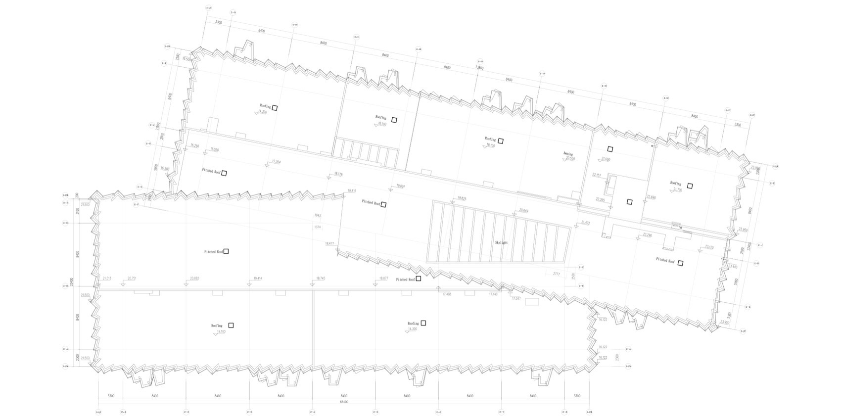
▼总平面图,overall plan© CROX闊合
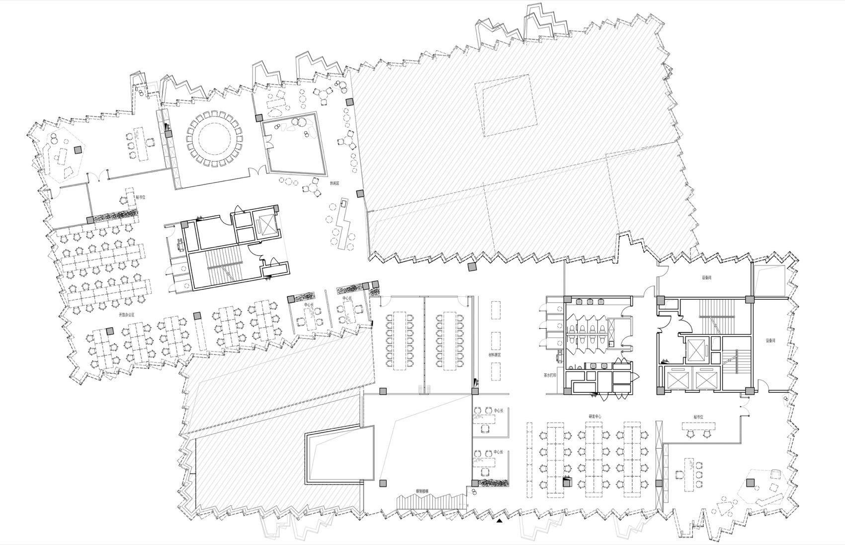
▼总部办公楼一层平面图,Headquarter 1st Floor Plan © CROX闊合
▼总部办公楼二层平面图,Headquarter 2nd Floor Plan © CROX闊合
▼总部办公楼三层平面图,Headquarter 3rd Floor Plan © CROX闊合
▼总部办公楼四层平面图,Headquarter 4th Floor Plan © CROX闊合
▼总部办公楼五层平面图,Headquarter 5th Floor Plan © CROX闊合
▼总部办公楼六层平面图,Headquarter 6th Floor Plan © CROX闊合
▼总部办公楼七层平面图,Headquarter 7th Floor Plan © CROX闊合
▼总部办公楼八层平面图,Headquarter 8th Floor Plan © CROX闊合
▼总部办公楼屋顶平面图,Headquarter Roof Floor Plan © CROX闊合
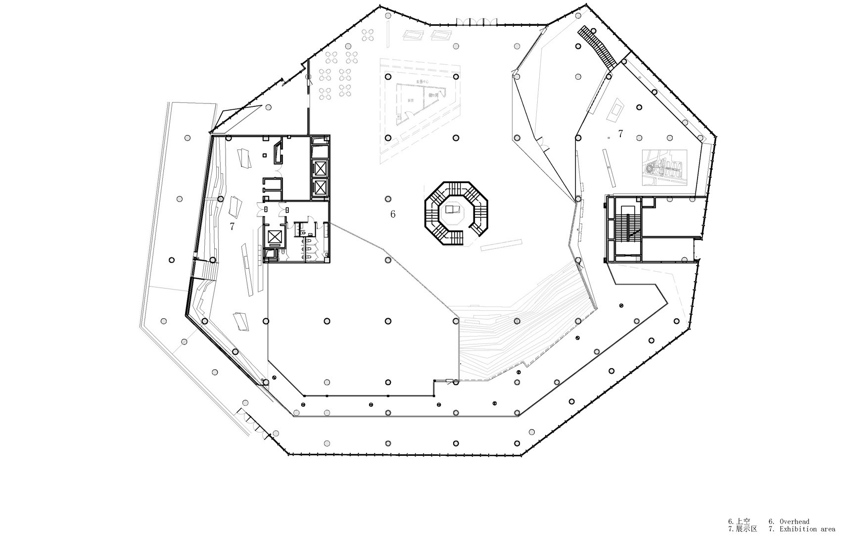
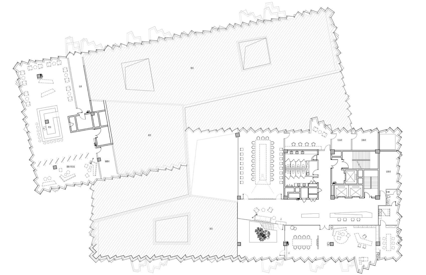
▼云馆一层平面图,Cloud Pavilion 1st Floor Plan © CROX闊合
▼云馆二层平面图,Cloud Pavilion 2nd Floor Plan © CROX闊合
▼云馆三层平面图,Cloud Pavilion 3rd Floor Plan© CROX闊合
▼云馆夹层平面图,Cloud Pavilion Mezzanine Floor Plan © CROX闊合
▼厂房一层平面图,Factory 1st Floor Plan © CROX闊合
▼厂房二层平面图,Factory 2nd Floor Plan © CROX闊合
▼厂房三层平面图,Factory 3rd Floor Plan © CROX闊合
▼厂房屋顶平面图,Factory Roof Plan © CROX闊合
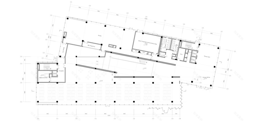
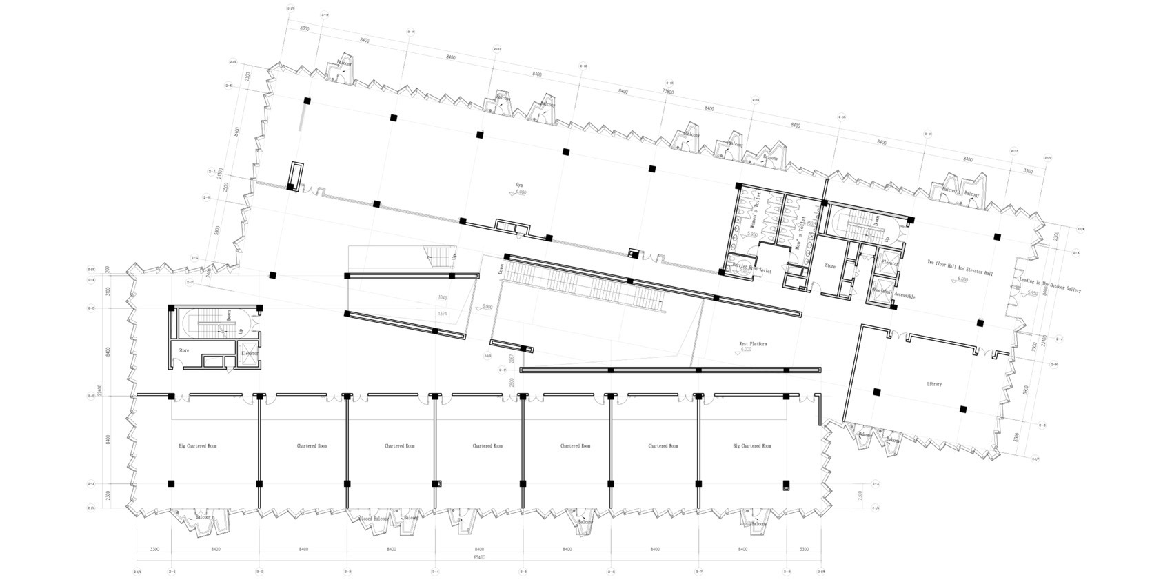
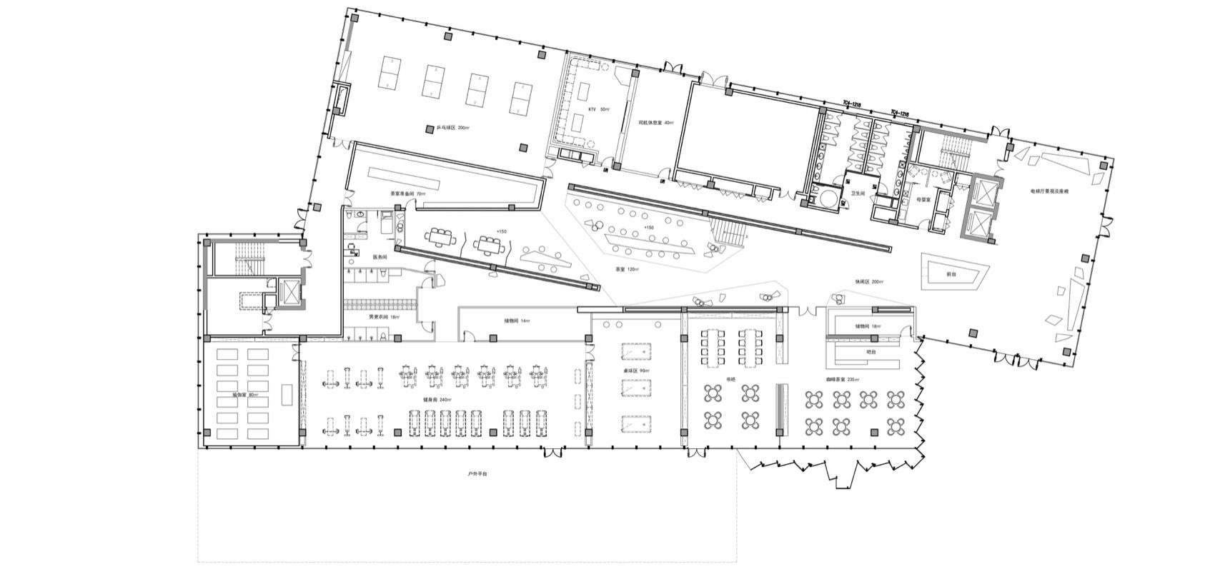
▼员工宿舍楼一层平面图,Life Support Building 1st Floor Plan © CROX闊合
▼员工宿舍楼二层平面图,Life Support Building 2nd Floor Plan © CROX闊合
▼员工宿舍楼三层平面图,Life Support Building 3rd Floor Plan © CROX闊合
▼员工宿舍楼四层平面图,Life Support Building 4th Floor Plan © CROX闊合
▼员工宿舍楼五层平面图,Life Support Building 5th Floor Plan © CROX闊合
▼员工宿舍楼屋顶平面图,Life Support Building Roof Plan © CROX闊合
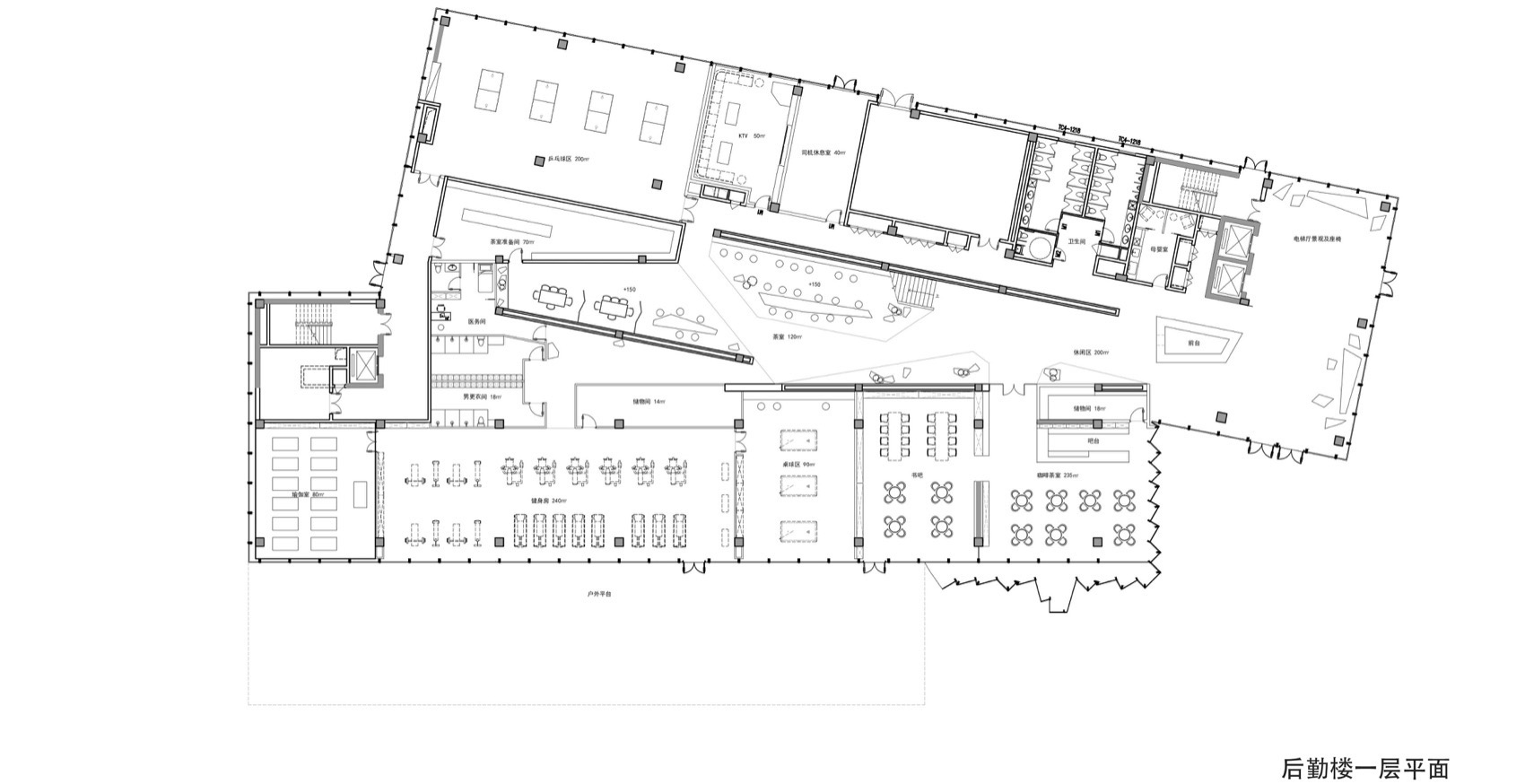
▼后勤楼1F,Life Support Building Roof Plan© CROX闊合
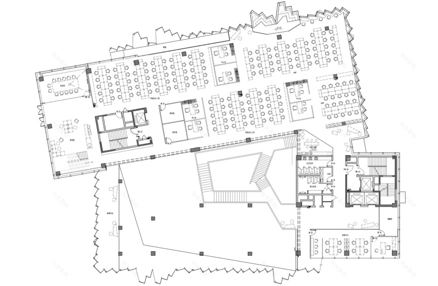
▼行政楼1F,Life Support Building Roof Plan© CROX闊合
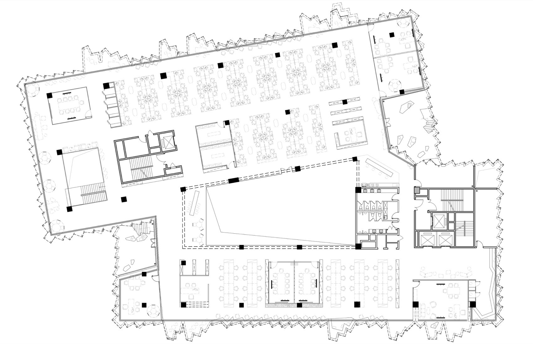
▼行政楼2F,Life Support Building Roof Plan© CROX闊合
▼行政楼3F,Life Support Building Roof Plan© CROX闊合
▼行政楼4F,Life Support Building Roof Plan© CROX闊合
▼行政楼5F,Life Support Building Roof Plan© CROX闊合
▼行政楼6F,Life Support Building Roof Plan© CROX闊合
▼行政楼7F,Life Support Building Roof Plan© CROX闊合
▼行政楼8F,Life Support Building Roof Plan© CROX闊合
▼总部办公楼北立面图,Headquater North Elevation © CROX闊合
▼总部办公楼东立面图,Headquater East Elevation © CROX闊合
▼总部办公楼南立面图,Headquater South Elevation © CROX闊合
▼总部办公楼西立面图,Headquater West Elevation © CROX闊合
▼员工宿舍楼北立面图,Life Support Building North Elevation © CROX闊合
▼员工宿舍楼东立面图,Life Support Building East Elevation © CROX闊合
▼员工宿舍楼南立面图,Life Support Building South Elevation © CROX闊合
▼员工宿舍楼西立面图,Life Support Building West Elevation © CROX闊合
▼云馆北立面图,Cloud Pavilion North Elevation © CROX闊合
▼云馆东立面图,Cloud Pavilion East Elevation © CROX闊合
▼云馆南立面图,Cloud Pavilion South Elevation © CROX闊合
▼云馆西立面图,Cloud Pavilion Elevation © CROX闊合
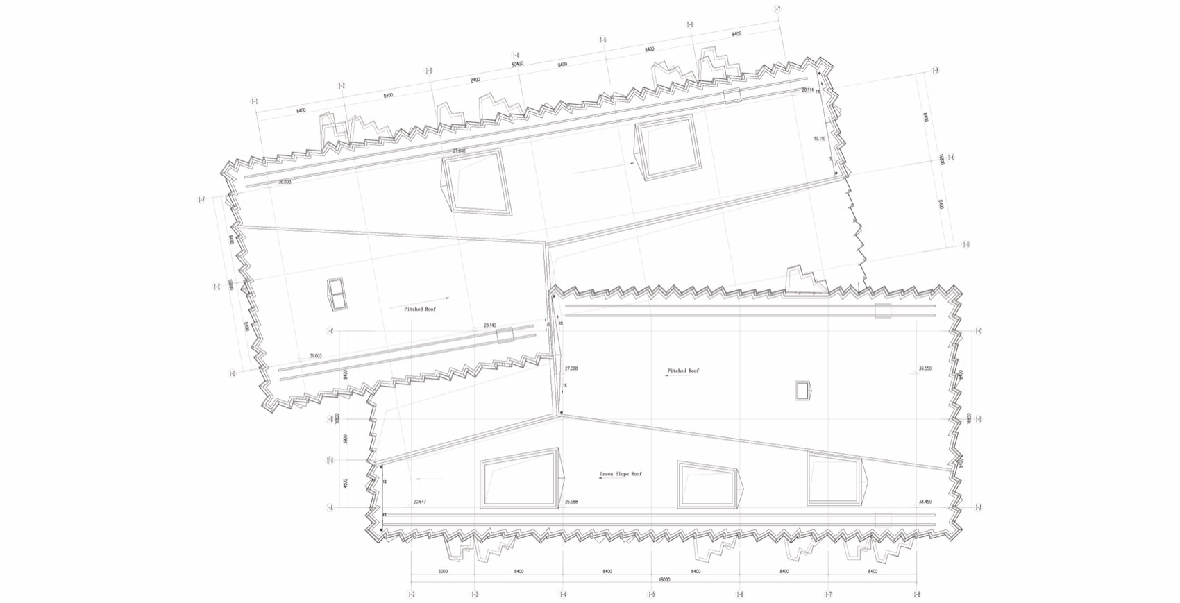
▼厂房立面图1,Factory Elevation 1 © CROX闊合
▼厂房立面图2,Factory Elevation 2 © CROX闊合
▼厂房南北立面图,Factory North-South Long Elevation-01 © CROX闊合
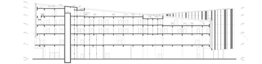
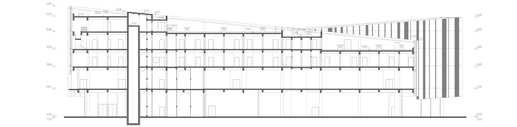
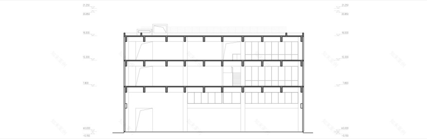
▼总部办公楼剖面图A-A,Headquater Section A-A © CROX闊合
▼总部办公楼剖面图B-B,Headquater Section B-B © CROX闊合
▼员工宿舍楼剖面图A-A,Life Support Building Section A-A © CROX闊合
▼员工宿舍楼剖面图B-B,Life Support Building Section B-B © CROX闊合
▼园区总部办公楼员工宿舍剖面图,Campus Headquater-Life Support Building Section © CROX闊合
▼园区设计师村剖面图,Campus Designer Village Section © CROX闊合
▼园区云馆工坊剖面图,Campus Cloud Pavilion-Workshop Section © CROX闊合
▼云馆剖面图A-A,Cloud Pavilion Section A-A © CROX闊合
▼云馆剖面图B-B,Cloud Pavilion Section B-B © CROX闊合
▼园区工厂东西剖面图,Campus East-West Factory Section © CROX闊合
▼厂房东西剖面图,Factory West-East Long Section-01 © CROX闊合
▼厂房剖面图,Factory Section© CROX闊合
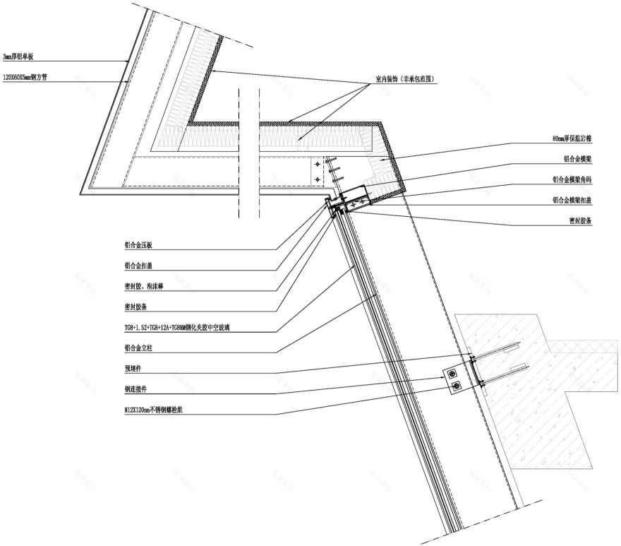
▼幕墙剖面图,Wall Section © CROX闊合
▼友邦标准节点,Wall Section© CROX闊合
▼展馆幕墙节点图,Wall Section© CROX闊合
项目信息
项目名称:总部园区
建築规劃設計: 2014年6月至12月
建築方案到施工图设计: 2015年2月至2016年7月
室內及展廳設計到施工图设计: 2018年3月至2022年8月
主建築項目完成日期:2025年11月
业主:浙江友邦集成吊顶股份有限公司
項目地:中国浙江省嘉兴市海盐县百步时尚小镇
基地面积: 83.346平方米
项目总建筑面积:98.708平方米
主持建筑师:林琮然
規劃建築设计团队:陈冠宇 Darcy 叶秀南 周天野 朱伽仪 王心慧 盛天宇 杜翔翔 贺亦周 王于思 周雯珏 丁山
室內設計團隊:李本涛、杨维玲、万若珈、顾博闻、段美晨、莫抒琳、周晨媛、朱飔晗、黄培耿、陈灿
当地配合建筑师,施工图设计:温州设计集团有限公司建筑研究设计院
幕墙设计:上海旭密林幕墙有限公司
灯光设计:上海大可莱伊照明设计有限公司
摄影:胡艺怀
影像:孫中川
项目策划:Rebecca.L
Project Name:Youbang Headquarters Campus
Project Type: Headquarters Office Campus
Masterplan stage Jun. 2014 – Dec. 2014
Schematic design to Construction drawing Feb.2015 – July.2016
Schematic design to Construction drawing May.2018 – Aug.2022
Estimated Construction Completion Date:Nov. 2025
Client:Youbang Campus
Site Location:Baibu Town, Haiyan County, Zhejiang Province, China
Site Area: 103,851 ㎡
Building Area:100,000 ㎡
Chief Architect:C.R.Lin
Artchitecture Design Team Kuan-Yu Chen /Darcy Chang/Saunaam Yip /Tian-Ye Zhou /Jia-Yi Zhu /Xin-Hui Wang
/Tian-Yu Sheng/Xiang-Xiang Du 贺亦周/ Yizhou He/Yusi Wang
Interior Design Team
Li BentaOang /WeilingWan RuojiaGu / BowenDuan / MeichenMo / ShulinZhou / /ChenyuanZhu Sihan /Huang Peigeng 、Chen Can
Local Design Institute, Construction Document:Wenzhou Construction Design & Research Institute Co., Ltd. Architectural Design and Research Institute
Curtain Wall Design Consultant:Schmidlin Facade Consultancy
Lighting Design Consultant: Dark Light Lighting Design International
Photography:Yihuai Hu
Project Planning: Rebecca.L
客服
消息
收藏
下载
最近







































































































































