查看完整案例

收藏

下载

翻译
Architects:Vlad Kudin
Area:70m²
Year:2025
Photographs:Lizaveta Kulenenok
Manufacturers:JUNG,101 COPENHAGEN,Flos,Lumina México,Tres
Category:Interior Design,Apartment Interiors
Design Team:Vlad Kudin
City:Minsk
Country:Belarus
Text description provided by the architects. The Blondie Space project is a 70 sq. m apartment in Minsk for busy clients who need a minimalist, airy pied-à-terre. The core concept was to overcome the spatial limitations of a standard new-build apartment—with its low ceilings and compact footprint—and create a profound sense of spaciousness, light, and tranquility. The inspiration drew from a strict minimalist ethos, focusing on a muted material palette, custom-designed asymmetric furniture, and bold art objects to add character without visual clutter.
The primary challenge was a stringent budget and an accelerated timeline, as the clients, based in Moscow, required swift decisions. This limitation became the project's driving force, necessitating the custom design of almost all furniture and art to control costs and maintain aesthetic cohesion. Another key difficulty was persuading the clients, who are in the natural stone business, to use materials sparingly to preserve the desired airiness rather than applying them extensively.
The material palette is deliberately restrained to achieve a light and cohesive atmosphere. Warm white and light-gray matte micro-cement plaster unify the walls, floors, and built-in storage, eliminating visual breaks. Natural travertine was used strategically as a key accent, featuring in the kitchen countertop and a signature washbasin. The custom-designed furniture, including a sofa, bed, and tables, often incorporates raw textures of black metal and stainless steel, providing a deliberate contrast to the soft, matte background.
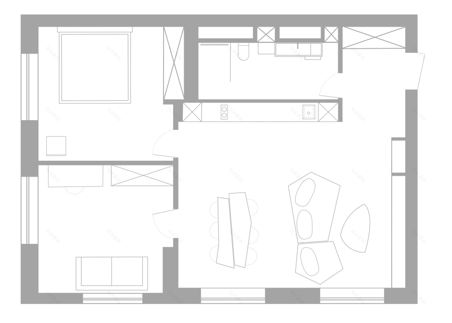
The spatial configuration was crucial to achieving openness. The main intervention was merging the loggia with the living area, which significantly expanded the common zone. This allowed for a logical and fluid layout: a spacious open-plan area combining the living room, kitchen, and dining zone flows seamlessly into a separate bedroom and a compact guest room. All storage is fully integrated into niches with flush fronts finished in the same wall plaster, enhancing the minimalist feel and maintaining clean, uninterrupted lines.
Ultimately, the project demonstrates how creative constraints can fuel innovation. By designing bespoke pieces, meticulously curating art, and employing a monochromatic material strategy, the apartment transforms into a serene, light-filled volume that feels much larger than its physical boundaries, embodying a radical yet timeless form of minimalism.
Project gallery
客服
消息
收藏
下载
最近






















