查看完整案例

收藏

下载
一个时代的经典,一个地域的风貌,浓缩在居所的方寸之间。用复古的元素与温润奶油色,呈现一个纯净柔美的家。在复古感基础上,用中古风的点缀,平衡居所的整体氛围。
今天分享的两个案例来自菲拉设计与上海映象设计,用
奶油色基底释放中古浪漫让家不拘泥于风格,保留最能打动内心的片刻。
齐家
上海映象设计
中国上海84
㎡中古私宅
家是最能包容的地方,守护着每个人的成长。本案融合不同的风格,用设计承载多面的生活。正如延续至今的「齐物」思想,能汲取共性,容纳多元。让居所里的人与物,都能自由共生,触达生活的美好愿景。
清新中古风格的营
造,离不开视觉之中配色的功劳。地面与橱柜是木质调展现的机会,用深色的胡桃木,给家些许岁月流淌的沉淀感,深色原木应该是最为恰当的表达方式。温暖清新感同样也离不开奶白色的衬托,微黄所透露出的暖意,结合复古味儿的红绿等色彩,浓郁而不艳丽,复古却不陈旧
原木材质固然是营造中古韵味的必要元素,但是多种属性的材质汇聚的中古风,更能用丰富材质增加居所视觉多元化。设计师恰到好处的增加了石材的使用,与原木相接,一刚一柔,软装多使用棉麻材质,传达复古的质朴温柔,简约奢华与温润质朴共同营造视觉与触感的双重高级感。
本案的面积并非十分充裕,中古风格的视觉元素对空间的整洁度也有着更高要求,因此设计师尽可能用少量的储物空间,完成生活物品的合理收纳。设计师打造贯穿餐厅到客厅的橱柜,容纳水吧台与冰箱,并且补充餐厅收纳,将高品质生活尽收柜中。主卧空间中利用墙面打造嵌入式衣柜,使用折叠移门给使用更高自由度。
打造更适合孩子成长的空间,设计师没有将居所的整体风格延伸到这里,用双层结构的树屋儿童床,给与亲子更多便利,木屋造型带来安全感,也用垂直结构打造攀爬空间给儿童房更多趣味。橱柜承担衣物杂物的收纳重任,而开放式的地柜收纳,也更便捷的收纳图书玩具,引导孩子养成整体收纳的好习惯。
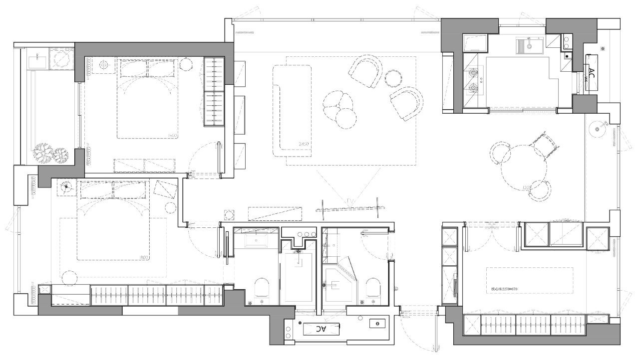
平面布局图
项目名称 |
齐物
项目地点 |
中国 上海
项目面积 |
84平米
设计机构 |
上海映象设计
设计范围 |
全案设计
尔音
菲拉
设计
浙江杭州119
㎡中古私宅
尘世纷扰,而家是一方静谧天地。一人居住的家完全听凭个人喜好,将所喜之物、所爱风格实现于当下。包容姿态的家居空间在硬装上是克制开放的,而在软装饰品上可见极繁主义的身影,如繁花在夏野疯长,复古与顿感家具交融,带着时光的温柔呓语,细腻温馨之境显现。每一次归家,皆是与自我倾心对话,于静谧之中感悟生活的醇厚悠长。
复古旋律串联起整个家居调性,以黑、米、木色为主,温润醇厚的色彩带来的空间故事感如同夏日山间的万物恣意生长,饱满的情绪抚慰着居住者的灵魂。餐厅与客厅的部分隔墙敲掉之后,空间更加开阔客餐厅互动紧密,拱形门梁与拱形置物架相呼应呈秩序性排列,丰富空间的视觉结构增添家居的浪漫情调。
更换原本地砖代之以木地板,拆除原石材电视背景墙,以复古慵懒的腔调重塑空间氛围。运用浪漫法式线条、梁托灯盘虎头线元素在硬装上增加细节美感,妙用对称性美学壁炉搭配木饰面展览架,沙发背景墙美而松弛。与左侧门廊的艺术处理,处处见证着家居的细腻温润,每一隅每一帧都可捕捉到专属这个家的艺术气息。
不喜过于细巧的家具取之以顿感家具,糅合复古欧式元素,桂黄色地毯、墨绿色弧形沙发、圆润敦厚的小边几、精心挑选的各种摆件画作......,极繁绮丽亦是长久主义,体积小巧的家具饰品带给家轻松调动的随性感,常住常变常更新,居家的过程,人物与空间一同成长变化。
餐厅原飘窗位置改做橱柜,转变为西厨操作台,右侧借用衣帽间面积外推增加嵌入式冰箱与厨房家电,提升清洗备餐的操作空间与便利性,在不争不抢间巧用区域特点在餐厅增加西厨功能,而餐厅仅以圆形餐桌便在这方圆之内表明空间主权,就餐空间从未丢失过它的焦点,享受用餐的仪式感。
主卧以弧形顶面、法式线条勾勒硬装结构美感,没有喧嚣的冗赘笔画,空间细节已然丰富起来。调整主卧门位置并调转床头方向,床尾增加一整面衣柜强化收纳,解决主卧储物欠佳的问题。罗马柱式床头柜搭配琉璃灯,中古转角柜及一幅挂画点缀,故事便已完整,星河璀璨交织的宏大亦敌不过当下一隅的细腻救赎。
平面布局图
项目名称
尔音
设计团队
菲拉设计
项目地址
浙江 杭州
建筑面积
119
项目时间
2025年4月
客服
消息
收藏
下载
最近
























































