查看完整案例

收藏

下载
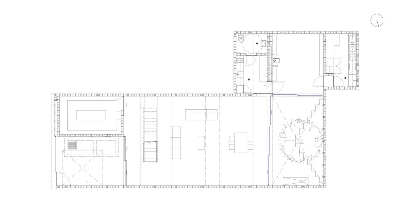
在利马的巴兰科,Roman Bauer Arquitectos 将一个198 m²的小地块处理成三段连续的空间序列,入口前庭、中央工作厅、后庭院,动线从街边收束,穿过带悬挑花槽的前庭进入高挑大厅,再通过可完全藏入墙体的滑动门延伸至日照充沛的后花园,没有复杂走廊,路径与场地合为一体,为摄影工作与小型展陈创造了开放的底盘。
平面策略把“可变”放到首位,中央大厅承担主体拍摄与布展,临侧设置两间弹性房,在常态下作为工位或会谈间,需要时可转为驻地艺术家的临时卧室,服务区设置小厨房,只有卫生间和暗房是完全封闭,以保障卫生与暗室显影的必要条件,这种开合关系,使工作状态与公众活动在同一平面上顺畅切换。
结构与屋顶共同定义了空间性,围护采用钢筋混凝土砌块墙,跨越大厅的为大跨度桁架,上覆木屋面,屋面呈温和的折线,自二层办公室一侧起坡向后庭缓降,沿折线布置四个矩形天窗,桁架框定了天窗的尺度,天窗上部可通过滑轮的操作让小窗开启,让高处热空气排出,新风从前后庭引入,形成可靠的穿堂风,折面、桁架与天窗的比例关系,被设计师指向巴兰科传统住宅的天窗与灯笼意象。
材料的选择强调“素与暖”的对照,huayruro 木贯穿屋面木作构件、隔断、门扇、家具与通往二层的楼梯,给予空间稳定而温润的色调,与之对应的是内侧抹平的砌块墙体与庭院侧的浮雕肌理,首层铺设手工黄调水磨石砖,并完整延伸至后庭院,形成内外一体的地面语汇,后院以混凝土条板围合花槽,中央种植刺桐,佐以仙人掌与多肉。
采光策略围绕“顶部 两端”展开,四个矩形天窗将稳定的顶部自然光均匀引入工作区域,减少眩光干扰,当用于展陈时,顶部光可提供均匀的照度,两端的滑动门在开启状态下消除隔断,入口前庭与后庭院成为光源补充与人流溢出的外部延伸空间。
通风同样依赖“高排低进”的被动逻辑,天窗上部的小窗通过滑轮装置开启,热空气上升后及时排出,新风从庭院低位进入,形成更顺畅的对流,当滑门敞开,前后庭之间的空气交换进一步增强,这套简明路径与当地传统住宅的自然通风策略相呼应,减少对机械系统的依赖。
客服
消息
收藏
下载
最近























