查看完整案例

收藏

下载
这是一个关于科学技术创新成果的展示中心,也将成为中国科学奖的颁奖场所。科技是这个建筑的本质,创新是这座建筑的精神,我们试图通过极致简洁的形体表达建筑的现代性,用精密精致的材料呈现建筑的科技性。用白(实体)灰白(玻璃)黑(裸顶)将这一简约美学推向极致。同时她与安藤忠雄设计的“和美术馆”仅一路之遥,因此如何处理和这位建筑大师作品的关系,也成为本建筑绕不过去的话题。经过认真思考我们选择了四合式建筑母体对话“和美术馆”圆环型建筑母体,同样是用光作为建筑的灵感,美术馆追求的是光的节制和幽暗,科学中心希望通过光的开合与收放,传达科技与自然之间的共生关系。
The Midea Science Exhibition Center is dedicated to showcasing achievements in scientific and technological innovation, and will also serve as the venue for the China Science Awards. Technology forms the essence of this building, while innovation embodies its spirit. Through an extreme simplicity of form, we sought to express the building’s modernity; through the precision and refinement of materials, we aimed to manifest its technological character. A restrained palette—white (solid), light gray (glass), and black (exposed ceiling)—extends this minimalist aesthetic to its utmost. Located just across the street from Tadao Ando’s He Art Museum, the project inevitably enters into a dialogue with the master’s work. After thoughtful deliberation, we chose to respond to the museum’s circular form with a courtyard typology drawn from Chinese architectural tradition. Both buildings are inspired by light: while the museum pursues the discipline and quietude of light, the Science Exhibition Center seeks to express the symbiosis between technology and nature through the rhythm of light’s openness and enclosure.
▼总平面图 方圆共生,overall layout: symbiosis of square and circle©存在建筑
美的科学中心的选址极具深意,它坐落于美的新总部的核心位置,周边环绕着现代化的办公建筑,却又以其独特的气质脱颖而出,她与一旁的和美术馆比邻而居,二者犹如一组相生相长的搭档,一个承载着艺术的灵动与感性,一个彰显着科学的严谨与理性,共同为这片区域注入了丰富的文化内涵。从城市规划的角度来看,科学中心的存在不仅优化了总部的空间布局,更成为连接不同功能区域的关键纽带,吸引着人们的目光,成为区域内的焦点所在。美的科学中心肩负着重要的使命,它是一个高科技理念的展示中心,是美的集团创新精神与科技实力的生动体现。在这里美的集团 “科技至善、生活至美” 的核心思想被具象化,通过一系列先进的数字演示,人们可以深入了解美的在科技创新领域的卓越成果,感受科技如何融入生活的每一个细节,为人们带来更加便捷、舒适、美好的生活体验。它不仅仅是一个展示空间,更是一个沟通的桥梁,让大众与美的集团的科技理念紧密相连,激发人们对未来科技生活的无限遐想。
The location of the Midea Science Exhibition Center is imbued with profound meaning. Positioned at the heart of Midea’s new headquarters and surrounded by sleek, modern office buildings, it stands out through its distinctive presence and quiet confidence. Situated beside Tadao Ando’s He Art Museum, the two form a symbiotic pair—one embodying the fluidity and sensibility of art, the other expressing the precision and rationality of science—together enriching the cultural depth of the district.
From an urban planning perspective, the Science Exhibition Center not only enhances the spatial composition of the headquarters campus but also serves as a vital link connecting its diverse functional zones. It draws attention and becomes a defining focal point within the area.
The Midea Science Exhibition Center carries a significant mission: it is both a showcase of cutting - edge technological ideas and a vivid manifestation of Midea Group’s spirit of innovation and scientific excellence. Here, Midea’s core philosophy—“Technology for the Good, Life for the Better”—takes on a tangible form. Through a series of advanced digital installations, visitors can explore Midea’s remarkable achievements in technological innovation and experience how technology infuses every aspect of daily life, bringing greater convenience, comfort, and beauty.
More than an exhibition space, the center acts as a bridge of communication—connecting the public with Midea’s technological vision and inspiring endless imagination for a future shaped by the harmony of technology and life.
▼简洁的形体融入城市肌理,The simple form blends into the urban texture©存在建筑
总体布局 方圆共生
Overall Layout: Symbiosis of Square and Circle
在布局设计上,美的科学中心以严谨秩序的方向作为原形,与和美术馆的展厅构型形成轴线对应,几何上基准的呼应,是的整个场所在视觉与空间感受上形成一种和而不同的美感。从高空俯瞰科学中心与周边的建筑群形成一幅严谨精准的蓝图,各个建筑元素相互关联,共同构成了一个有机的整体。
In its layout design, the Midea Science Exhibition Center adopts a rigorous, orderly orientation as its archetype, forming an axial correspondence with the exhibition hall configuration of the He Art Museum. This geometric alignment creates a visual and spatial harmony that evokes a sense of unity within diversity. Viewed from above, the Science Exhibition Center and its surrounding buildings form a meticulously precise blueprint, where each architectural element interconnects to constitute an organic whole.
▼半立方体水平堆叠而成,Semi-cubes are stacked horizontally©存在建筑
美的科学中心自身的建筑形态,则是由基于功能生成的半立方体水平堆叠而成。这种独特的设计手法,既满足了内部多样化的功能需求,又赋予了建筑一种简洁而富有韵律的外观。每一个半立方体都承载着特定的展示功能,它们相互组合形成了丰富多变的空间层次,寓意着着科技发展的多元与创新。
The architectural form of the building itself is generated functionally through the horizontal stacking of semi-cubic volumes. This distinctive design approach not only accommodates diverse internal functional requirements but also endows the building with a clean, rhythmically expressive exterior. Each semi-cubic volume serves a specific exhibition function, their interplay creating richly varied spatial layers that symbolise the diversity and innovation inherent in technological advancement.
▼美的科学中心主入口,Main entrance©存在建筑
空间构成 精度与秩序
Spatial Composition: Precision and Order
美的科学中心以方形合院建筑为原型,汲取了传统建筑文化的精髓,并将其与现代科技元素完美融合。合院建筑所蕴含的内敛、和谐的精神内涵,在科学中心中得到了传承与升华。
The Midea Science Exhibition Center draws inspiration from the square courtyard house, distilling the essence of traditional architectural culture and seamlessly integrating it with modern technological elements. The spirit of restraint and harmony inherent in courtyard architecture is preserved and elevated within the building.
▼展厅与城市之间的互动,The interaction between exhibition halls and the city©存在建筑
其内部空间围绕中庭展开,采用无柱设计,营造出开阔、流畅、透明的展示环境。流线围绕中庭自然展开,人们在参观过程中,仿佛置身无界的场域。中庭上方,柔和的天光透过三层水池若隐若现,洒在地面上,形成斑驳的光影。高度智能化的电动遮阳百叶,可以根据时间与光照情况,为展厅空间提供优质的采光设计,天窗之上自然流动的水面不仅为室内空间带来了自然的气息,更营造出一种宁静、神秘的氛围,让人们在感受科技魅力的同时,也能享受到片刻的宁静与放松。
Its interior spaces unfold around a central atrium, employing a column-free design to create an expansive, fluid, and transparent exhibition environment. Circulation naturally flows around the atrium, immersing visitors in a boundless spatial experience. Above the atrium, soft daylight filters through three tiers of water features, casting dappled light and shadow across the floor. Highly intelligent motorised sunshades provide optimal lighting for the exhibition spaces, adjusting according to time and natural illumination. The flowing water surfaces above the skylights not only infuse the interior with a sense of nature but also cultivate an atmosphere of tranquillity and mystery. Visitors thus experience the allure of technology while enjoying moments of calm and relaxation.
▼科学展厅内景,Interior view of the science exhibition hall©存在建筑
▼阳光中庭的演讲,The speech in the Sunshine Atrium©Midea
建筑立面 简约极致
Building Facade: Minimalist Perfection
科学中心的造型设计同样采用极简、精准的语言与材料。高纯度的白色人造石材和大尺寸超白玻璃共同构成了建筑的外立面,二者相互搭配,相得益彰。白色人造石材赋予了建筑一种庄重、沉稳的质感,彰显出科技的严谨属性;而大尺寸超白玻璃则为建筑增添了一份通透与轻盈,使其在阳光下熠熠生辉。透过玻璃,人们可以隐约看到内部的展示空间,激发人们的好奇心与探索欲。这种材质的运用,不仅使建筑在外观呈现出简洁、现代的风格,更通过光影的变幻,赋予了建筑丰富的表情,使其在不同时间、不同角度都展现出独特的魅力。在夜晚,灯光透过玻璃点亮整个建筑,成就科技园区独有的含蓄和青春之美。
The architectural form employs equally minimalist, precise language and materials. High-purity white engineered stone and large-format ultra-clear glass jointly compose the building’s exterior façade, complementing each other perfectly. The white engineered stone lends the structure a dignified, steadfast quality, reflecting the rigour inherent in science and technology. Meanwhile, the expansive ultra-clear glass imparts a sense of transparency and lightness, causing the building to shimmer brilliantly under sunlight. Through the glass, glimpses of the interior exhibition spaces intrigue passers-by, sparking curiosity and a desire to explore. This material palette not only lends the façade a clean, contemporary aesthetic but also, through shifting light and shadow, endows the building with expressive depth. It reveals distinct charms at different times of day and from varying perspectives. At night, illumination radiating through the glass illuminates the entire structure, achieving a unique blend of understated elegance and youthful vitality characteristic of the technology park.
▼水池边的科学中心,The science center by the pool©存在建筑
▼树林中的科学中心,The science center by the woods©存在建筑
▼科学中心与美的主楼,The science center and Midea main building©存在建筑
▼展厅层+会议层+接待层,Exhibition hall floor + conference floor + reception floor©存在建筑
室内空间 流动无界
Interior Space: Boundless Fluidity
美的科学中心的室内设计追求材料和形式的极致淡雅、空间体验上的流动无界。简洁的设计风格不仅符合科技展示的需求,更为高科技机器人产品提供了一个完美的展示背景。
▼无柱的空间结构,Column-free space strcuture©马泷工作室_BIAD
The interior design of Midea’s Science Exhibition Center pursues the utmost subtlety in materials and form, alongside a spatial experience characterised by boundless fluidity. This minimalist aesthetic not only fulfils the requirements of technological display but also provides a perfect backdrop for showcasing high-tech robotic products.
▼展厅巨大的机械臂屏幕,The huge mechanical arm screen in the exhibition hall©存在建筑
▼展厅多媒体互动装置,Multimedia interactive installation in the exhibition hall© 王重力
▼首层展厅入口,the entrance for the exhibition hall on the ground floor© 王重力
在科学中心中没有过多的装饰元素,一切都为突出展示内容为生,人与科技的对话才是空间的核心与主角。白色的墙面、简洁的地面,与高科技产品的金属质感相互映衬,8t重载机械臂机器人搭载着超大尺度屏幕,以动态的形式与观者展开生动直接的对话,形成强烈的视觉冲击。同时,简洁的设计也为未来的展示内容更新和空间调整提供了更大的灵活性,使科学中心能够始终保持与时俱进的状态。
▼轴测图,axonometric©马泷工作室_BIAD
Within the building’s interior, excessive decorative elements are absent; everything exists to accentuate the displayed content. The dialogue between humanity and technology remains the core and protagonist of the space. White walls and unadorned flooring complement the metallic textures of the high-tech products. An 8-tonne heavy-duty robotic arm, bearing an oversized display screen, engages visitors in dynamic, direct dialogue, creating a powerful visual impact. Simultaneously, this minimalist approach offers greater flexibility for future content updates and spatial reconfigurations, ensuring the building remains perpetually contemporary.
▼从二层咖啡厅望向和美术馆,Looking from the second-floor coffee shop towards the He Art Museum© 存在建筑
▼二层科学展厅,The second floor Science exhibition hall© 存在建筑
▼从二层休息厅望向美的总部,Looking towards the headquarters of Mei from the second-floor lounge© 存在建筑
▼二层大会议区,meeting room© 存在建筑
景观设计
Landscape Design
我们的景观策略是将原有广场空间微微下沉,形成平静亲和的水面,虚实相生的建筑临水而居,仿佛与水融为一体。在炎炎的夏日,水面还能起到调节微气候的作用,为周边环境带来一份清凉。建筑周边的景观绿植与水面相互映衬,形成一个自然、和谐的生态环境。人们在繁忙的工作之余,可以来这里漫步,欣赏建筑与自然的和谐,感受艺术与科技的美好。
Our landscape strategy involves gently lowering the existing plaza to create tranquil, inviting waterscapes. Buildings, blending solid and void forms, sit alongside the water, appearing to merge seamlessly with it. During sweltering summers, the water surface helps regulate the microclimate, bringing a refreshing coolness to the surrounding environment. The landscape vegetation around the buildings complements the water, forming a natural, harmonious ecological environment. During work breaks, visitors may stroll here to appreciate the harmony between architecture and nature, while experiencing the beauty of art and technology.
▼景观水面与建筑,landscape water feature and building© 存在建筑
▼雨中的科学中心,Science Center in the rain© 存在建筑
美的科学中心,这座融合了科技、艺术与人文的建筑,以开放设计理念、流动的空间布局、高精度的建造控制、延伸的景观环境,展示了美的集团在科技领域的卓越成就,更向人们传递了一种对未来生活的美好憧憬。在未来的日子里,科学中心将继续发挥其独特的价值,不断推动科技与艺术的融合,为人们了解科技、感受艺术提供一个绝佳场所,成为未来探索科学与生活无限可能的平台。
The Midea Science Exhibition Center is an architectural masterpiece that seamlessly integrates technology, art and humanistic values. Through its open design philosophy, fluid spatial layout, high-precision construction control, and extended landscape environment, the building showcases Midea Group’s outstanding achievements in the technological sphere while conveying a vision of future living. In the days to come, the Science Exhibition Centre will continue to fulfil its unique purpose, driving the fusion of technology and art. It will serve as an exceptional venue for people to understand technology and experience art, becoming a platform for exploring the boundless possibilities of science and life in the years ahead.
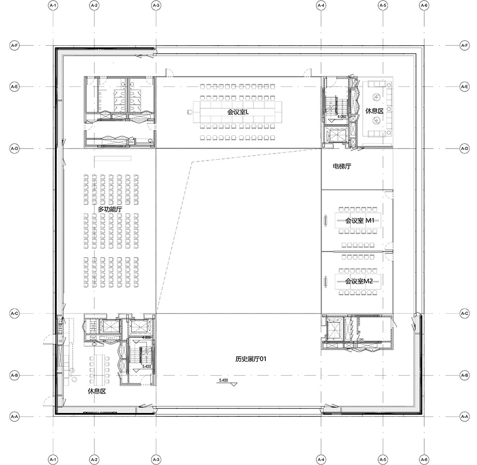
▼一层平面图,Ground floor plan©马泷工作室_BIAD
▼二层平面图,first floor plan©马泷工作室_BIAD
▼三层平面图,third floor plan©马泷工作室_BIAD
▼剖面图,section©马泷工作室_BIAD
项目名称:美的科学中心
业主单位:美的集团
设计单位:北京市建筑设计研究院有限公司
设计时间:2021-2023
建成时间:2024.10
建设地点:佛山市顺德区
建筑面积:5378.52㎡
结构形式:钢结构
建筑层数:地上3层
建筑高度:16.3米
设计团队
建筑设计:北京市建筑设计研究院马泷工作室、复杂结构研究院、第四建筑设计院、建筑与环艺设计院
总建筑师:马泷
建筑:王欢欢、金戈、丛晓、祁美蕙
结构:梁宸宇、唐艺峤、王立涛
设备:牛满坡、张亦凝、蒋玥
电气:陈钟毓、李爽
室内设计:王欢欢、金戈、张晋、邹乐
景观设计:王欢欢、金戈
Project Name: Midea Science Exhibition Center
Client: Midea Group
Design Firm: Beijing Institute of Architectural Design & Research Co., Ltd.
Design Period: 2021–2023
Completion Date: October 2024
Location: Shunde District, Foshan City
Gross Floor Area: 5,378.52 m²
Structural System: Steel Frame
Number of Storeys: 3 above ground
Building Height: 16.3 meters
Design Team
Architectural Design: Atelier Ma of Beijing Institute of Architectural Design, Complex Structure Research Institute, Fourth Architectural Design Institute, Architecture & Environmental Design Institute
Chief Architect: Ma Long
Architecture: Wang Huanhuan, Jin Ge, Cong Xiao, Qi Meihui
Structural Engineering: Liang Chenyu, Tang Yiqiao, Wang Litao
Mechanical Engineering: Niu Manpo, Zhang Yining, Jiang Yue
Electrical Engineering: Chen Zhongyu, Li Shuang
Interior Design: Wang Huanhuan, Jin Ge, Zhang Jin, Zou Le
Landscape Design: Wang Huanhuan, Jin Ge
客服
消息
收藏
下载
最近































