查看完整案例

收藏

下载
项目位于苏州平江路丁香巷,是苏州古城最核心的片区。这里西接平江路,东临仓街,原址是八十年代的一栋三层建筑,之前功能是丁香幼儿园。
The project is located in Dingxiang (Lilac) Alley of Pingjiang Road, the core area of Suzhou’s ancient city. It connects to Pingjiang Road to the west and Cang Street to the east, The original site held a three-story building from the 1980s, which previously served as the Dingxiang Kindergarten.
©张莫非Moffee
初见场地,这里已闲置多年,但有着平江路地区少见的大树院落,午后的阳光透过大树洒向墙面和地面,格外的宁静。在房间里透过窗口只看到一整片绿色以及透过树丛的光斑。虽然只隔几百米,但这里和平江路的小桥流水人潮涌动仿佛两个世界。
Upon first seeing the site, it was clear it had been vacant for many years, yet it possessed a courtyard with large trees, a rare find in the Pingjiang Road area. The afternoon sunlight filtered through the trees onto the walls and ground, creating an atmosphere of exceptional tranquility. Looking out from the rooms, one could see only a swath of green and spots of light shining through the foliage. Although only a few hundred meters away, it felt like a completely different world from the bustling crowds and scenery of small bridges and flowing water on Pingjiang Road.
▼街区俯瞰,Aerial View of the Block ©张莫非Moffee
▼庭院,Courtyard ©张莫非Moffee
业主想打造的酒店定位很清晰,“城市人文青年旅行酒店”,致力于为当下青年旅人编织与土地深度对话的独特体验。
The owner’s positioning for the hotel is very clear: the “Urban Cultural Youth Travel Hotel,” dedicated to weaving a unique experience of deep dialogue with the land for contemporary young travelers.
▼走廊远景,Distant view of the corridor ©张莫非Moffee
作为成长于此的苏州本土设计师,我一直认为苏州古城区是世界级的旅游目的地,但远没有像类似的京都这样的酒店民宿产品配置,因此有着巨大的潜力。我们希望这个产品是“城市文化接口”,而非单纯住宿空间,扎根于本土脉络,从历史街区出发,以空间为媒介,去发掘古城很多被喧嚣掩盖的精彩。
As a local Suzhou designer who grew up here, I have always believed that Suzhou’s ancient city is a world-class tourist destination, but it lacks the hotel and guesthouse product configuration found in places like Kyoto, hence it holds enormous potential. We hope this product serves as an “urban cultural interface,” not merely an accommodation space, rooted in the local context. Starting from the historic district, using space as a medium, we aim to uncover many of the ancient city’s wonders that have been overshadowed by the hustle and bustle.
▼东南向街区鸟瞰,Aerial View of the District, from Southeast ©张莫非Moffee
设计就是在做“顺势而为”的事情。房子的加固先前已由工程公司完成,因此我们的工作就是建筑外立面改造&室内设计&软装设计&景观设计。我们就围绕绿色、光影、情绪流转、客房需求等具体问题展开工作。
The design process was fundamentally about “going with the flow” and adapting to existing conditions. The building’s structural reinforcement had already been completed by an engineering firm, so our scope of work included architectural facade renovation, interior design, soft furnishings design, and landscape design. We then centered our work around specific issues such as greenery, light and shadow, the atmospheric/experiential flow, and the requirements for the guest rooms.
▼树林和檐口,The Grove and the Eaves ©张莫非Moffee
绿色基底
Green Spirit
几棵大香樟和大水杉是场地的骨架,使绿色弥漫在空间中成为大背景。
Several large camphor trees and dawn redwoods form the site’s framework, allowing greenery to suffuse the space and establish the primary backdrop.
▼色彩分析,Color Scheme Analysis ©咫间设计
翻新后的建筑是古城区的主色调白色,配以白透的阳光板檐口。主庭院是灰白色水洗石,建筑和庭院共同形成一个白色纯净的中间层次。
The renovated building adopts the predominant color of the old city—white—complemented by semi-transparent white polycarbonate eaves. The main courtyard is paved with greyish-white washed stone. Together, the building and courtyard form a pure, white intermediate layer.
▼庭院鸟瞰,Aerial View of the Courtyard ©张莫非Moffee
▼庭院空间,Courtyard Space ©张莫非Moffee
到了室内,我们使用了原木色海洋板和暖色涂料作为温暖的背景。主色采用了松绿、灰蓝、土黄这三个绿色友好色。局部的家具和软装我们选用了更为热烈饱满的色彩,如克莱因蓝,明黄,粉红等点缀其中。多种色彩在绿色的包裹下显得生动和谐。
Moving indoors, we used natural wood-toned marine-grade plywood and warm paint to create a welcoming backdrop. The primary palette consists of pine green, grey-blue, and earthy yellow—three colors that harmonize well with the dominant green. For specific furniture and soft furnishings, we selected richer, more saturated accent colors, such as Klein Blue, bright yellow, and pink. Enveloped by the overarching greenery, this diverse palette feels both vivid and harmonious.
▼林下庭院,Courtyard Under the Trees ©张莫非Moffee
这里,最初最动人的绿色,依旧还是主角。
Here, the greenery—which was the most captivating element from the start—remains the protagonist of the space.
▼庭院细部,Courtyard Details ©张莫非Moffee
树影斑驳
Dappled Shadows
场地的核心气质是迷人的林下光影。我们通过空间组织和材料过渡,让这片美妙的阴翳树影更好的渗透进酒店各个空间。走廊侧有客房挡雨的需求,就在走廊和树林之间设置了一层错落叠合的阳光板构筑,挡雨的同时让光线经过材质过滤幻化出不同的形态。
The core characteristic of the site is its captivating light and shadow beneath the trees. Through spatial organization and material transitions, we enabled this beautiful, dappled shade to better permeate the hotel’s various spaces. The corridor needed to provide rain protection for the guest rooms, so a structure of staggered, overlapping polycarbonate panels was installed between the walkway and the trees. While offering shelter from the rain, this also allows light to filter through the material, transforming it into different patterns.
▼走廊和树林,The Corridor and the Grove ©张莫非Moffee
大厅设置了不同尺度的取景窗,木格栅的透景门窗,半坐取景的条窗,北向打开的折叠窗等等,只为了庭院的树影婆娑可以融进室内共舞。
The lobby was designed with view-framing windows of various scales: doors and windows with wooden lattices that offer partial views, low-set ribbon windows for seated viewing, and north-facing folding windows, to name a few. This was all done so that the swaying shadows of the courtyard trees could melt into the interior and dance together.
▼仰望树林下的檐口,Looking Up at the Eaves Beneath the Grove ©张莫非Moffee
▼三楼走廊望向树林,View of the Grove from the Third Floor Corridor ©张莫非Moffee
▼走廊的朦胧光影,The Diffused Light and Shadows of the Corridor ©张莫非Moffee
▼傍晚的林间客房,Guest Room in the Grove at Dusk ©张莫非Moffee
▼西侧一角,A Corner on the West Side ©张莫非Moffee
▼夜晚的檐口,The Eaves at Night ©张莫非Moffee
▼入夜的林间客房,Guest Room in the Grove after Nightfall ©张莫非Moffee
情绪流转
Emotional Journey
我们希望客人从平江街区过来,进入到酒店里面可以经历一次生动的情绪流转。
We want guests coming from the Pingjiang district to experience a vivid emotional journey upon entering the hotel.
▼前厅一角,A View of the Reception Area ©张莫非Moffee
外部街区是传统且喧嚣的环境,进入到公区会有一种熟悉的陌生感,修复的木屋顶和雕花窗还是传统苏式,家具和陈设则是鲜明的当代感,一种好奇心被激发。通过大厅的转折进入到庭院,自然的树影纯净的庭院让人瞬间安静下来,想慢慢的在庭院里多呆一会。步入房间,鲜亮的色彩又让人激动起来,激发出想去探索周边的欲望。
The external neighborhood is traditional and bustling. Upon entering the public area, one feels a “familiar sense of novelty”: the restored wooden roof and carved windows are still in the traditional Suzhou style, but the furniture and furnishings have a distinctly contemporary feel, sparking a sense of curiosity. After moving through a turn in the lobby and entering the courtyard, the natural tree shadows and the serene courtyard bring an immediate sense of calm, making one want to linger there a little longer. Stepping into the room, the bright, lively colors are invigorating, sparking a desire to go out and explore the surroundings.
▼前台望向休息厅,View from the Reception Desk towards the Lounge ©张莫非Moffee
▼休息厅,The Lounge ©张莫非Moffee
▼休息厅望向前台,View from the Lounge towards the Reception Desk ©张莫非Moffee
▼客房色彩,Guest Room Color Scheme ©张莫非Moffee
客房设置
Guest Room Settings
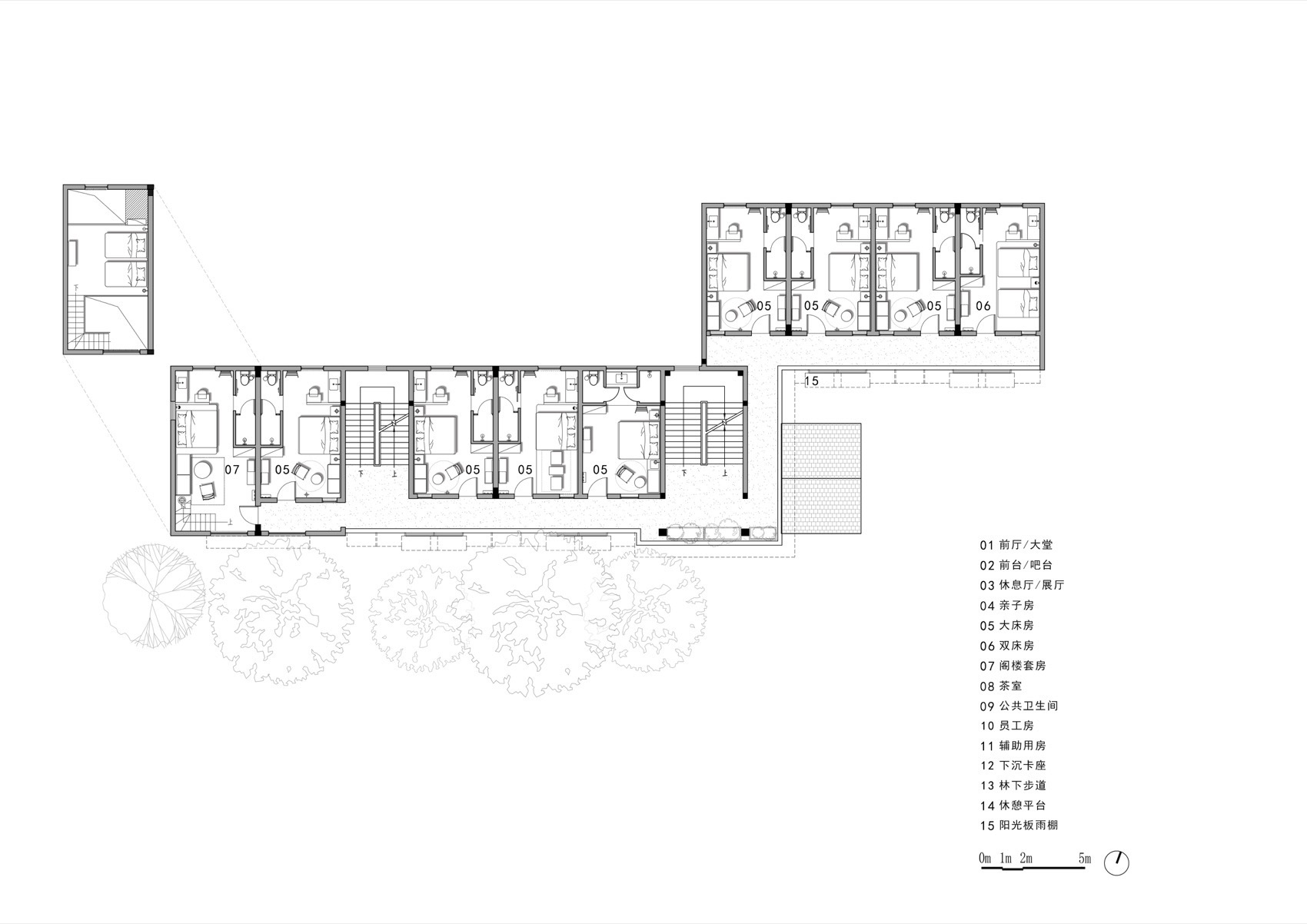
建筑原本的格局基本限定了30间客房的大体布置。我们和酒管方仔细研究了酒店定位下客户群体的需求,并根据各个房间位置和空间特点,设置了阁楼套房、庭院房、榻榻米房、宠物友好房等九种房型。在平均二十多平米的客房空间内,也分出了客厅休闲区,睡眠区,三分离卫浴区的布局。房间内因为原有格局采光有限,朝南对着树林,通过海洋板窗套和双层纱帘的组合,勾勒出朦胧光感的透景画框。北向面对居民区则是蜂窝帘的见光不见形,保证隐私又充满光线。家具联合时尚家居品牌,结合空间特质做了一些定制款的家具,很好的活跃了房间氛围。
The building’s original layout largely dictated the general arrangement of the 30 guest rooms. We worked closely with the hotel management to carefully study the needs of the target clientele and, based on the location and spatial characteristics of each room, designed nine room types, including attic suites, courtyard rooms, tatami rooms, and pet-friendly rooms. Within the average room space of just over 20 square meters, the layout still incorporates a living/lounge area, a sleeping area, and a three-part separated bathroom zone. Due to the original layout’s limited natural light, the south-facing rooms overlooking the trees use a combination of marine plywood window casings and double-layer sheer curtains to create a hazy, light-filled framed view. For the north-facing side, which faces the residential area, we used honeycomb blinds to achieve a “see the light but not the form” effect, ensuring privacy while filling the room with light. The furniture, customized in collaboration with a stylish home furnishings brand, complements the spatial characteristics and effectively enlivens the room atmosphere.
▼三楼阁楼套房,Third Floor Attic Suite © 松之屿
▼双床房,Twin Room © 松之屿
▼三楼坡顶房,Third Floor Sloped Roof Room ©松之屿
▼标准大床房,Standard King Room ©张莫非Moffee
▼一楼庭院房,First Floor Courtyard Room ©张莫非Moffee
▼一楼双庭院亲子房,First Floor Family Room with Dual Courtyards ©松之屿
▼房间外的树林,The Grove Outside the Room ©张莫非Moffee
结语
Conclusion
空间只是载体,设计只是手段不是目的,基于现状条件,通过设计手段,最终让空间形成带有精神和情绪波动的化学反应。
Space is merely the container, and design is only the means, not the end. Based on the existing conditions, the design techniques ultimately allow the space to create a chemical reaction that carries a spirit and emotional resonance.
▼现场原貌,Origina Scene ©咫间设计
在这里,大树的光影、热烈的色彩、多样的肌理,共同组成了一种迷离朦胧的空间气场。步入其间,让人同时产生了inner peace和inspiration的感觉。
Here, the light and shadow of the large trees, the vibrant colors, and the varied textures combine to form a dreamy and ambiguous spatial aura. Stepping into it, one experiences both a sense of inner peace and inspiration.
▼庭院桑拿小屋,Courtyard Sauna ©张莫非Moffee
▼主题画作,Thematic Artwork ©张莫非Moffee
▼标识细部,Signage Details ©张莫非Moffee
▼夜景鸟瞰,Night Aerial View ©张莫非Moffee
▼古城区鸟瞰,Aerial View of the Historic District ©张莫非Moffee
苏州古城除了为人熟知的园林老宅,小桥流水,还有大量不同时代背景下的“普通”存量建筑,这些空间也需要在当下找到合适的打开方式,从形式和业态上被唤醒激活,和园林古城共同构成当下城市更新中更为立体的空间序列。
In addition to the well-known gardens, old residences, small bridges, and flowing streams, Suzhou’s ancient city also retains a large number of “ordinary” existing buildings from different historical periods. These spaces also need to find the right way to be “unlocked” in the present, to be awakened and revitalized both formally and commercially, joining the gardens and ancient city to form a more multi-layered spatial sequence for contemporary urban renewal.
▼街区总图,Project Location within the District ©咫间设计
▼剖透视,Sectional Perspective ©咫间设计
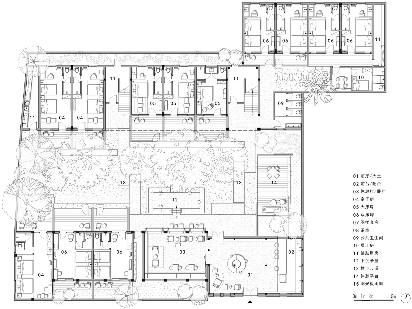
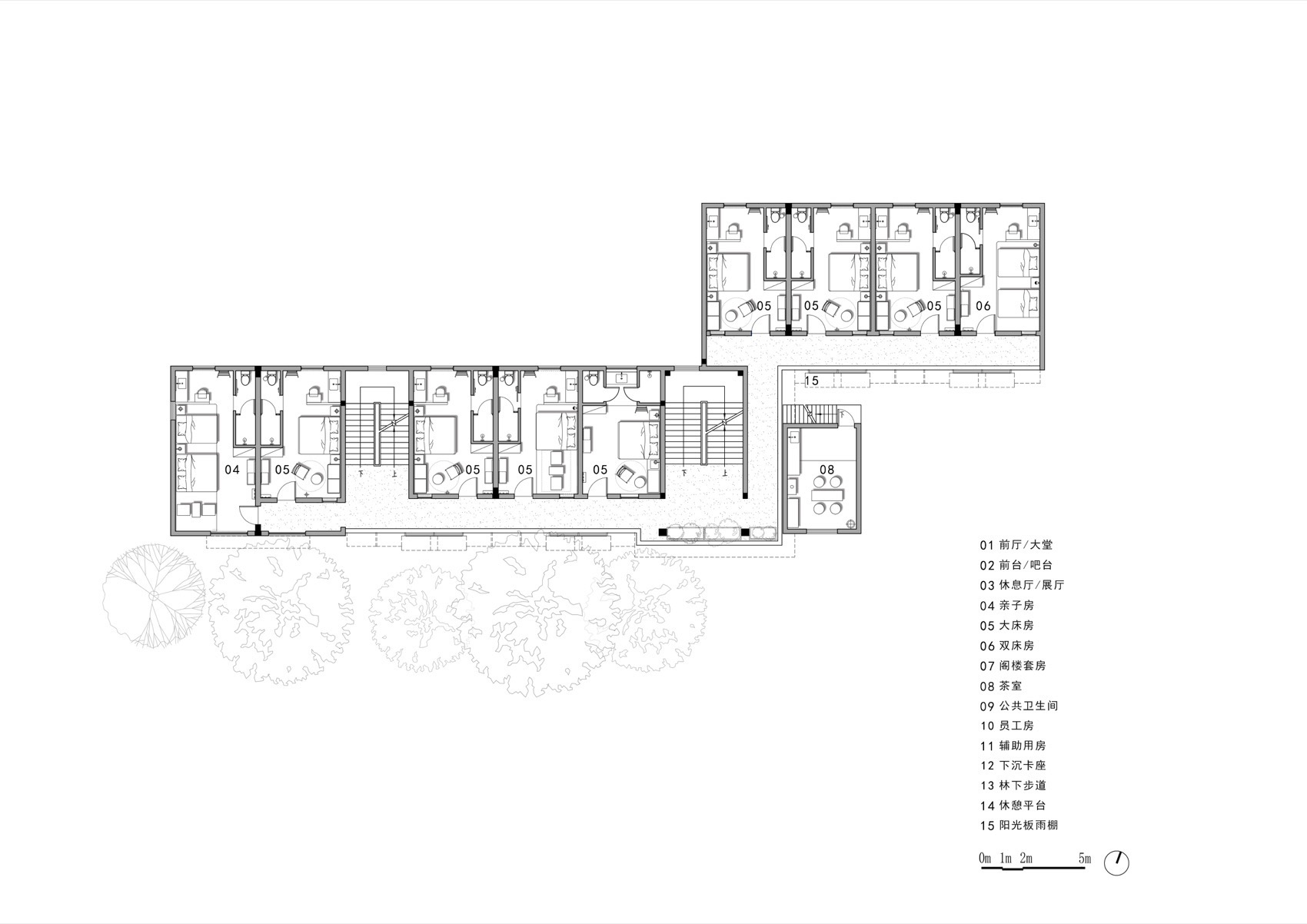
▼首层平面图,Ground Floor Plan ©咫间设计
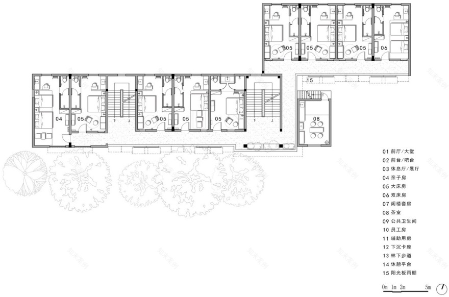
▼二层平面图,Second Floor Plan ©咫间设计
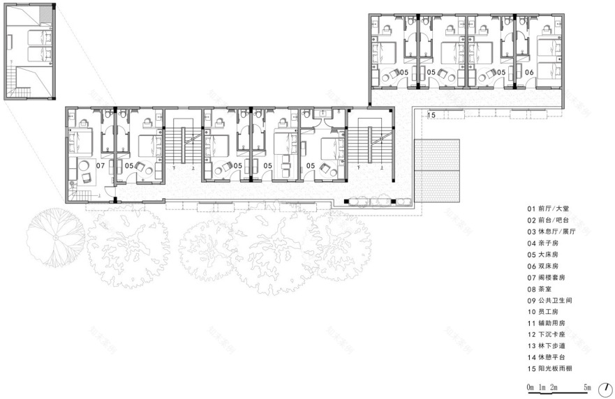
▼三层平面图,Third Floor Plan ©咫间设计
▼客房户型平面图,Floor Plans of the Room Types © 咫间设计
项目名称:平江路松之屿民宿
项目类型:建筑、景观、室内设计
业主方:苏州自然造意酒店管理有限公司
设计方:咫间设计
主创设计师:马嘉伟
设计团队:李博 冯筱绮 董江 马明宇 张羿劼
项目地址:江苏省苏州市姑苏区丁香巷41号
完成年份:2025.08
建筑面积:1500㎡
施工方:王刘杨团队
摄影版权:张莫非Moffee、松之屿
品牌:ziinlife 吱音、Good Monica、雾影自然
Project name:Songzhiyu Guesthouse on Pingjiang Road
Project type:Architecture, Interior, Landscape
Clients:Suzhou Ziran Zaoyi Hotel Management co.,LT
Design:Studio Ininches
Leader designer & Team:Jiawei Ma
Design team:Bo Li, Xiaoqi Feng,Jiang Dong,Mingyu Ma,Yijie Zhang
Project location:No. 41, Dingxiang (Lilac) Alley,Suzhou,Jiangsu Province
Completion Year:2025.08
Gross built area:1500㎡
Contractor: Wang Liuyang Team
Photo credit: Moffee 、Semri
Video credit: Moffee
Brands: ziinlife、Good Monica、Woooin
客服
消息
收藏
下载
最近






































































