查看完整案例

收藏

下载
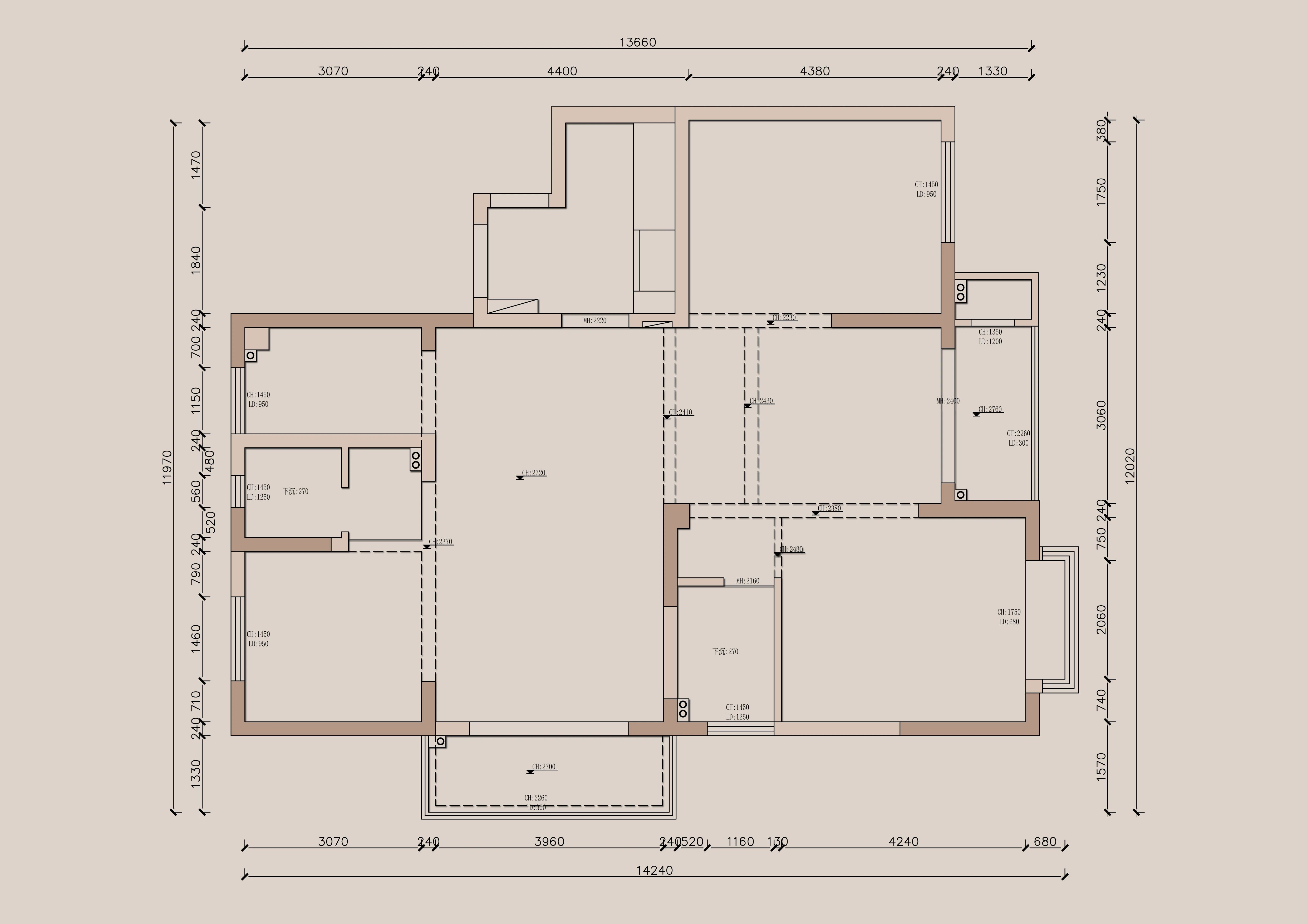
// 原始房屋,空间分析
房屋的构造往往会给生活的舒适与美造成一定的限制。本案为套内118平的住宅空间,由我的牙医小兄弟一家三口居住。在测量完现场之后,我们很快便感受到了这个房屋的缺陷,低矮的房梁,封闭狭小的厨房,L型的公共空间也显得相对局促,需要开刀的部位还是比较多的,南面窗景正对着公园,是一副纯天然的画作,西窗需要控制坐的位置以控制看到的视角,向西北面看的视角也是非常不错。
// 平面优化
根据上述的原始户型问题,我们首先决定将卫生间移位,借用内卫的整体下沉区,将外卫搬至内卫隔壁。男业主是典型吃货,也会经常在家做饭,所以一个宽敞舒适的厨房是必不可少的,我们将原本外卫与厨房合并为一个开放式厨房,并且原下水管的位置包裹后与餐桌岛台形成穿插,餐桌我们选择了大理石定制,南侧厅在融合衣帽和读书功能后的形体偏瘦,因此我们将餐桌做成了一个相应有指向性的大小头。客厅的部分为了更好进行家庭社交,我们将原本小房间做半开放的处理,形成一个亭,抬高的榻榻米移门打开后人可以直接坐在榻榻米上与沙发区域形成互望的交流关系,同时沙发、餐桌、榻榻米,形成社交三角,增添家人之间生活中的趣味性与活动区域的互动性。主卧我们相应做了内收,多层隐私的过渡。次卧则选用隐形门。书桌为定制异型书桌,以便于可以坐三个人的鸡娃的同时还各自有一定的活动空间。
你改变不了一座山的轮廓,改变不了一只鸟的飞翔轨迹,改变不了河水流淌的速度,但是设计可以改变人与环境的关系。静静地观察,能获得美。
《关系的真谛》
计的魅力在于其能够将美学与功能性完美结合,创造出既美观又舒适的居住或工作空间。室内设计不仅限于色彩、布局和材质的选择,它还涉及到对光线、氛围以及可持续性的综合考虑。
家是每个人心中最温馨的港湾,舒适的灯光,迎合空间感受的形态,无不在诠释着美。
自然的光影与景色,是房子非常宝贵的财富。
不向生活的残酷现实低头
对当下与未来永远保持热忱与希望
人生是一场旅行
只是一场旅行
担得肩头责任的同时
弯腰亦可见得美好
抬头亦可见得美好
须弥藏芥子 芥子纳须弥
万事万物终是平等
----------------
TEL:13295131158
ADD:江苏省无锡市锡山区东港镇山联村布Dai设计工作室
设计单位:芥弥·Dai设计工作室
施工单位:芥弥·Dai设计工作室
拍摄:支间摄
软装支持:里岸家居
客服
消息
收藏
下载
最近
































