查看完整案例

收藏

下载

翻译
Architects:Iniesta Nowell Arquitectos
Area:4144ft²
Year:2022
Photographs:Rafael Iniesta Nowell
Manufacturers:JUNG,Jansen,Strugal,Arkoslight,Dialum,Ikea,RCR deco
Lead Architects:Rafael Iniesta Nowell, Luis Gutiérrez Sancho
Category:Houses,Renovation
Collaborating Architects:Raquel Cidoncha Díaz
Promoter:B&S Inmo Consult
City:Jerez de la Frontera
Country:Spain
Text description provided by the architects. In the city of Jerez de la Frontera, wineries sit side by side with the rest of the houses to shape the historic center, establishing a unique city skyline that is closely linked to the wine-making tradition in this part of southern Spain. The “soleras and criaderas” system allows the wine to age in barrels arranged in vertical structures inside a specific type of cellar which needs to be large, dark, ventilated, and cool. These spaces have an unforgettable aroma and are dark save for the occasional ray of light.
From the end of the 18th Century, sherry wine began to be exported worldwide and the winemakers went from operating domestically to industrially without leaving the city. As a result, this city in the south of Spain has been shaped by its connection to wine production. In addition to the cellars, a whole array of streets, squares, and extra spaces have been needed for various maintenance tasks; including cleaning and repairing barrels.
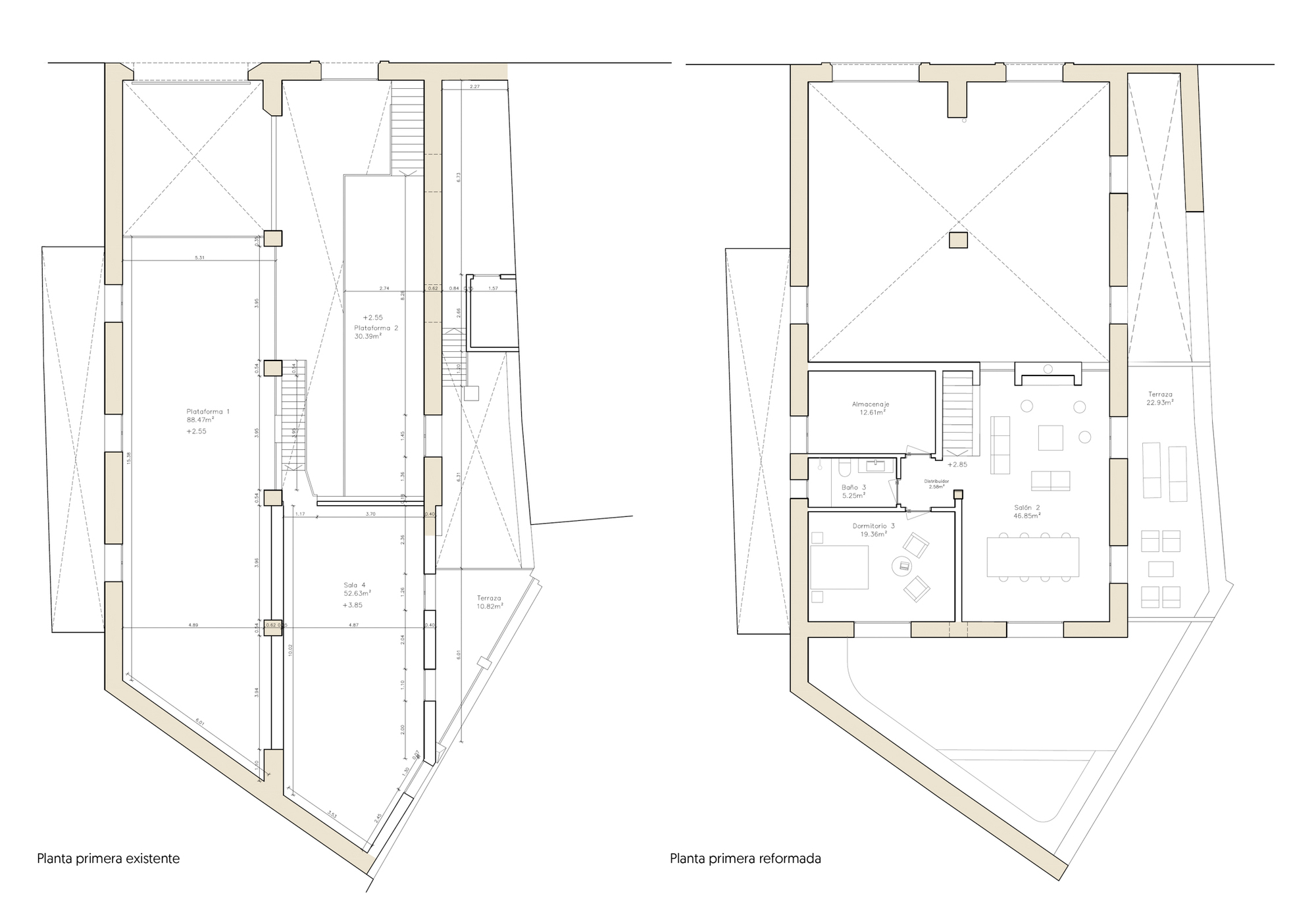
From the available documentation, we were able to ascertain that it was a small domestic winery, possibly linked to a house that has since disappeared. The deeds mention a maintenance alleyway, but this was impossible to see in the condition it was left in.
Restoring this winery was undoubtedly an opportunity to find a part of the old city – the network of service alleys that make up the “second city” connected to the world of Jerez wine. A city within a city.
We started with a very compact building without ventilation, then decided to work inversely by finding the remains of the service alley and opening up a new back terrace. This is a place for getting together, as well as to cool off in the small pool.
The living room and kitchen are located on the main façade, preserving the monumental character provided by the building’s original height, while to the rear the rooms are arranged on two levels with views over the patio with the pool. There are open-plan spaces that allow for a view through the whole building, both from south to north and east to west. The project became a process of studying and adapting the pre-existing structure, where we worked with systems and materials commonly used in winery architecture: local limestone, lime, pine, and iron.
Out of deep respect for the typology and building methods, we have renovated a forgotten structure into a Mediterranean, Andalucian house. At the same time, we have put part of the urban fabric of the city of wineries back into service, which continues to define Jerez today.
Project gallery
客服
消息
收藏
下载
最近
































