查看完整案例

收藏

下载
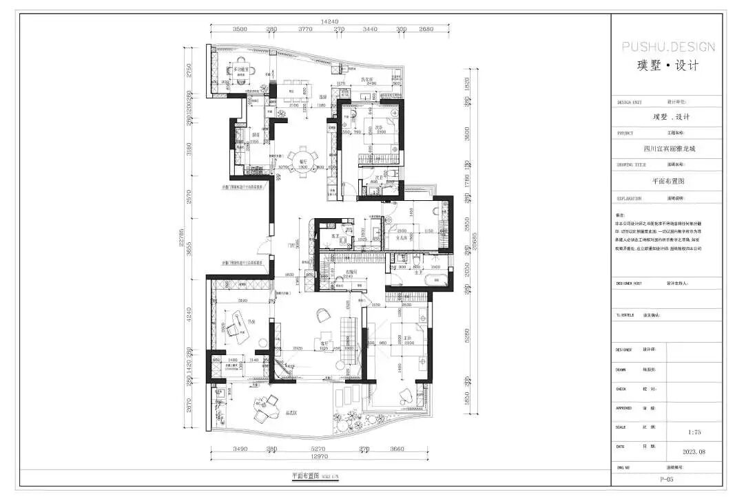
本项目为一座坐落于四川宜宾金沙江畔的300余平的大平层,格局规划为5室3卫2厅,拥揽开阔江景与自然风光。原始户型中,客餐厅区域采光与通透性较弱,在平面布局上进行了突破性重构:以半开放式茶室作为空间枢纽,既延展了客厅的视觉深度,又创造出流动的社交场景。
入户空间以兼具仪式感与实用性的玄关结合鞋帽柜系统展开,既满足了归家时的收纳需求,也通过材质与造型营造出从容的过渡体验。
客厅的设计摒弃了繁复的传统背景墙构造,选择以大面积的留白作为空间叙事的主轴。这种刻意为之的空白并非简单省略,而是为生活预留出了呼吸的场域,赋予居者超越物质层面的自由与松弛感。
更具前瞻性的是,这种留白策略为空间注入了可持续的生命力。在未来的五年、十年甚至更长时间里,居住者可以依据家庭成员的变化、审美倾向的演进或生活场景的转换,通过沙发组合的重新围合、艺术藏品的轮换展示、可移动收纳系统的自由组合,轻松实现空间场景的迭代重生。
这既是对当下生活本真的尊重——让空间退居于人之后,不为装饰所累;更是面向未来的智慧留白——让家真正成为能够承载时光与成长的诗意容器。
在设计师齐利的设计哲学中,她从不刻意赋予空间某种特定的“风格”标签。她深信,家应当是居住者气质与生活的容器,而非设计师个人审美的展场。因此,她更专注于营造一种温暖、松弛且能够自由呼吸的氛围——让每一处角落都映照出主人的品味、经历与情感记忆。
设计过程中,以周全的功能规划为基石,确保日常生活的便利与舒适;以流畅的动线布局为脉络,引导出直觉而自在的空间体验;以和谐的色彩与材质搭配为语言,书写出经得起时间审视的视觉韵律。这一切的初衷,都是为了打造一个既能安放当下生活、又能包容未来成长的家——它因独特而生动,因真实而永恒。
客厅外接的大阳台保留开放式设计,通过造型构架与汀步踏石的巧妙组合,将室外江景与绿意渐进式引入室内,实现功能、动线与景观的三重融合。最终打造出既有居住实用性,又能让自然成为日常诗意的现代居所。
主卧室门洞位置经巧妙调整,优化了整体动线效率,使公私区域衔接更流畅自然。做有温度的设计,让空间有松弛感,她也花费了很大的心思,让空间显得没有被设计过的痕迹。
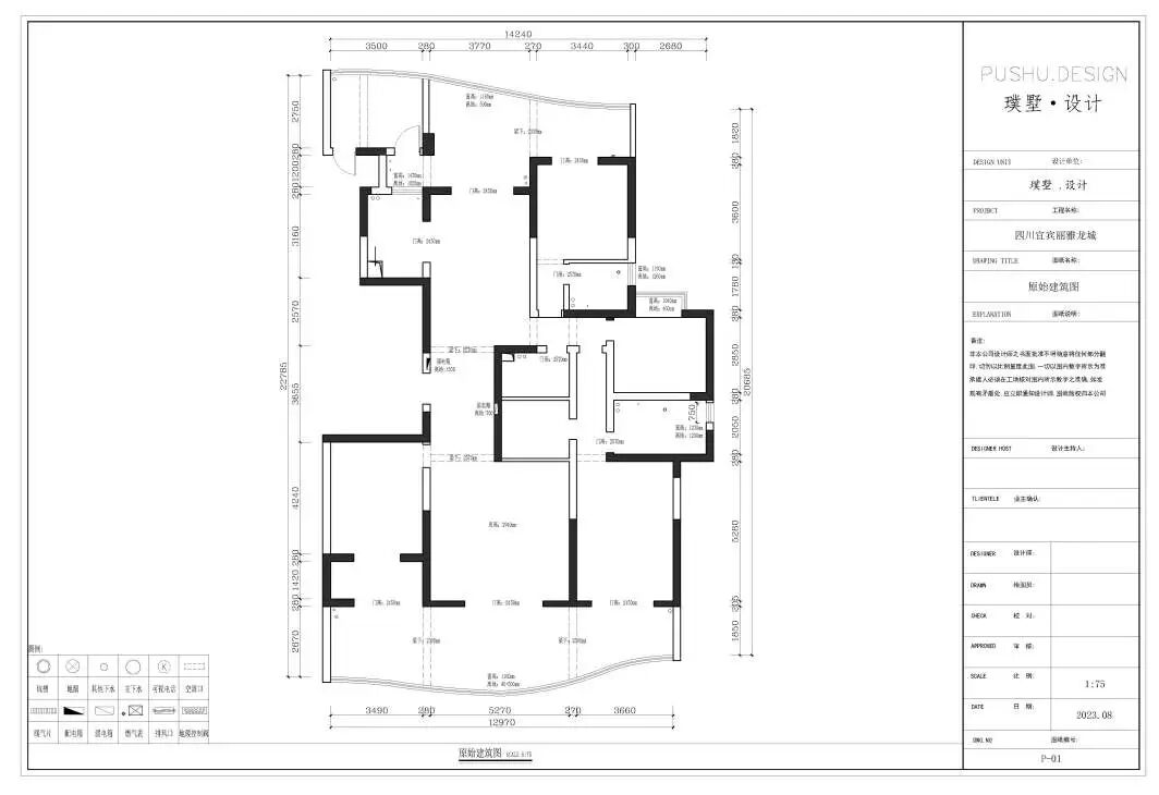
原始建筑图▽
平面建筑图▽
项目信息
项目名称:浩渺
项目面积:300㎡
项目位置:四川宜宾
设计单位:璞墅设计
设计主创:齐利
完工时间:2024年12月
主要材料:岩板、实木定制、楷模家具
关于设计师
齐利
设计主理人 / 璞墅设计
没有设计痕迹的设计才是最好的设计,在合理的预算范围内做最好的落地效果。
在她的职业生涯中,最早是美术教育,时代的发展使她成为了一名设计师。千里之行,始于足下。18年来随着她在这个领域的深耕细作,设计不仅仅是一份工作,更是一份责任,她最大的愿望就是让设计不炫技、不露痕迹地融入生活。
客服
消息
收藏
下载
最近






















