查看完整案例

收藏

下载
本项目位于杭州市萧山区。房子是偏江南中式的合院,业主是一位具有文化修养的企业CEO,一家三口,追求一种既能满足现代舒适生活需求,又能安顿身心的精神居所。
对于此项目的核心设计理念是:“隐逸于市,回归本心。”摒弃繁复的装饰,通过空间、光影与材质的对话,营造出一种宁静、质朴,充满诗意的栖居体验。让室内与自然共鸣,与内心对话。
室内空间设计与景观融合
整个房子改造完大概在650平方,地下利用层高优势做了二层,最大限度的充分利用空间。原室内地下层没有采光,是原空间最大的问题。我们通过花园下挖,做了叠层的下沉式花园,让负二层有了良好的景观和采光,同时让负一层的客房拥有一个室外露台,能够走出室外感受四季的变化。在室内我们也通过不同功能的需求做一些错层的处理,让居家体验在长久待的地方有足够的层高。
一楼和二楼采用了空间叙事的方式,“起承转合”的情感序列。
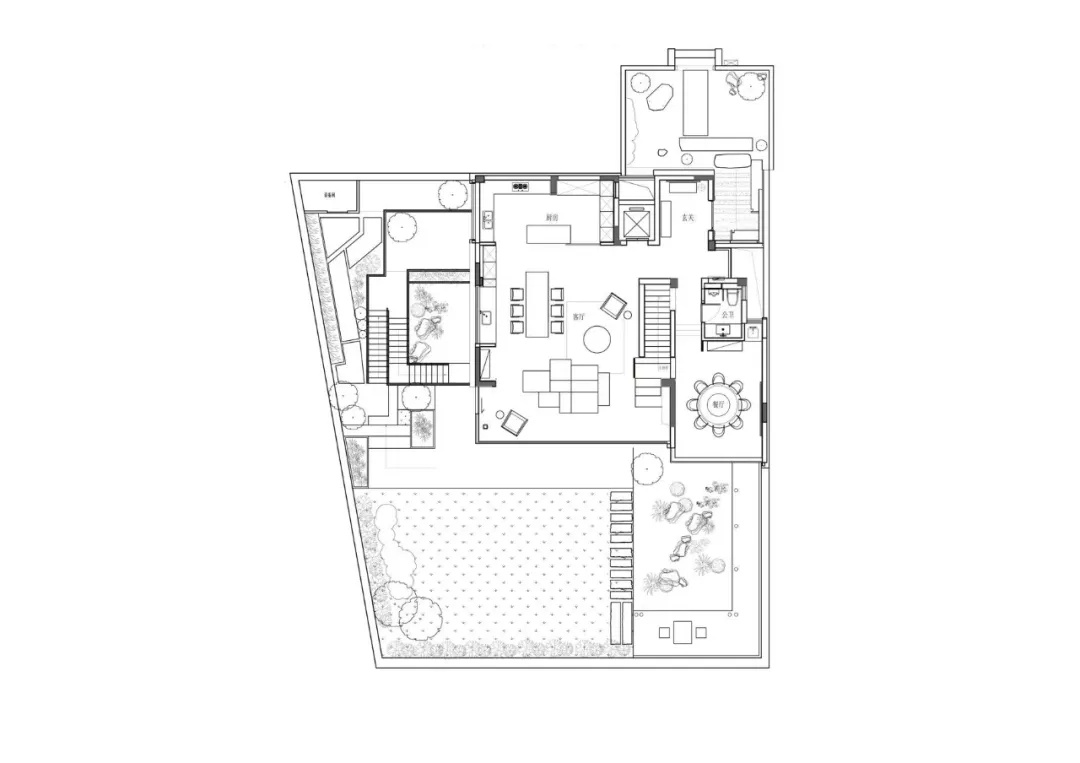
玄关作为“起”的一个过渡空间。一侧的采光天井让光影和绿色形成一幅活的框景,让人一入门便卸下尘世喧嚣。玄关的转折后便进入了豁然开朗的公共区域,客厅、餐厅、厨房一体化的设计。这里承载了家庭生活的核心,朝南近10米宽的大落地玻璃窗,让整个花园的景色映入眼帘。
一楼还设计了一个独立的中餐厅。通过中餐厅,可以走进花园的一个L型风雨连廊,让视觉有一个延伸,形成一个光影画廊,同时也让就餐有一个非常愉悦的心情。连接公共区与私密区的走廊和楼梯,贯穿了客厅和餐厅,使整个空间更加灵动和自由。
二楼则以“合”的设计手法,主卧拥有最佳的观景视角,空间氛围静谧、舒缓。小孩房则位于东南面,有自己独立的书房,同时也是一家人学习交流的情感场所。
整体室内采用了大地色系为基调,如米白、浅灰、橡木色。局部点缀深色木色,营造沉稳、温暖的氛围。材质也是橡木地板,艺术涂料,天然石材台面相互搭配。强调材质的天然肌理与触感,传递出温润、质朴的美学感受。
光影设计和庭院是这个房子的灵魂。我们通过精心计算的开窗,采光井,下沉式的花园,将自然光引入室内。光线在不同时间,不同季节,于墙面、地面投射出丰富多变的光影效果,成为空间中动态的有生命的装饰。庭院作为建筑的呼吸中心,尽量让室内外界限物理性消隐,从而使室内空间与庭院融为一体,实现真正的“生活在自然中”。另外,在智能家居与可持性设计的结合中,也是考虑以人为本。采用五恒系统、智能系统来提升居住的便捷性与舒适度。
《江南院》合院,通过现代设计语言,重新诠释了东方居住美学,让建筑、空间、人与自然和谐共生。
△负二层平面图
△负一层平面图
△一层平面图
△二层平面图
项目名称|江南院
项目地址|中国 杭州
项目面积|650㎡
完工时间|2025年3月
设计单位|杨钧设计事务所
设计内容|全案设计
主案设计|杨钧
软装设计|露丹
设计团队|潘思雨
空间摄影|叶松·翰墨视觉
施工单位|蓝匠精造
部分家具|Linepark家居
木作品牌|厘芈木作
智能灯光|摩根智能
岩板品牌|意东荟集合店,LAMINAM
艺术涂料|意大利萨铂
暖通机电|可瑞楼宇科技
地板品牌|米罗尼地板
门窗品牌|欧的门窗
杨钧室内设计事务所创始人&设计总监
LINE PARK线形公园家居生活美学馆创始人
杨钧设计事务所成立于2009年,杭州。凭借整体硬装和软装设计一体的服务机制,秉持国际化视野和原创精神,用强大的设计实力为高端私宅业主和商业整体设计客户提供配置服务。
并在2017年成立旗下LINEPARK生活美学馆——精选了全球大师经典设计作品,挑选标准相对其他,更强调设计感、时尚度,旨在为客户打造具有唯一性的生活空间,增添家居乐趣和生活美感。同时拥有线上线下双平台销售展示互动空间,不定期举办交流活动,更快速接轨国际时尚家具潮流。我们所倡导的设计,不是指设计这一概念本身,而是引领一种意识流,我们希望Line Park的平台就像一根线,通过这条线传递全新的生活理念,推崇一种更具有个人气质且无限活力的生活状态,让线形公园成为客户提升品质,开启美感生活的新起点。
售价: 1 金钱
设计美学与现代功能完美结合的典范。通过定制化设计、精挑细选的家具与软装陈设,打造成一处永恒的美学空间。设计美学与现代功能完美结合的典范。通过定制化设计、精挑细选的家具与软装陈设,打造成一处永恒的美学空间。空间氛围营造很棒,功能与美学很好的兼顾到了
一楼的餐厅做包厢吗?离厨房有点远,还有几级台阶。这么设计的目的是什么
666666
客服
消息
收藏
下载
最近














































































