查看完整案例

收藏

下载

翻译
ADLER HOUSE
Studio: BeInHouse
Architects: Krasnov Evgeny, Shchukina Julia, Kornilov Andrey
Visualization: Dmitry Karasev
Location: Russia, Moscow, Sochi
Area: 110- sq.m.
Year: 2025
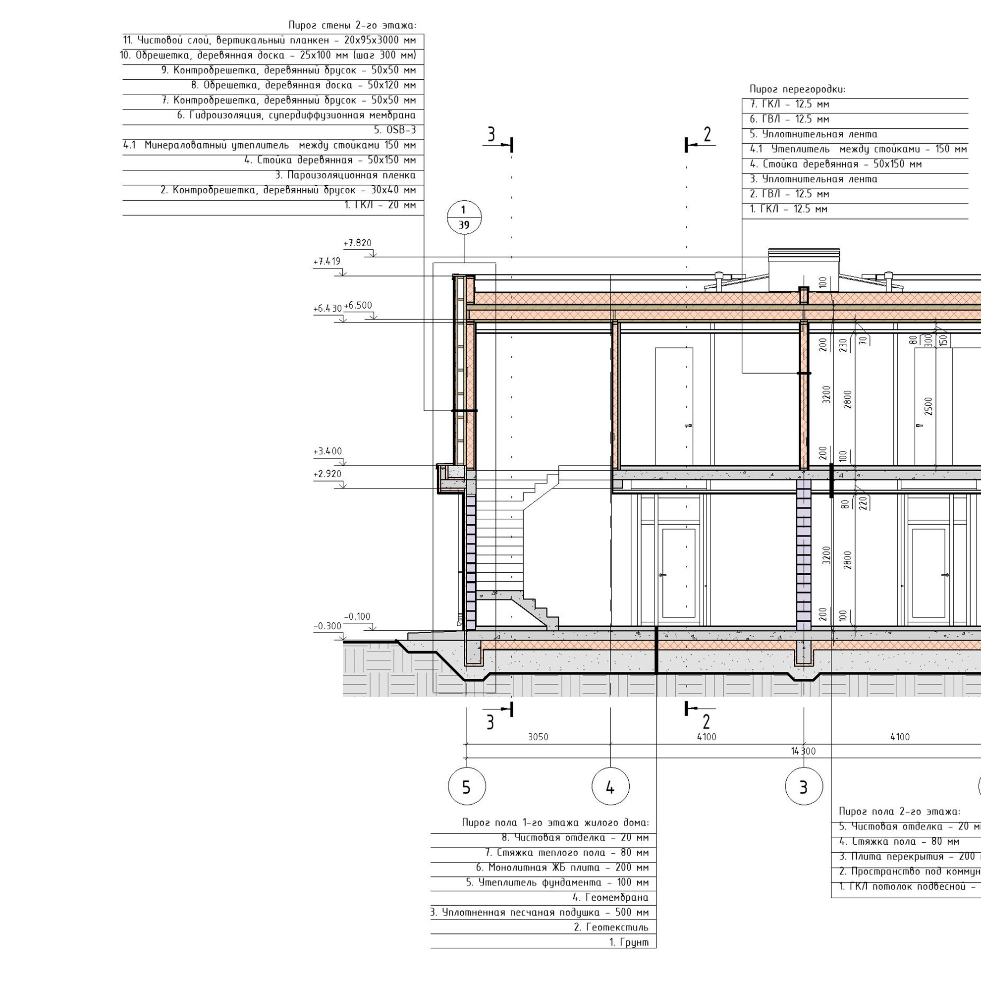
Проект таунхауса в г. Адлер. Наша команда проектировала его в течении 2025 года. Задача была разместить на маленьком и узком участке, блокированный дом, общей площадью 220 м2. Каждый блок по 110 м2.
На первом этаже удалось разместить кухню-гостиную, гостевую комнату, ванную, котельную. Второй этаж полностью жилой с двумя спальнями и гардеробами. Конструктивные особенности: первый этаж выполнен из монолита, стены заполнены блоками, а второй этаж будет построен по каркасной технологии.
Поиск через искусственный интеллект.
客服
消息
收藏
下载
最近

















