查看完整案例

收藏

下载
该项目委托内容包括对一座面积约2500平方米建筑的两阶段整体改造,用于设立“移民、移出者与难民援助服务中心(SAIER)”,这是一座市政公共服务设施。该建筑属于一个更大的综合体,内部设有多个政府办公室,其外立面与体量均不得改动。整个委托分为两个阶段:第一阶段为外壳改造;第二阶段为室内整体翻新。
The commission involves the complete renovation, in two phases, of a 2500m2 building to house a SAIER; a municipal facility for the “Immigrant, Emigrant, and Refugee Assistance Service.” The building is part of a larger complex that houses various offices, and its façade and volume cannot be altered. The commission is structured in two phases: Phase 1, renovation of the envelope, and Phase 2, complete renovation of the interior.
▼项目概览,Overall view © José Hevia
家居性与标准化
DOMESTICITY AND STANDARDIZATION
该设计将此次委托视为一次机会,用以颠覆传统办公建筑所具备的那种可预见的、冷淡的、重复的、缺乏特征的空间定义,并使其更符合SAIER作为一个为移民提供接待与管理服务中心的性质。超越具体的委托任务,我们提出一个问题:如何在办公空间中融入“家”的特质?
▼项目模型,model © Flexo Arquitectura
The proposal views the commission as an opportunity to reverse the predictable, sterile, repetitive, and featureless definition of an office building and adapt it to the characteristics of a SAIER, a welcoming and management center for migrants. Beyond the commission, we pose the following question: How can we integrate a domestic character into an office program?
▼建筑外立面,Facade © José Hevia
因此,设计以几何与材质的多样性为策略,来抵消办公建筑原本所具有的非个性化特征,使其更接近一个“家”的温度——一个真正具备欢迎感的居所。
▼轴测分析图,axo © Flexo Arquitectura
Therefore, we opt for geometric and material diversity as strategies to counterbalance the expected impersonal character of an office building and bring it closer to the domestic character of what a SAIER should be, a welcoming home.
▼改造后的公共区域,Space after renovation © José Hevia
几何与材质的多样性
Geometric and Material Diversity
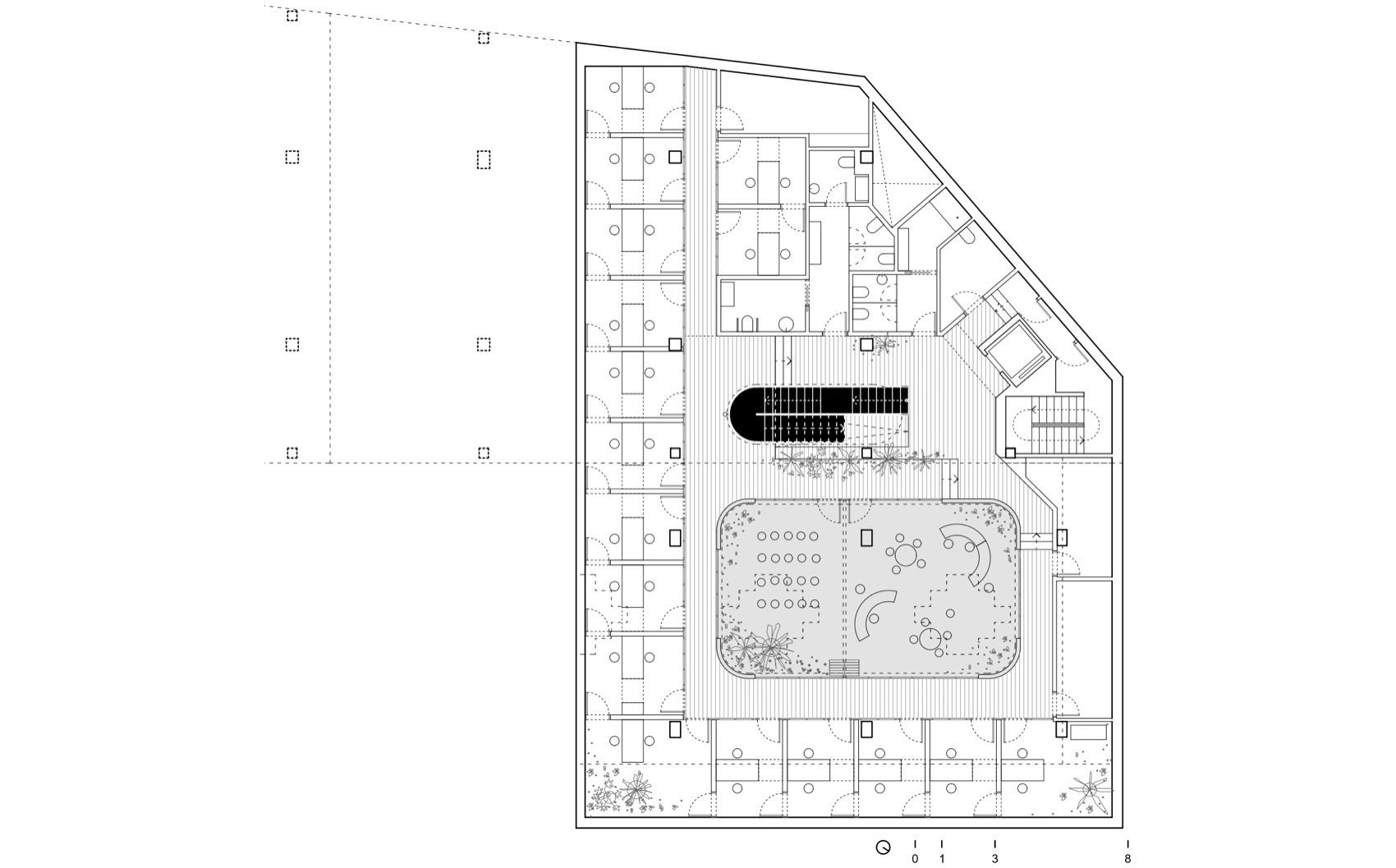
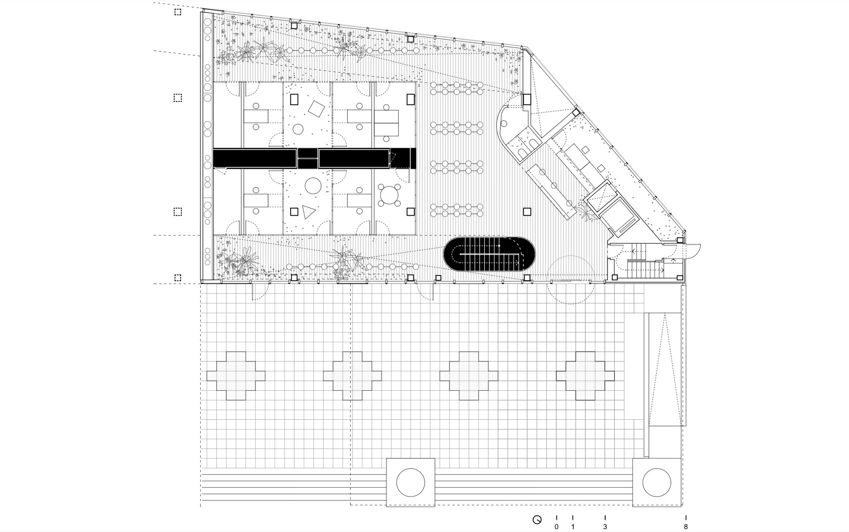
项目功能复杂,由不同内部团队(红十字会、社会服务与法律服务)以及多个市民接待空间(社会、法律、家庭、心理咨询)和两间多功能市政活动室共同构成。设计的组织原则是避免楼层之间的重复性。为此,建筑中插入了一系列“衔接单元”,这些单元在不同楼层上呈现出各异的几何形态、尺寸与材料特征。
The complexity of the program, defined by the different internal teams (Red Cross, social services, and legal services), the various citizen assistance rooms (social, legal, family, and psychological), and the two multipurpose municipal rooms, is organized with the premise of avoiding repetition between floors. This is achieved through the insertion of a series of articulating pieces, which modify their geometry, size, and material depending on the floor they are on.
▼不同用途的空间,Spaces for different purposes © José Hevia
在材质策略上,设计引入了手工制造的材料。因此,项目在工业化材料(折弯金属板、拉伸网、油毡、镀锌风管、热反射窗帘)与手工制品(釉面瓷砖、灰泥、喷涂砂浆顶棚、磨石地面)之间形成了对比与共融,整体施工方式更接近DIY的手作方式,而非标准化目录中的系统拼装。
The material diversity is based on incorporating handmade materials in their manufacture. As a result, the project combines industrial materials (folded sheet metal, deployé, linoleum, galvanized ducts, and thermo-reflective curtains) with others of artisanal production (glazed tiles, plasters, sprayed mortar on ceilings, and terrazzo), assembled using a technique closer to DIY than a specialized catalog layout.
▼釉面瓷砖等材质的使用,Glazed tiles © José Hevia
▼其他工业化材质的使用,Use of industrial materials © José Hevia
部分家具由市政府预设,另一部分则为定制设计,同样通过DIY式的组装方式,追求空间的独特性与个体感。
Part of the intervention involves the inclusion of pre-defined furniture by the City Council, alongside other bespoke pieces that, again, seek uniqueness through DIY assembly.
▼楼梯设计,Stairs © José Hevia
能耗降低
REDUCTION OF ENERGY DEMAND
针对一栋建于20世纪80年代的建筑,其外立面为密闭式幕墙、屋面为卵石铺设,项目的节能策略在于对外墙与屋顶的全面改造,同时保持原有的构图、材料与色彩不被改变。操作包括:将原有的保温层与玻璃更换为符合现行规范的新材料;增设可开启的窗扇以促进自然交叉通风。由于无法在外立面增加遮阳构件,设计采用热反射窗帘以确保适当的太阳辐射防护。
To reduce the energy demand of a building constructed in the 1980s, whose vertical envelope is a sealed curtain wall and the roof has a gravel finish, a comprehensive renovation of both is carried out with the condition of not altering the existing composition, materiality, and color. The operation consists of replacing the existing insulation and glass with new, regulatory-compliant materials, as well as introducing projecting windows to promote cross-ventilation. Given the impossibility of adding solar protections to the exterior facade, thermo- reflective curtains are introduced to ensure proper solar protection.
▼楼梯材质近景,Stairs details © José Hevia
在屋顶部分,设计提高了保温性能,并将原有卵石面层更换为绿色屋顶,从而在最暴露于阳光的界面上增加了建筑的热惰性。
In the roof, thermal insulation is improved, and the gravel finish is replaced with a green roof that increases the building’s thermal mass on the plane most exposed to the sun.
▼项目区位,site plan © Flexo Arquitectura
▼地下层平面图,basement floor plan © Flexo Arquitectura
▼首层平面图,ground floor plan © Flexo Arquitectura
▼二层平面图,first floor plan © Flexo Arquitectura
▼三层平面图,second floor plan © Flexo Arquitectura
▼四层平面图,third floor plan © Flexo Arquitectura
▼剖面图,section © Flexo Arquitectura
▼细节图,details © Flexo Arquitectura
Architects: Flexo Arquitectura
Client: Public. City Council of Barcelona. Open Competition First Prize.
Surface: 2.500 m2
Situation: Barcelona
Year: 2022-2024
Collaborators: Luis Tresaco, Freddy Leon, Itziar Cabo, Alberto Espinosa,
Bernat Ginot, Other Structures (structure), Albert Brufau (quantity surveyor), MTS Acoustics, Societat Orgànica (sustainability), AIA Activitats Instal·lacions Arquitectòniques (engineering), José Hevia (photography)
客服
消息
收藏
下载
最近































