查看完整案例

收藏

下载
重构生活场域,
让艺术、人文与自然相生,
共同谱绘生活诗章。
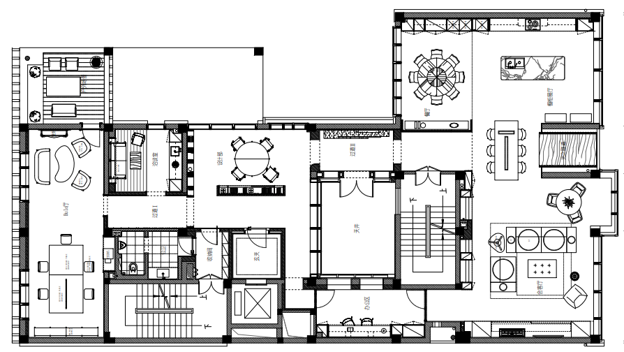
▲项目平面图
设计不可被束缚,自然亦不能被定义。“重构生活场域,让艺术、人文与自然相生,共同谱绘生活诗章”——这是 Justone 设计团队对理想空间不变的注解。当北欧的克制、法式的优雅与现代的精密在此交汇,空间便不再是单一的容器,而成为承载文化厚度与自然呼吸的对话场。
Chapter 1
艺境·转译
以“艺术聚落”为标的 ,解构艺术边界,拼筑多彩人文,打造多功能的复合艺术空间矩阵。这里融合了艺术鉴赏、生活休憩、社交互动等多元场景,以去边界化的设计赋予空间自由呼吸的张力。通过艺术感与生活感的平衡,创造可赏可居的沉浸式空间体验。
干净利落的笔直线条,为生活空间划分出不同的区域,行而有序、利落分明,如同蒙德里安的经典作品,图中右侧由 Luc Vincent 设计的沙发来自 BULO。
用色彩制造视觉焦点——空间里多采用自然材质的原色与低饱和度的莫兰迪色碰撞,这种撞色的风格并非对“野兽派”风格的直接复制,而是当代室内设计对艺术手法的“功能化转译”。规整秩序的几何化分割,也是对于蒙德里安与新造型主义的致敬。
Chapter 2
极简·序境
黑白灰的冷静色调,极具“神”性。与极简的艺术美学的搭配形成一种难以言喻的精妙。黑色的沉稳、白色的澄明、灰色的雅致,在空间的留白与克制中交融共生,形成独特的气氛立场。
于黑色的深邃中触摸生活的沉淀感,于白色的纯粹里感知人文的洁净追求,于灰色的过渡间领悟秩序的平衡特质,在空间的开合之间演绎着刚柔并济的极简生活,为体验者提供超越物理空间的心灵感知。
以大面积的黑、白、灰作为空间基调,确保了纯净与开阔感。对于座椅色彩搭配的策略是克制,又充满巧思的。图中座椅由 Vincent Van Duysen 设计来自 BULO。
Chapter 3
斯室·如画
“艺术无界,设计有灵。” ——艺术绘画的表达与空间设计的解构本就相通。剥离开居住空间的功能性表象,以画为媒、空间为幕,重新解构其审美与日常功能。让空间在聚变共生中,成为艺境合一的新境地。
当波普艺术的浓烈色彩撞上现代空间的极简线条,墙面不再是冰冷的空间,取而代之的是成为承载艺术的载体。无论安迪・沃霍尔的笔下经典的玛丽莲梦露和香蕉画作,还是凯斯・哈林的爱心图腾,都在这极简空间的秩序中,淋漓尽致地展现出当代艺术的不羁特质。
Chapter 4
和色·生机
作为艺术空间的基调,终究多了两分冷清,但居住的空间还是应该以生活为中心。设计团队以绿色大理石为脉,以深浅不一的木饰为枝,以朱红漆面为朵,营造出莺红柳绿的自然氛围,让空间更具呼吸感与生命力。虽无植株,但可见生机。同时也暗合了抽象艺术创作的精神,蕴含着浩瀚无垠的想象力。
老钱与现代艺术的交织,让每一次在空间里的凝视,都成为精神意识的私语。圆形弧顶的门梁设计,带着破旧立新的叛逆,让艺术的火种在此燎原。图中的座椅由 Vincent Van Duysen 设计,来自 BULO.
将绿色大理石的自然肌理与木质的生命质感,植入空间的脉络。在石材的苍劲秩序中展现木作的生命温度,构建自然与工艺交融的体验媒介。石材的冷冽里藏着大地的沉淀,木材的温润中蕴着生命的生长。经由匠心打磨,两者终得和谐,让空间成为自然生命力延续的立体载体。
地板来自于比利时的 BELGIQA,温润细腻的木质触感,让空间更添一些温暖色彩。
Chapter 5
创想·聚场
为了打破 “居家办公书房” 的固化认知,设计团队将西方工业的精密工艺,植入居家办公书房的美学脉络。在几何线条与艺术肌理间,辟出一处可专注、可碰撞的创想秘境。
艺术画作的色彩在空间沉淀,墙面石膏线的肌理在光影中舒展,在虚实相生的空间序列里消弭“秩序与美感”的边界,成为思维碰撞的第一重媒介。
沙发的哑光绒面与茶几的冷峻质感,形成一场精妙的材质对话,色彩的运用也独显匠心,由 Nathalie Van Reeth 设计,来自 BULO。
整个空间的墙面、雕花以及立柱装饰,皆由法国莱姆石所打造。纹理天然且细腻柔和,无粗犷的颗粒感,每一道都裹挟着古典建筑的气韵,沙发来自意大利 Ethim。
项目信息
项目名称:杭州西溪壹号
项目地点:浙江,杭州
项目面积:460㎡
设计时间:2024年 2月
完工时间:2025年 7月
设计公司:Justone 室内设计事务所
品牌支持:
柏冉BORAN、
FormaLighting、FLOS 、Tradition、Nemo、Martinelli Luce、Louis poulsen、Lumina、BULO、SITIA、CODUTTI、ETHIM
摄影团队:RICCI-吴奇睿
Justone 室内设计事务所2010年成立于杭州,以“家”为出发点,坚持“好设计、好交付、好服务”的全产业链优化布局,以“设计向善”为设计的人文内核,注重探索家中人与人、人与物、人与自然的深层关联,赋予家的感性体验以温暖诗意与精神归属。沿着“尺度 美学”的探索基础,挖掘设计背后的人性因素,坚持“设计向善”,专注在地性与国际化的交融,秉持学术态度不懈探索设计内涵与设计方向。
客服
消息
收藏
下载
最近































