查看完整案例

收藏

下载
从一张白纸到满屋烟火,
那些在图纸上反复勾勒的线条,
终于化作了可触碰的温度。
阳光穿过窗帘的弧度,
都是时光打磨的答案。
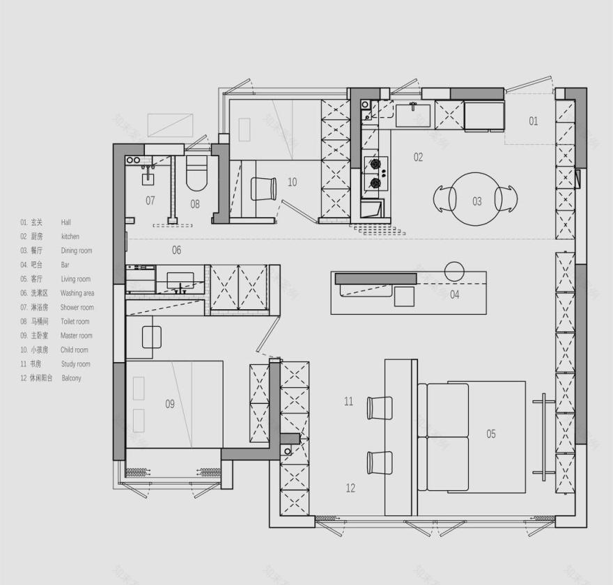
本案是一对新婚夫妻的婚房,他们对家的期望是不过是“温暖”二字,公共区域呈开放式设计,阳台扩入公区,最大化地释放空间,客厅与书房,餐、厨与玄关连接成一体,保持各自功能的独立性的同时,又增强了彼此的互动和视觉渗透关系。
玄关|HALL
玄关,是家的序章,用黑色天然莱姆石界定出玄关的边界。同时下沉式处理,打造落尘区,阻隔外界的纷扰和尘土。抽屉、挂衣杆、收纳区依次布置,让归家的第一步,就充满仪式感。
餐厨|KITCHEN & DINING
餐厨一体 “可开可合”式设计,是空间的智慧魔术。闭合时,是独立的烹饪天地与用餐角落,油烟与静谧互不打扰。打开后,又化作通透的社交场域,空间相融,延伸生活的尺度。与客厅和书房保持良好的互动属性。
岛台|KITCHEN ISLAND
这款超大悬浮中岛台,堪称厨房与生活空间的 “全能担当”。它能补充台面操作与收纳空间,让烹饪、备餐更从容。裸露的水泥墙、金属支架,与木质家具碰撞出独特工业感。
同时,兼具休闲区与西厨操作区功能,闲时可在此小坐,也能完成烘焙等西式料理操作。更妙的是,它还是家人间的交互纽带,做饭时能和客厅的家人轻松交流。此外,其独特设计形成 “洄游动线”,让空间动线更流畅,为餐厨生活带来高效与惬意的双重体验。
客厅| LIVING ROOM
客厅空间以浅木色与暖白色为主调,营造出温润柔和的氛围。开放式布局让书房、餐厨、中岛与客厅区域自然衔接,互动感十足。墙面的金属置物架,错落有致地陈列着书籍与摆件,兼具收纳与装饰性。
书房|STUDY ROOM
开放式书房与客厅完美融合 。没有传统的隔断阻碍,仅用木饰面吊顶界定,视野通透又开阔。悬浮长条书桌,是专注工作与阅读的小天地。折叠移门金属收纳柜,颜值与实用性并存。
卧室| BED ROOM
这间卧室,以柔和暖调铺就静谧底色。木质元素与浅白柜体相融,带来自然温馨感。蓬松床品、生机绿植,让每一寸空间都溢满松弛,是卸下疲惫、安放身心的治愈角落。
过道| PASSAGE
运用解构设计,打破传统规整感。以利落线条分割南北空间。通过对地面、墙体、顶面的解构重组,让过道不再只是通行空间,更成为连接各功能区的艺术纽带,每一处细节都在解构与重构中,营造出独特的空间韵律与视觉层次。
卫生间| BATH ROOM
只有一个卫生间的情况下,我们把卫生间做成非传统意义的三分离设计。 一个可丽耐一体盆浴室柜+洗烘套装 一个马桶间和一个淋浴房公用一扇吊轨移门 一个800库收纳柜,内嵌一个吊轨移门,可以把过道分割成一个临时的更衣间。
《原始结构图》
《平面布置图》
项目地址 | 安徽合肥
项目面积 | 96平米
设计总监 | 郝泽伟设计工作室
参与设计 | 王钰、欧阳晓雅
施工单位 | 郝泽伟设计工作室
项目摄影 | 知形摄影
主材配套 | 简梵定制、陶正瓷砖、丽多可美缝、织凡软装、采盈家居、博轩石材、灯具:李孝旺 、移门:周刚
T.187 1551 3485
地址:中国 | 合肥 | 瑶海区
宝文国际大厦908室
客服
消息
收藏
下载
最近


















































