查看完整案例

收藏

下载
《世界建筑导报》2025年1期刊载厘米制造的系列城中村实践项目——
城市与城中村的二元结构。
▼期刊内
页
城市与城中村的二元结构
深圳的故事一直都呈现出独特的两面性。
一方面,深圳仅用40年从小渔村发展成国际大都市的神话,是观察中国城市化进程的最佳样本;
另一方面,在经过规划的宽阔、靓丽城市的另一面,是没有设计、密集的握手楼和窄小阴暗的巷道为特征的现代“城中村”。
它们陷入城市化的包围、冲突,被玻璃摩天楼藏在身后,隔离他们的生长,成为城市中隐没的维度。
▼ 汇聚不同功能的情景
©厘米制造
在城市中的城中村是一种异质空间的存在。深圳的城市规划讲究效率优先,城市空间以宽路疏网为主要特征,这既源于快速推进城市化建设的需求,也是基于政策与社会结构的延续。而城中村具有与城市相反的窄路密网属性——街巷尺度狭窄,建筑密集如棋盘网格,均质的肌理像是农村田埂肌理的延续。这种空间形态可能源自村集体土地的分配制度,农村转为城中村的时间较短,保留了更多的原有结构。我们认为,城中村较为亲近人行的尺度,以及蕴含的通透性、开放性和多元性的特质是最令人着迷的地方。厘米制造在城中村的一系列实践,具有时间与空间、政策观察与实践的连贯性。
▼ 城市肌理
城中村-村中城
福田村是深圳城中村的一个典型,它位于福田区核心区域,深圳中心公园东南面,北邻华强北商圈,南面是现正被热炒的河套深港科技创新合作区。福田村的名字寓意得福于田,这个具有好意头的名字也被深圳市福田区沿用了下来。
▼
改造后的 T.LOFT 概
念体验馆
©夏至
▼ 室内空间
©夏至
▼方案草图
©厘米制造
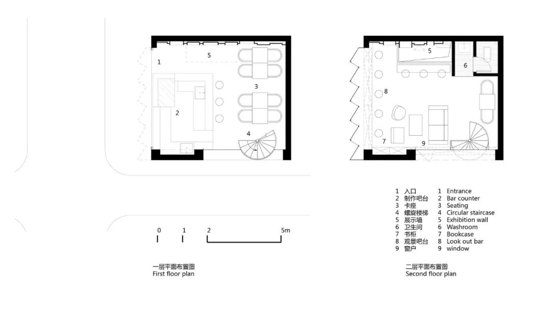
厘米制造在福田村的实践始于2016年。表面上,福田村没被列入城市更新单元计划,但它一直处于自我更新的状态。村内兴建了文化广场、文化长廊、图书馆等公共设施,产业上也有村集体经济实体作为支撑。最终,福田村形成了多个分支村坊围合中心公共空间的格局。T-LOFT项目位于其中的贝底田坊西南端,面朝环庆文化广场,这里聚集的大量活动人群加速了现有的商业街铺的发展与升级。我们希望在多元混杂的环境中,为城中村创造更多的机遇。
▼ 一层的公共会
客区
©夏至
我们的策略是移植城中村不同尺度的空间形态来加强社区的功能结构,以此整合福田村复合的功能类型。以多样化的空间策略创造多变化的立体场所,容纳城中村复杂多元的生活情境模式,使人们从周边的不同区域汇聚于此,进而提供最大限度的交流机会、最为多元的互动情境,以此来形成一个充满吸引力的、独特的、城中村的“村中城”。
▼ 内
部空间分析 ©厘米制造
▼ 一层的公共会客区
©夏至
▼ 二楼的私人空间增加了空间的差异化
©夏至
改变原本封闭且一成不变的店铺形象,最大化的把内部空间展示出来,以此形成一个与广场公共活动发生互动关系的关键节点。方案设计中,一层空间为开放的公共会客区,灵活的空间布置在满足日常餐饮使用的前提下亦可衍生出展览、讲演、沙龙、电影放映、时装秀场等多样的空间类型。二层空间划分为若干个功能属性、相对私密的独立空间,集合了书吧、桌游室、工作室、办公室、休息室等功能,为多样性的需求提供一个差异化的复合空间。
▼
改造前后的社区环境对比
©夏至
我们希望构建“新旧共生”的空间体系来完成对城中村高度包容性的“城市共生”社会体系的嫁接,在保留完整的空间结构及表皮肌理的前提下植入全新空间形态,金属铝板包裹的夹层复合空间与保留的墙面肌理形成视觉反差,从而强调空间的新旧交融、和谐共生。通过本项目激发关于城中村生活和商业发展模式更为多元的认识和想象,赋予更多的社会性、艺术性及公共性,并重新思考城中村生活的内涵和价值。
▼ 室内空间
©夏至
▼ 与公共空间互动的节点
©厘米制造
城中村-村中巷
新洲村位于福田区南部,它的南侧是300亿规模的“大金沙旧改”——一个涵盖四座城中村、三大工业区的超级概念。这样巨量的经济利益诱惑之下,新洲村也在加速自我的价值迭代。村股份公司拆除了不少原来的村楼开发成现代化的商品房,使得现在村内形成农民房和住宅小区之间“你中有我,我中有你”的城市面貌。村内除了大量随处可见的街铺摊贩,也有仅一路之隔外的大型跨国连锁超市。
▼
改造后的十点创意饮品店
©张超
▼街巷场景概念图
©厘米制造
新洲村未必需要和它的邻居一样,步上彻底拆除重建的道路。2017年,我们发现在城中村的多元文化背景下,商业店铺都面临着紧迫的空间多元化、个性化的转变需求。而餐饮业是目前新洲村内最主要的商业业态,占据约八成。十点创意饮品店就位于南村内部两条重要街巷的十字交叉口,急促穿行的人群与L型临街巷转角商业界面是构成这个区域节点的重要因素,不到100立方米的室内空间在满足基本商业活动的同时还期望能为周边生活人群提供一个文化与艺术交流的平台,最终在这种微小尺度的空间下产生一种差异化的行为共生。
▼方案草图
©厘米制造
▼面对街道的吧台以及
售卖区
©张超
设计的策略是最大化利用这两条街巷的空间特征,将室内临街的商业售卖吧台、延展到街道的螺旋形楼梯及二层的观演窗台等序列性的功能空间与城中村里复杂多元的商业生活情境模式有机结合,以此建立一种生动有趣的多维度街巷空间互动关系。结合新洲南村所在城市区域的空间属性与周边城市功能结构,突破传统单一的商业模式的空间形态,赋予这个空间更多的文化性、艺术性及公共性意向,为这里的消费人群创造最大限度的交流可能,从而进一步强化了城中村的多元化及多样性。基于现有的城中村街巷空间体系之下,重新构建一个整体纯粹的形象与相对杂乱无序的氛围形成强烈视觉对比,成为新洲南村的商业文化新坐标。
▼连接两层空间的螺旋形楼梯拉近了室内空间与街巷之
间的关系
©张超
▼二层观巷吧台
©张超
方案设计中,以项目所在地新洲南村地图肌理衍生的图形结合空间墙面形成格物柜,展示墙,电箱设备,局部的漏空让整体空间形态上下渗透与延续,连接两层空间的螺旋形楼梯侧边的弧形玻璃外墙让室内外有了视线上的延伸,拉近了室内空间与街巷之间的关系。二层临街面外墙集合了遮阳、观巷吧台、储物、掩藏卷闸门等系列功能。内部在满足基本的商业空间使用前提下,二层空间亦可结合需求转换为小型的艺术展览、沙龙活动、主题派对和球赛放映等多样的空间类型。
▼一层室内空间
©张超
▼
局部的漏空室内空间
©张超
▼城中村区域地图与室内元素结合
©厘米制造
▼平面图
©厘米制造
我们通过这种城中村实践,寻求一种除了“推倒重建”之外更适合城中村更新的常态,为不仅是城中村人群提供多元的空间需求,也让城市中的其他人有机会、有意愿走进城中村,赋予城中村生活更多元的价值,缝合城市空间边界的隔阂。
▼十字街巷的十点创意饮品店
©张超
城中村-村中台
南头古城,深圳城市的原点。见证了作为前深圳中心区域从岭南沿海地区的经济、行政管理中心,到演变为军事边防要塞,直至改革开放后“东升西降”——罗湖区兴起,古城逐渐被村庄淹没。南头的居民唤自己作“九街村”,但深圳市显然有着更宏远的目标,希望南头扮演好历史文化传承与保护典范的角色,并探索在“新常态”的城市更新模式。于是到了2019年,“西为东用”,以“城市共生”为理念的大规模改造实践展开。
▼街景照片
©厘米制造
厘米制造的南头实践,由多栋建于八九十年代的二至四层村楼组成,分别位于街巷东西两侧。东侧的植物楼经房东业主多年悉心栽植,二层平台上种满了各色绿植,呈现“万楼丛中一方绿”的独特气质。西侧两栋住宅楼一高一低,一进一退,建筑立面分别为南方城中村典型的灰色水刷石和红色马赛克,其中靠南侧的二层水刷石小楼退出一块空地,被生活垃圾站占据。这四栋低矮建筑建筑由周边无数村楼包围,形成“楼谷”之势。
▼轴测分析图
©厘米制造
经过前期现场勘测调研后,得出三大改造策略:一、保留东侧植物楼自然生态景观,将其作为古城南街中段主要的建筑节点;二、结合古城景观空间规划整体更新改造设计,拆除垃圾站作为口袋广场,在细长街巷中提供一处放开的景观空间,从而与东西两侧的四栋建筑围合成整体室内外节点空间;三、保留修复原有建筑,规整立面材料,凸显出那个年代的建筑质感,强化建筑围合形成的山谷之势,首层建立近人尺度丰富且差异化的虚、实边界,拉进各楼栋与口袋广场的视觉关系。
▼街景照片
©AC
▼模型照片
©厘米制造
植物楼改造设计中,保留了二层以上的建筑与植物景观,让原业主一直以来的生活空间和生活方式延续而不被改变,以“无设计”的设计行为强化其特性呈现,为周边高密度的城中村贡献一种空中森林秘境景观。首层采用直径35CM的弧形玻璃连贯包裹,以通透性的界面制造出与街巷、口袋广场及周边商铺的互动关系,产生差异化的戏剧性效果,同时也是未来展览空间视觉输出的媒介窗口。一、二层之间横向悬挑的岩板压低入口,强化水平线关系,既解决西晒与遮雨功能,又创造出清晰简约的临街特征和举重若轻之态。这种楼园叠加的独特景致恰好又与口袋广场景观相呼应。
▼改造后的植物楼
©张超
▼街景照片
©张超
▼
展览空间视觉输出的媒介窗口
©厘米制造
西侧的建筑与口袋广场贴合,在首层边界设计中强调两栋建筑入口的同时采用契合古城风貌的火山岩材料整体连续形成实的边界。火山岩墙面结合原有二层建筑阳台、延伸至口袋广场的露台,院墙砌筑造型变化为边界增加更丰富的表情。靠南侧二层楼的水刷石立面中加入绿色调马赛克材料将建筑入口、楼台空间、屋顶平台及盲窗填充规整,与北边修复的暖色调马赛克建筑立面产生视觉对比,和而不同。
▼方案草图
©厘米制造
▼剖透分析图
©厘米制造
当展览、办公、生活和商业等丰富多元的功能围绕中心口袋广场展开之时,首层临街界面的差异性被放大,营造出南头古城十字街巷重要的空间节点。与此同时,四栋建筑围合形成的各式退台、露台、屋顶平台与中心口袋广场“舞台”构建了多维度空间对话关系,为街区特定的事件演艺活动创造更多的可能。
▼演艺活动
©万科城市研究院
我们在南头的一系列城中村项目实践,希望最大可能的发掘项目所在场地空间特征,提炼原有建筑空间材料语音,植入新的元素产生对话关系,将单一功能空间场景创造出无限复合型多重功能场所,为日常平凡的生活赋能。
愿景
总之,深圳的城中村现象,不能简单的用二元对立的观点来看待。当下,城市更新的政策已有所转变,许多基于大拆大建的空间生产方式,已被渐进式、针灸式的更新改造所替代。
城市越来越倾向于从主观到客观、从一元到多元、从单一性到复合性的发展方式。
在我们看来,通过从城中村来观察、推演城市发展更具有意义。我们期望的是,
通过
类似城中村实践的
大量局部环境的重塑
,
而不是各类巨型
新城
区的建设,形成
未来
城市空间持续生长的
“惯性”。
人们已经习惯了中国速度、深圳速度,如今我们可能需要重新学会慢下来
,学会用更谦卑的姿态
与环境、与城市、与过去
对话。
▼延伸阅读
城中村-村中城:T.LOFT概念体验馆
《城中村-村中巷:十点创意饮品店》发表于《建筑实践》2019年第7期城市更新
南头古城植物楼
深·莞·津三地更新改造实践展 l 厘米制造
南头古城都市曲线发型设计品牌店 l 厘米制造
《当代中国建筑实录》l SMOORE总部工业园改造
《建筑细部》l SMOORE江门工业园改造
客服
消息
收藏
下载
最近









































