查看完整案例

收藏

下载
2025年日本大阪世博会中国馆已于4月13日正式开馆。中国建研院作为中国馆建设的全过程工程咨询服务单位,承担了全过程项目管理、工程勘察、方案深化设计、工程设计、展陈设计、招标代理与采购咨询及全过程造价咨询、工程监理、建筑信息模型(BIM)设计等工作。回顾中国馆的建设过程,中国建研院充分发挥“国家队”技术优势,在项目全过程咨询服务中实现多项技术突破,以创新技术和精细管理打造国际工程典范,彰显当代中国建筑技术实力。
大阪世博会中国馆外立面
(左右滑动查看更多)
首个按照日本建造规范和
审批流程完成的工程项目
中国建研院在大阪世博会中国馆
建设全咨服务过程中,
积极探索中国设计咨询
“走出去”新模式
,
成功克服中日技术标准差异,
以日本建筑基准法为依据,
根据大阪市消防局、
大阪市都市计划局建筑科、
日本建筑综合试验所的指导意见,
通过严谨的
设计论证保障
中国馆竹简造型内外统一的完整呈现。
在紧张的设计周期中,
项目团队成员及时
学习跟进、融会贯通,
因地制宜、依法合规
推进设计工作,
按计划完成设计成果编制,
并创造性地积累了在日本
开展设计业务的有益经验。
△中国建研院参加大阪世博会中国馆项目论证会讨论手稿
面对全新的日本建设报批流程,
项目团队快速学习掌握,
在设计报审的各个环节,
设计团队提早与相关部门接触沟通,
按照项目计划顺利获得
大阪市临时建筑申请许可书、
日本建筑综合试验所
建筑申请确认通知书
及结构合格判定通知书、
日本国际博览会协会
建筑工事开始许可证书、
展示设计书承认证书、
展示工事开始许可证书,
实现
所有许可批复“准点达”
,
确保了项目如期推进,按期竣工。
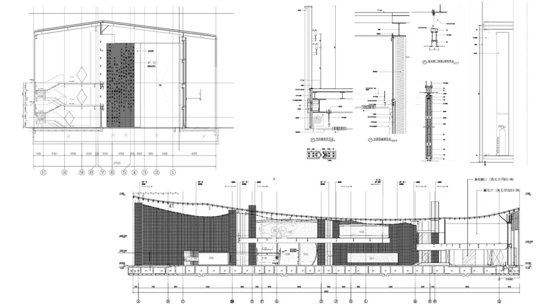
大阪世博会中国馆项目设计图纸
(左右滑动查看更多)
首次实现在日本体系化
输出中国建造技术
中国馆项目全过程采用的
多种设计建造技术充分展现了
“中国制造”的综合技术实力
和中国速度优势,
也是“绿色中国”理念的
成功探索与实践。
中国馆通过创新的低碳技术
实现绿色可持续建筑目标;
通过装配式、模块化和
综合技术措施实现低干预、
可逆化的建造与拆除;
通过创新材料构造实现
建筑物功能与形式的完美结合。
△大阪世博会
中国馆竹简造型内外统一完整呈现
亮点一:装配式可逆化
建造设计为工期提速
为提高构件材料现场组装精度及效率,
并考虑后期拆除便利性,
中国馆项目的钢结构、竹简外墙、
屋面阳光板等重要构件材料
全部采用在国内采购预制生产、
分批运输至大阪施工现场
安装的
装配式建造模式
。
其中,主体钢结构生产后在国内
完成了整体预组装和预搭建工作,
拆除后运往日本进行现场安装;
为验证施工工艺,
充分保证效果,
在中国建研院内进行了
竹简板样板组装和现场认样工作。
△
大阪世博会中国馆主体结构屋顶钢梁精准吊装到位
亮点二:低碳材料与技术
为绿色节能提质
中国馆项目所使用的钢结构材料、
竹质材料、阳光板幕墙等
均为
可循环利用材料
,
其中,竹简墙材质选用了
国内新型低碳固碳的竹质产品,
该材料具有其生长周期短、
固碳能力强的优势;
△大阪世博会中国馆立面
竹简外墙
利用园区集中冷冻水节能低碳
用能方案、优化气流组织、
采用节能及智能照明和
节能电梯对能源系统
进行
主动的高效优化
;
通过优化围护结构选材、
自然通风采光等方式
进行
被动式的本体节能
。
△大阪世博会中国馆室内
中国馆屋面为多曲面,
并有透光要求。
设计采用“
堵
”与“
疏
”相结合方式,
在下方增设了排水沟,
排水沟相互贯通,
通过檩条高差将水“倒出”室外。
△
大阪世博会中国馆立面及排水沟
设计完成后,在中国建研院
建筑安全与环境国家重点实验室
进行了
足尺样板测试
,
历经三次加压淋水实验,
检测抗渗漏性能,
验证了系统构造做法的可行性。
完工后的屋面防水
既不影响曲面屋面的整体造型效果,
又保障了防水的安全性能。
△大阪世博会中国馆项目屋面阳光板试验
这些措施都充分展现了
“共同构建人与自然生命共同体
——
绿色发展的未来社会”
的中国馆主题。
亮点三:
原创自主研发数字化智慧建造管理平台
为建设提效
依托中国建研院国内首款
完全自主知识产权的
——BIM基础平台
BIMBase
,
△大阪世博会中国馆
数字化智慧建造管理平台
针对中国馆项目的
大部分主体建筑材料采用
国内采购和加工制作、
海运至大阪现场
再进行装配式组装的特点,
结合设计阶段构件单元化、
模块化和轻量化的前提条件,
自主研发数字化智慧建造管理平台
。
△自主研发的数字化智慧建造管理平台
创新采用跨境远程可视化管控模式,
实现建筑材料从生产加工、
运输、装配式组装直至
最后拆除的项目建设全过程
实时监督和动态管理
,
有力保障了中日团队“零时差”协作,
为“智慧建造”理念提供了
成功实践范例。
4月13日,
这座凝聚中国智慧与创新成果的
国家馆正式亮相,
向世界传递中国技术与
文化的双重魅力。
图片来自大阪世博会官方网站
中国建研院通过采用
建设全过程工程咨询模式,
始终坚持协作共赢,
通过系统性沟通机制与跨单位协作,
从
设计源头创新
,在
技术领域突破
,
以
管理体系融合
,用
智慧手段管理
,
是中国建筑工业化和工程管理
现代化成果的一次集中展现。
End
文章供稿:建筑设计院
宋正正 黄璞
客服
消息
收藏
下载
最近

















