查看完整案例

收藏

下载
— 传承的设计理念 游艇级施工工艺 —
Inherited design concept
Yacht class construction technology
海林设计HLD
#星湖奥园 | Celestia Cove
奥园以得天独厚的地理优势,将建筑与自然完美融合。项目总面积约
1446㎡,其中室内设计面积1213㎡,花园景观面积233㎡,以湖光山色为背景,打造天人合一的国际级人居体验。
在这里,家不仅是栖居之所,更是艺术与自然的共生空间。让每一处空间都承载着审美愉悦与惬意生活。
LIVING ROOM
客厅
01.
步入客厅,大面积的落地窗将星湖七星岩的壮丽景观引入室内,光影流转间,仿佛一幅动态的山水画卷。
空间以自然材质为基调,木质、石材与金属的碰撞,营造出丰富的层次感。柔软的布艺沙发与艺术摆件相得益彰,让居者在休憩时也能感受美学熏陶。
DINING ROOM
餐厅
02.
餐厅延续自然优雅的风格,开放式布局让用餐时光更加自由随性。设计师选用天然石材餐桌搭配皮质餐椅,在精致与粗犷之间找到平衡。顶部悬挂的艺术吊灯,以流畅的线条呼应窗外景致,让每一次用餐都成为视觉与味觉的双重盛宴。
HOME OFFICE
书房
03.
大面积的木质元素带来温暖质感,而落地窗的设计则让自然光温柔洒入,使阅读、办公成为一种享受。偶尔抬头,窗外的湖景与鸟鸣相伴,让灵感自然流淌。
MASTER BEDROOM
起居室
04.
三层主卧空间延续整体硬朗基调,在材质与光线的拿捏中加入更多层次:墙面以温润浅灰为基调,辅以金属质感的灯光装置与柔软织物相对平衡,营造出刚柔并济的静谧氛围。大面积落地窗引入自然光线,使得每一个晨起与夜晚都充满从容与安定。
男主人衣帽间以墨绿色大理石、金属质感与柔和灯光共同营造出沉稳、克制却不失格调的空间语言。弧形墙面与通体暗柜勾勒出流动而有力的线条美,步入其间,仿佛置身于一间精品男装陈列室。高效收纳与展示系统融合,皮具、西装与腕表各就其位,秩序井然;温润木纹地板与金属线条交织出细腻层次感,体现出男主人对生活仪式感的极致追求。
四层的女主人卧室以米杏色为基调,融合奶油质感与弧形结构,将女性独有的优雅气场自然铺展。步入其中,仿佛走进一幅柔焦画面,阳光透过落地窗洒在地毯与织物之上,空气中弥漫着静谧与舒适的氛围。床头定制镂空软包背景墙与天花流线相呼应,柔中带序,构建出一份恰到好处的秩序感。沙发、茶几与阅读区围绕起居展开,容纳下生活的精致片段与日常温柔。
连接主卧的衣帽间与化妆间,是一位独立女性生活态度的写照。开放与封闭结合的衣柜系统,配合灯光设计,既有展陈的美感,也不失实用功能。
化妆间以柔和材质与精致灯光铺陈氛围,最引人注目的,是那面定制的大型异形镜——如水面般在墙体流淌,打破常规边界感,为空间注入一丝艺术的张力。
RECREATION ROOM
娱乐空间
05.
步入负一层,仿佛进入一个独立而私密的生活剧场——这里是专属于主人的娱乐与放松空间。
设计师通过质感石材铺陈地面,搭配镜面不锈钢与柔和灯光的反射,营造出兼具现代感与温度的空间氛围。撞色艺术挂画为空间注入趣味与活力,台球桌与吧台相得益彰,既可独自小酌,也可三五好友小聚对局。整体布局围绕“轻松社交”展开,将高级感与功能性完美融合,体现出屋主对生活方式的独特追求。
这片互动空间如同一处隐秘的观影殿堂,主打金属质感的材质语言,在光影变幻中营造出未来感与包裹感并存的视觉体验。银灰色调与流畅的线条交织,低调却不失力量,仿佛置身科幻电影的内景之中。
HEALING SPACE
疗愈空间
06.
在别墅的负二层,我们将功能空间赋予“疗愈”的温度。健身区沿用整面镜墙与拱形设计,让运动的律动与光影交织出流动美感。自然植被背景墙与柔和灯带,消解了力量训练的生硬感,使每一次锻炼都回归身心平衡。
而一旁的SPA间,则是彻底放松的私密领地——运动后的一杯热茶,一次芳疗,身体在此被修复,心灵也得以归零。
滑动查看→
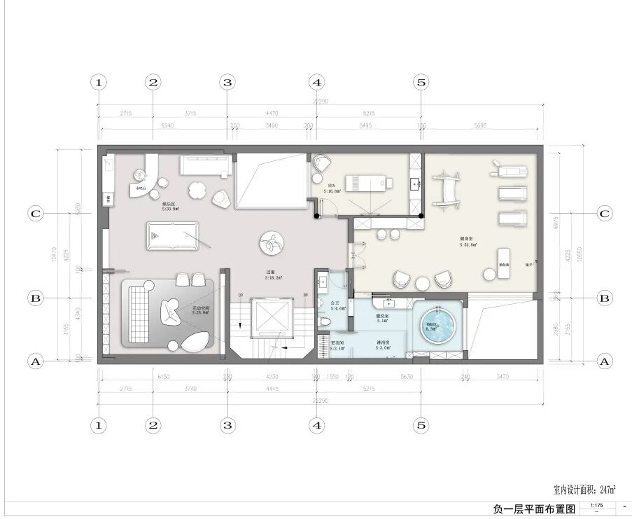
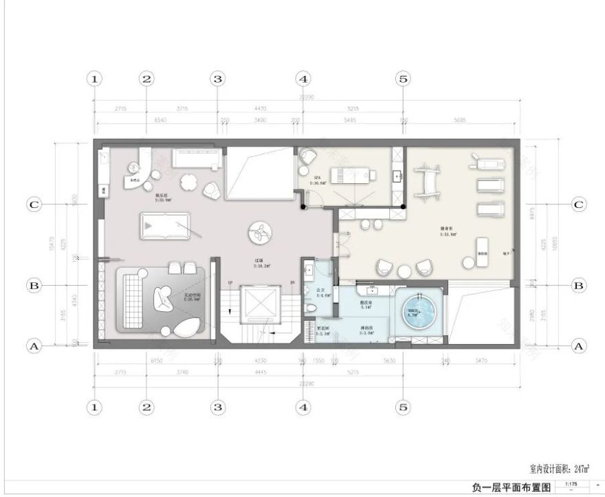
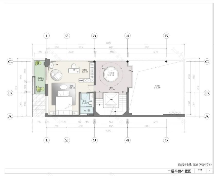
△ 平面布局图
项目信息
Project Information
项目名称 | 奥园别墅
项目地点 | 大湾区
设计公司 | 海林国际
软装陈设 | 尚联艺墅
施工单位 | 金樽建设
项目面积 | 1000平方米
▼
客服
消息
收藏
下载
最近


































