查看完整案例

收藏

下载
240㎡现代极简风
-
-克制是最高级的浪漫-
以克制的设计语言,
消解空间与生活的边界,
用纯粹的材质与光影对话,
让每一处留白都生长出自由,
这是居所,更是内心的自在场域。
全盛别墅设计
是居所,也是心灵的自在场域
<留白即自由
>
In The Case
<走进案例>
入户区域以浅灰色微水泥地面铺陈,通高的黑色柜体,采用无把手设计,简洁的线条延伸至天花板。柜子下方特意留出空间,方便放置扫地机器人,减少日常清洁的繁琐,镜子下方的台面,可以随手放置钥匙、包包等小物件,实用又美观。
客厅吊顶天花的设计参考了绸缎的造型,围绕着客厅中间的结构梁做了一体的圆弧形处理,一直延伸到沙发背景,让天花和背景完全结合起来,达到统一的视觉效果。落地窗取消冗余窗框,将室外花园景观引入室内,阳光漫射时,地面与墙面的光影流动成为空间最生动的装饰。
餐厅与客厅无界相连,整面通高黑色柜体是空间的 “骨架”,无把手设计让视觉彻底 “减负”,嵌入式电器与收纳功能暗藏其中,岩板背景墙与餐桌台面形成材质呼应。
餐桌选了绿色岩板,长宽为1800*900mm ,绿色岩板与白色纹路碰撞,以天然纹理打破纯色沉闷,上方悬浮式吊顶搭配线性吊灯,光线精准落在用餐区,既满足照明需求,又让空间更显轻盈。
旋转楼梯线条流畅且富有动感,黑色的梯身搭配灰色的踏步,色彩对比鲜明,既展现出沉稳大气的质感,又带着现代的时尚,融入了灯光设计,沿着梯身边缘布置的灯带,在夜间亮起时,不仅可以照明,还能勾勒出楼梯的轮廓。
主卧的顶面以悬浮吊顶勾勒轮廓,浅灰墙面弧形灯槽漫射柔和光线,为空间增添呼吸感。黑色皮质床具线条利落,与岩板台面床头柜形成材质对话。通高柜体与隐形门一体化设计,极简从不是牺牲,而是藏进 “看不见” 的设计里。
挑高空间与错层设计,打破了地下室常见的压抑,二层通透的玻璃护栏,让空间纵向延伸感变强,顶部采用了几何切割般的造型设计,结合暗藏灯带与点状照明,光线柔和地漫射开来,弱化了地下室的封闭感。
卫生间采用干湿分离设计,白色洁具与黑色金属框架碰撞,材质的纯粹,让卫生间摆脱了繁杂与冗余。主卫地面采用深色哑光色地砖,台盆柜内部分层收纳洗漱用品,墙排式马桶上方预留毛巾架,收纳需求都在 “无形” 中落地。
业主需求:喜欢黑白冷峻的色调,现代极简的风格。因平常会有很多朋友聚会,花园客厅等地方需要满足会客需求,地下室配备客房,挑空的会客厅兼顾观影娱乐需求。
2层
1层
-1层
-2层
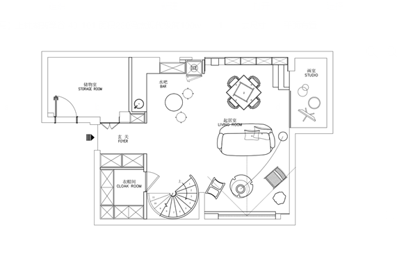
<户型改造>
1.一层入户做了玄关,餐厅、客厅贯通,面积更加开阔;
2.重置楼梯位置,采用钢板制成的旋转楼梯;
3.后期加建负一层,配备客房,满足会客需求;
4.采用「洄游动线」设计公共区域,提升空间利用率。
Case Informatio
<
案例信息
>
项目楼盘:上林湖翡翠谷
项目户型:下叠
项目面积:240㎡
项目风格:现代极简
设计团队:全盛别墅装饰
项目团队:大宅工程中心
装修总投:基础工程48w、土建工程5w、花园景观4w、木作定制10w、机电设备8w、系统窗4w、家具及软装配饰5w、楼梯9w
主要用材:瓷砖、地板、艺术涂料、钢板等
作品拍摄:林峰
文字编辑:七七
共同奔赴一场装饰的"艺术革命"
编辑|七七|排版|七七
Previous review
客服
消息
收藏
下载
最近





















