查看完整案例

收藏

下载
华强科创广场位于福田CBD北轴核心区,交通便捷,南接北环大道,西临新洲立交。项目总建筑面积约19.2万平方米,由一栋200米超高层研发办公楼、100米宿舍楼、32米高层办公楼和24米多层办公楼组成。建筑错落布局,形成围合式空间,高低起伏的建筑群勾勒出极具韵律感的城市轮廓。
项目于2023年建成、2024年
投入运营
,由华强激光工厂
蜕变新生为华强科创广场。是
福田区与华强集团在梅林—彩田片区重点打造的湾区智造总部大厦,也是全国首个“低空经济生态融合产业园”,成为梅林片区标志性门户,推动大湾区制造业升级与创新发展。
项目设计灵感源于对光的记忆的传承与延续,以“自地向天”的光束将主塔结构进行几何化切分,形成具有韵律感的垂直向度,这不仅是对“光”的诠释,更象征着华强激光在岁月长河中所凝聚的智慧与光芒。
项目主塔立面采用简洁的竖向线条设计,由三种不同规格尺寸的外装饰线条构成,
形成挺拔的视觉效果。塔冠及避难层采用棱镜形设计,
通过光线折射产生丰富的光影变化。幕墙选用双银Low-E超白夹胶中空玻璃,在保证良好采光的同时,兼具隔热、隔音和节能性能。
▲ 塔楼
标准层系统节点
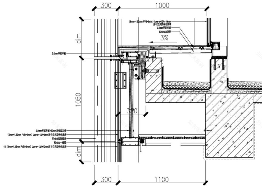
主塔的
架空层幕墙由内凹三角玻璃与三角铝合金百叶组成,
分布
于主塔楼立面之中。为契
合标准层单元式幕墙施工方法及项目装配式要求,该系统采用异型单元式幕墙系统。架空层横向分格与标准层一致,均
为
16
50mm,左右两侧立柱为公母立柱拼接及单元板块分缝处,中间内凹立柱则采用与公母立柱造型一致的中立柱。
▲
架空层系统节点
塔冠整体呈钻石型,采用折面三角形玻璃设计。由于塔冠最大跨度6.4米属大跨度幕墙,因此选用灵活性更高的框架式玻璃幕墙系统。屋顶龙骨采用大跨度钢结构,幕墙系统的立柱与横梁则采用钢龙骨外包铝型材的形式,三种线条尺寸与标准层保持一致。
确保建筑整体的连贯性与协调性。
▲
塔冠系统节点
一层大堂采用挑高12米的环通全玻璃幕墙设计,以通透的幕墙结构将广场空间自然延伸至室内,强化了室内外空间的互动性
。针对立柱跨度达15m、玻璃最大板块尺寸达1650x6000mm(单块面积9.9平方米)的技术挑战,经综合评估效果与施工可行性,采用框架式幕墙。
幕墙立柱选用不锈钢包钢材质,通过镜面处理提升室内明亮度并弱化结构体量感,玻璃配置采用双夹胶中空结构,既满足超常规尺寸(超12mm厚玻璃许用面积)的承载要求,又通过双层夹胶工艺确保室内外临空区域的防脱落安全性能。
一层大堂入口处的雨棚造型精致独特,由一个个模组错台组合,跌宕起伏。其最大出挑达6.5m,属于大悬挑雨棚。为完美呈现建筑效果,采用无拉杆设计,主龙骨以双槽钢打造。
▲
雨棚系统节点
▲
塔楼大堂室内
华强科创广场采用围合式布局打造中心广场,融入展示与商业功能,将开放空间转化为宜人的休闲场所。沿主轴设计的"人文走廊"串联起不同尺度的公共区域,使园区在夜间依然充满活力,成为周边居民喜爱的活动空间。
项目信息
工程类别:
办公、商业、宿舍公寓
工程地点:
深圳市福田区北环大道与新洲路交界东北侧
建设单位:
深圳华强云产业园管理有限公司
设计单位:深圳市
欧博工程设计顾问有限公司、深圳市清华苑建筑与规划设计研究有限公司
建筑面积:
19.2万平方米
建筑高度:
200米
幕墙面积:约6.8万平方米
幕墙设计:深圳市朋格幕墙设计咨询有限公司
幕墙形式:单元式玻璃幕墙、框架式玻璃幕墙、蜂窝石材幕墙、铝板幕墙等
幕墙设计团队:王玉华、罗志雄、何永生、宋萌萌、郑小孟、李贞玲、崔红、肖尧
建筑摄影:PAG朋格幕墙
项目状态:已竣工
客服
消息
收藏
下载
最近


















































