查看完整案例

收藏

下载
360㎡现代风
-
-让设计回归于生活-
酌一室沉淀,
朝朝暮暮,渐与时长,
择一方雅居,
冬暖夏凉,熠熠明亮。
全盛别墅设计
雅居|木中藏雅,无序藏奢
<每个角落都记得住生活的温度
>
In The Case
<走进案例>
玄关以木饰面包裹,设有换鞋区、挂衣区,以及洗手间,进门带着岁月沉淀的氛围,庄重而立体。
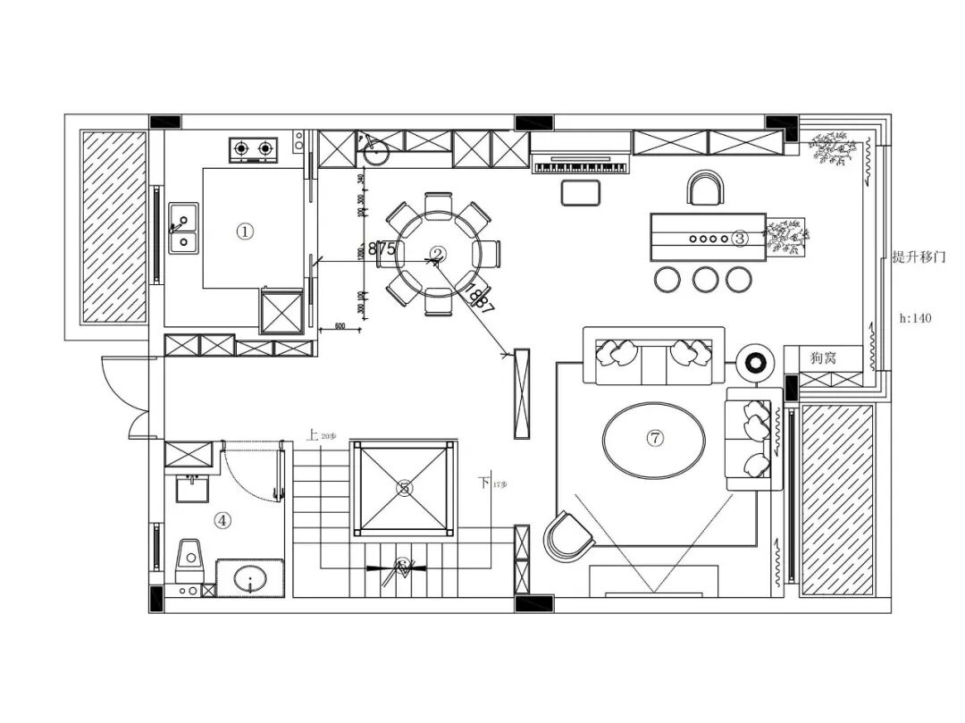
入户直击眼前的,是无序的大理石背景墙,黑白相间的视觉冲击,让室内外无形中有了境制,悬浮的设计让客厅藏于后方,既不盖全,又似若隐若现。
穿过玄关,主厅由品茗区、乐器区、待客区三部分组成,主厅选色略显古韵的皮质沙发,木质的扶手线条分明,皮质的软垫触感细腻,刚柔并济,平衡感极佳,搭配一方木质茶几,待客会友,好不快哉。
茶台选用胡桃木材质,其上面特殊的纹理很是应景,如水的波纹,茶具如一叶叶小舟,赏心悦目,喝茶闲聊,亦是一种趣味。
纵有无数欢乐,不如一顿团圆饭,餐厅是享尽烟火气的地方,顶部做圆形吊顶,一圈设有灯带,让餐厅的光变得柔,变得缓。
厨房和整个空间保持一样的通透感,U型的台面可供4-6人备餐,吊轨门藏入墙中,超薄的门框简约好看,平时可做开放式厨房,偶遇油烟时,可变为封闭式。
可视化电梯的好处在于通透明亮的同时还有观光全屋的作用,是贯穿全屋的灵魂,无论从哪个角度看,通透清爽。
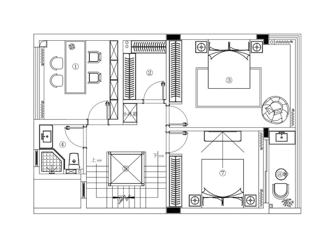
三楼作为主卧,有着独立套间的样式,超大的采光窗让空间充斥着阳光的味道,拆除原有的墙体,将空间划分为睡眠区、步入式换衣区、卫生间三个部分,卧室的空间舒适感很强,阳台靠窗的位置设有电动沙发和书桌,慵懒和放松效果拉满。
客卧安置在二楼,做旧工艺的木饰面有了岁月的痕迹感,皮质菱格的床头略带怀旧复古,床头悬吊一盏花瓣水晶灯,一切都是自在的样子。
由于地下室有部分是公共设备,层高略低,更似于夹层,做娱乐活动区最合适,用木饰面将凸起部分包裹做地台,安置棋牌桌,约上三五好友,即刻开牌,侧面靠墙做展柜,一处小风景便出来了。
亮点:
本案中,由于结构房梁较多的缘故,在空间上尽量以打开为主,而区域划分则依靠不同房梁做出的造型对视觉产生无形分区,可谓设计师的巧思之处。
业主需求:
需要4个房间,喜欢简单干净素雅的生活空间,希望空间采光好,面积扩大,增加利用率。
4F原户型图
4F平面图
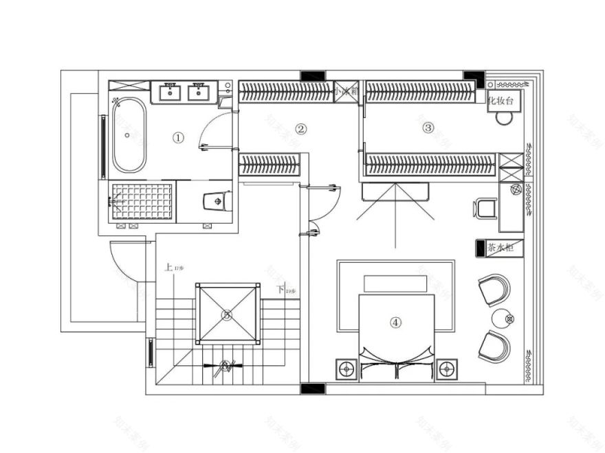
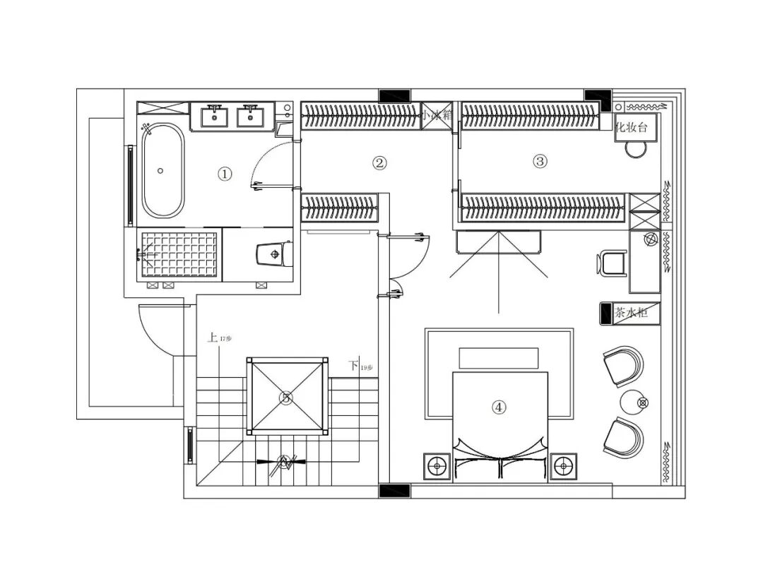
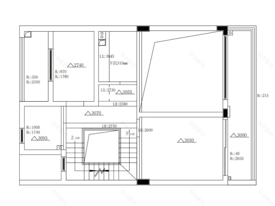
3F原户型图
3F平面图
2F原户型图
2F平面图
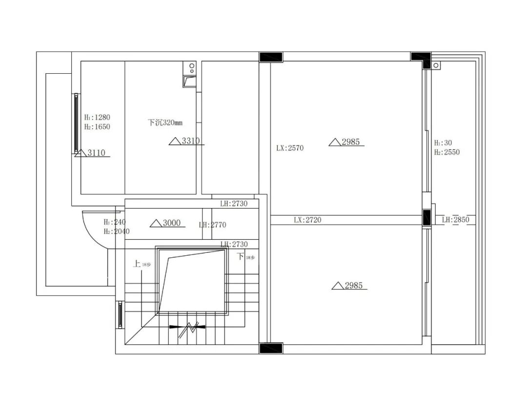
1F原户型图
1F平面图
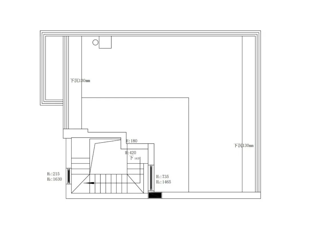
-1F原户型图
-1F平面图
-2F原户型图
-2F平面图
<户型改造>
1.入户做悬空屏风柜,有效保留隐私;
2.一楼将阳台包入客厅,扩大空间面积;
3.二楼浇筑层板,把阳台包入卧室,将次卧置于2楼;
4.三楼做主卧套间,成为独立起居室。
Case Informatio
<
案例信息
>
项目楼盘:市心府
项目户型:排屋
项目面积:360㎡
项目风格:现代风
设计团队:全盛别墅设计
项目团队:大宅工程中心
装修总投:土建工程5w、花园景观5w、防水防潮施工2w、基础工程38w、硬装主材产品30w、木作定制30w、机电设备18w、智能安防5w、灯具2w、系统窗2w、家具20w、软装配饰7w、电梯22w
主要用材:木饰面,岩板,瓷砖,硬包
作品拍摄:林峰
共同奔赴一场装饰的"艺术革命"
排版|七七
Previous review
客服
消息
收藏
下载
最近








































