查看完整案例

收藏

下载
这家店是
TBL品牌的第一家门店的延续,原址位于北京三里屯,如今搬迁至街对面,完成了空间的升级与情感的延续。作为品牌的起点,它承载着许多人与人之间的连接。因此在设计之初,我们就希望打造一个既有力量,又具归属感的空间——一个让人感到“像家一样”的地方。
在公区设计中,我们弱化传统健身空间的功能感,通过灵活体块划分营造流动而松弛的动线,让人能自由穿行、停留与交流。裸顶结构、
无对缝
材料与舒适家具共同营造出轻松自在的氛围,鼓励
人们
在这里放松身心。
空间中也保留了老店的部分材料
——金色拉网板被树脂封存,
被裁切拼接,
变成地面
、
天花
与收纳背板
;旧柜体拆下的刨花板则成为新的置物架与靠背。这些
“老元素”以新的方式融入空间,不是为了怀旧,而是为熟悉的情感保留一份温度。
功能完善的大吧台与开放的
LAB区增强了空间的互动性,也为学员提供更丰富多样的使用体验。
团课教室则呈现出截然不同的气质。原始斜顶通高的场地,
被我们以
定制钢构架结构
重新演绎
,使空间自然地向上生长,
传递出探索身体潜能与精神升华的力量
,
鼓励学员在专注的同时不断突破自己的极限
。
功能性元素
——照明、镜面、设备——被巧妙嵌入结构中,既不喧宾夺主,又有序统一
。
而涂有经典绿色的钢构件,则借鉴了欧洲旧建筑的色彩,
带来一抹沉稳厚重的历史质感
。
从自在松弛的公区,到庄重集中的教室,空间之间的对比与张力,使整体更富层次感,也给予使用者不同的情绪体验
——既活跃开放,又沉静有力。
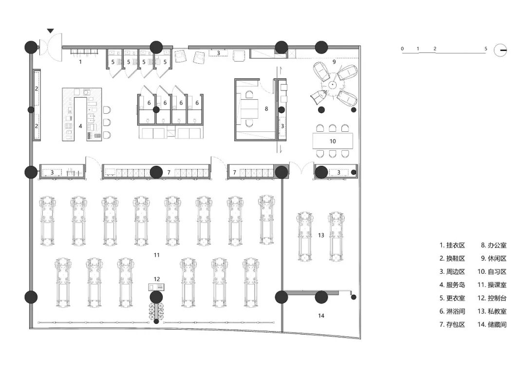
平面图
↓
剖面图↓
项目地点:
北京市,朝阳区,首开幸福广场
设计时间:2024年12月-2025年1月
施工完成:2025年5月
主创设计师:
李凌
项目负责人:
廖惠琴
设计团队:向怀志、许辉、张杰
VI设计: Relative Design 相对设计
给排水设计咨询:宋颜波
暖通设计咨询:高飞
电气设计咨询:闫天雄
施工总包:北京东方盛泽建筑工程有限公司
摄影:金伟琦
摄影版权:SpaceStation
更多空间站作品 >>>
胖妹面庄中关村大融城店
超级转转零售空间
The Body Lab 北京华贸中心
拾柴手作无锡苏宁广场店
《Soft Breath——韩文斌插画展》展览空间设计
MONOLOGO咖啡馆(建国门6号)
鲜果时间SI手册
杭州X sign Space展陈家具及《奇迹之境:艺术家手作书》展展陈空间设计
下酒·烧烤小酒馆(望京店)
坡空间 Ramp Space
拾柴手作苏州观前街店
sorry dog
汵奇咖啡卫星厂店
The Body Lab北京嘉里中心店
Space 687211
香蕉鱼书店红宝石路店
Cenchi Coffee交道口店
三顿半上海办公室
2023方正字体设计大会展场空间
MONOLOGO咖啡馆
棉仓苏州活力岛店
Cenchi Coffee
Crimson Coffee
The Radio Coffee
一块小宇宙咖啡
香蕉鱼延平路店
2号工作室
天真蓝北京中海广场店
10Space,The Future Hall
浏览空间站完整作品集
客服
消息
收藏
下载
最近


















































