查看完整案例

收藏

下载
户型:一居室
面积:44㎡
装修花费:25w
房屋位置:北京朝阳
时隔半年,我们回访了这个44㎡的宠物之家。
迎接我们的,不仅仅有业主盆哥,还有四颗毛茸茸的小脑袋挤在门口——那是三只精灵般的德文卷毛猫和一只温柔如云的布偶。
©韩盆盆提供
谁能抵抗猫猫的治愈迎接啊!?
这间仅有44㎡的小小蜗居是我们去年就做完的案子,现在俨然已经成为业主的避风港,更是四只猫咪肆意奔跑、攀爬、休憩的王国。
©韩盆盆提供
这个家在我看来,不只是栖身之所,更是生命与生命相互温暖、彼此照亮的能量场。
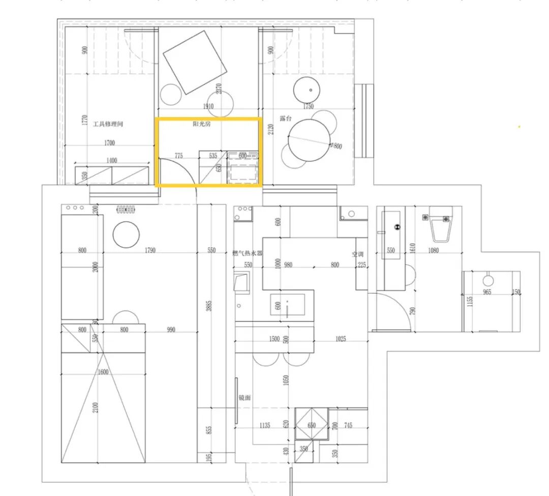
户型图
这套房子位于北四环一栋房龄40的老式塔楼,一楼带小院。
业主盆哥和他的4只猫居住。房子虽小,但业主不喜欢断舍离,一个人的物品堪比三口之家,加上四只猫的庞大物资,常规储物方案捉襟见肘?
此外业主还希望这个家,一半属于自己,另一半给毛孩子们做猫乐园。
如何在方寸之间,既满足人的生活品质,又充分尊重猫咪的天性,打造一个人猫和谐共生的幸福天地,还要巨能装,来看看我们是怎么改的。
原始结构图
房子的使用面积只有44㎡,满屋承重墙,这是最核心的限制,传统意义上划分独立房间、设置大型猫乐园肯定会抢空间。好在它自带一个15㎡的小院。
原计划把小院划成三等份,给室内扩大使用面积,分别做阳光房、储物间、户外露台。
But,后来发现老房子只允许包出二楼屋檐的2平多一点,最多增加一个洗衣房,其他只能作为户外小院使用。
居住压力只能还给最初的44平,我们利用户型的特点,在室内做了6处集中收纳,完美塞下业主所有的物品,以及解锁了4只猫的适宠化设计:
第一处在入户,设置800库,连同做猫爬架一体设计。
第二处在U型厨房,餐桌依靠岛台做开放式餐厨一体,不仅节省面积,动线顺畅,小户型也能解锁更多的橱柜面积。
第三处,打通原卫生间隔墙,压缩淋浴房,洗手台和马桶上面做更多的收纳柜;
第四处是最能装,主卧这面长达5米6的整面衣柜,
最后两处是客厅与卧室之间的隔断柜,以及床下收纳。
猫乐园的解决办法,将它与家具一体化融合设计,摒弃“人区”与“猫区”的物理分割思维,将猫咪的必要设施(爬架、通道、猫窝)与人的必需家具(玄关柜、衣柜、隔断、台面、床、门等)进行整合。
具体是怎么做的,让我来一一揭晓。
玄关
进门是简单好用的玄关柜,我们在加800库的时候,在靠入户门的外立面,设计了一个窄长的柜子,中间小开放格,放平时进门要用的东西:充电器、手机、车钥匙,还有拆快递的工具。
柜子里头全放鞋,上下两个柜子,差不多能塞了14双鞋子。
入户门也没有浪费,业主每天出门必带的湿巾、充电宝都挂在上面。这些天天用的东西,都放在外面,拿取方便。
紧邻玄关,我们为屋主开辟了一个约1.5平米的“800库”式储藏间,堪称小户型收纳的“秘密武器”。这里集中收纳所有易显杂乱的物品:不常穿的鞋、备用纸袋、修理工具、吸尘器乃至备用折叠凳。
设计亮点在于,与玄关猫爬架是一体化的适宠设计,通过一处猫通道相连,让猫穿行无拘无束,不走回头路。
©韩盆盆提供
纵向猫乐园的起点在餐桌旁,设置三层递进式木质隔板(表面覆抓绒的垫子),形成稳固的跳跃台阶。
©韩盆盆提供
猫咪可轻松经隔板跃上顶部一条长达3.4米的贯通式长隔板。这条“空中走廊”从厨房烟机旁起始,一直延伸至土间里,为猫咪提供了广阔的巡视通道。
长隔板贴心为家中体型最“魁梧”的布偶猫预留了直径达28公分的圆润猫洞。这个尺寸确保了四只猫咪都能毫无阻碍地优雅穿行。
长隔板尽头,在玄关柜体顶部巧妙开洞,形成进入“土间”的入口。土间内部并非简单的储物,层板采用左右错落的方式安装,形成内部的攀爬阶梯。
土间的门同样设有猫洞,即使门关闭,猫咪也能自由出入。
这实现了从公共区域到半私密“猫基地”的动线闭环。
800库外面齐平的是嵌入式冰箱,顶部空间也被开发为双层收纳区,存放湿纸巾等日耗品。
这里还有一处洞洞板系统,整合了屋主骑行、运动装备,利用膨胀螺丝固定在可以承重的墙上,将爱好有序融入入口。
餐厨
©韩盆盆提供
餐厨空间是家庭的核心,也是人猫共处的高频区域,安全与便捷是设计的重中之重。
©韩盆盆提供
先来看看人使用的部分,厨房做了开放式,极大提升小空间的通透感与视野。这里将餐桌靠着厨房岛台,平时做饭转身就能端上桌,吃完饭伸手都能放进水槽里。
厨房摒弃传统吊柜,大胆采用全墙面开放收纳:烹饪铲勺、抽油烟机、常用调料一目了然,取用便捷。
窗边能看到小院外的风景,橱柜这里的部分设置成咖啡角,这边台面做得浅点,45公分深,已经够用了。不常用的大件电器,像空气炸锅、大铸铁锅,都收进下面柜子里了。
橱柜的收纳做的很细致,包管的柜子一侧存放猫粮猫砂。
然后旁边设计一个高的开放格柜子,把屋主所有的杯子陈列成个性展示区。
下面的开放格和抽屉则整合水吧功能(存储茶、零食、补剂、猫零食。)
©韩盆盆提供
烹饪区下面的抽屉专攻餐具碗筷及米面粮食。水槽下面也不能浪费!把所有洗涤用品的补充装都尽量塞进去了。
水槽台面上,就放常用的擦手巾、洗手液、洗涤灵和刷碗工具。
©韩盆盆提供
厨房整体就这样,除了靠窗的柜子,其他都是常规的60公分,很能装,这样的开放式餐厨一体特别适合小户型,既有实用性又有开阔感。
在来看看宠物的部分,猫食堂安排在靠近屋主餐桌的地面区域。这个位置紧邻厨房中专门存放猫粮、罐头、零食的收纳柜(柜内配置密封桶)。
屋主无论是就餐时顺手添粮添水,还是从柜中取用猫粮,动线都极其短捷流畅。水碗选择了活水饮水机,并靠近电源插座,方便使用和清洁。
另外,厨房是潜在危险的高发区。
燃气灶具上加装了定制尺寸的防护罩。这个防护罩并非摆设,在不使用灶具时(尤其是屋主外出时),必须完全罩上,形成物理隔离,彻底杜绝猫咪跳上灶台可能引发的烫伤或意外点火风险。所有电器插座均配备智能断电。
卫生间
卫生间为最大化收纳,我们拆除了原计划做三分离的隔墙,将淋浴区放进原先的夹角空间,外面做盥洗+如厕区。
马桶这一侧做了一面顶天的收纳柜,巨量容纳各类囤货(纸巾、日用品)。
小卫生间,我们特别建议做镜柜,内部采用精细分格收纳护肤品,关上柜门即恢复空间完整利落。
猫砂盆亦被巧妙嵌入洗手台下面。
淋浴区仅一平,未做壁龛,仅设简易台面放置沐浴用品;外面的墙面挂钩则解决浴巾和脏衣篓悬挂。
客厅&卧室
©韩盆盆提供
房子原来最大的房间一半作为卧室、一半作为客厅。
©韩盆盆提供
中间没做硬隔断,仅以床头柜自然分区,柜上放置常用音响。
柜体采用推拉门设计,内部收纳香水、书籍,下方柜屉存放低频囤货。
隔断柜右下角预留了开放格作为猫洞,方便猫咪在床与沙发之间自由穿梭。
客厅是业主平时撸猫看电视的区域,原计划的投影方案因屋主不满意画质被放弃,改为放置一台可移动电视,兼顾观看灵活性与视觉舒适度。
阳光充沛的窗边成为与猫共沐暖阳的惬意角落。
©韩盆盆提供
这里真正的收纳主力是整面墙的衣柜系统,长达5米6,内部结构极简高效——衣物全部悬挂,有一层专门存放被褥,侧面甚至嵌入行李箱、梯子,衣柜门采用了吊轨推拉门(无地轨,便于清洁)。
衣柜顶部是四只猫的“云端猫墅”,业主提前告知德文猫特别喜欢睡在高处。于是我们果断放弃了通顶衣柜的常规做法,将衣柜顶部留空。
这片宽敞、安静、视野好的区域,成为了猫咪们最钟爱的“集体宿舍”。多个柔软舒适的猫窝错落安置于此,是它们安心的休憩之所。
一侧还安排了登顶的专属阶梯,在床头柜的上方,安装了一个小型猫爬架。猫咪可以轻松地从床头柜跃上柜顶,这条路径避开了屋主的床铺,减少了夜间被打扰的可能。
卧室底下也暗藏了收纳巨库,床体为气压床,内侧预留了未来收纳扩容空间。
外侧做了抽屉,专门分类收纳高频使用的袜子、内衣裤。
洗衣房/家政区
穿过客厅,小院的阳光房设置成洗衣区。
对于小户型,一个高效集成的洗衣家政区是家高效运转的幕后功臣。我们将洗衣机、烘干机采用叠放方式嵌入定制高柜中,同时在右侧加了一个小水槽方便手洗难清洁的衣物。
衣架和一些清洁用品都用洞洞板收纳在阳光房里,这就是这个家的全部了,方寸之间,容纳了生活的千百种需求。曾经局促的痛点,在智慧与爱意的交织下,化作了人猫共舞的和谐乐章。
写在后面
清晨,第一缕阳光洒在窗边的观景台上,德文猫轻盈的身影已在那里守候着苏醒的城市。
布偶猫则迈着优雅的步伐,穿过玄关顶部的长长走廊,如同巡视自己王国的君主。
屋主在精心规划的猫食堂旁备好早餐,抬眼就能看到“空中乐园”里探出的几个小脑袋。
动线分离的玄关,让她每次归家都能从容不迫,迎接她的永远是门口那四张写满期待与亲昵的可爱脸庞,而非一片狼藉。
厨房里,坚固的灶台防护罩是无声的守护者,让她安心烹饪,无需时刻提心吊胆。
夜晚,当她倚在客厅舒适的沙发上,猫咪们或在高处假寐,或在脚边依偎,呼噜声是这小小宇宙最动听的背景音。
44㎡,一人四猫。这里没有拥挤,只有亲密无间;没有妥协,只有相互成全。这是一个用设计智慧铺就、用日常爱意滋养的共生乐园。它向所有心怀温柔的人诉说:再小的空间,也能承载最宏大的爱;再平凡的生活,有了生命的彼此照亮,便是星辰大海。
设计团队:里白空间设计
施工团队:里白自营施工团队
内容编辑:里白编辑部
内容运营:Simon Luo,王瑶
/ 拆墙拉近206㎡内爱的距离
/ 法式中国风,还原大两居应有的松弛感
/ 低成本改造复古南法之家
· 了解更多 More Info ·
客服
消息
收藏
下载
最近




























































