查看完整案例

收藏

下载
旧房改造设计目前占到我们室内设计业务将近七成的比例,这些年地产市场的变化大家还是能感受到的,体现在我们这个行业,就是新房设计需求越来越少,以往很多精装交付的房子可以全拆后重新设计,现在基本都是局改。相对而言,旧房改造的需求就多了一些,但是整体预算普遍下降得比较厉害。
扯远了,今天聊的是位于佛山南海的旧房改造项目,业主去年4月份联系到我们开始设计,到今年5月份硬装结束,差不多花了一年时间。
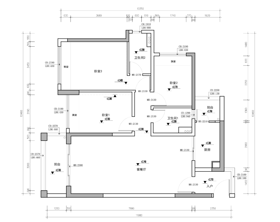
房子建筑面积112㎡,套内面积97㎡,户型方正,算是相对比较好改的户型。
房屋原始样貌:入户、厨房、生活阳台
客厅及景观阳台
客卧及卫生间,可以发现窗户有些漏水,因此全屋的窗户需要换掉。
卧室空间
根据业主的需求,我们开始设计工作,初步提供了两版布局方案:
初稿方案一,开放式厨房、三分离公卫、步入式衣帽间。
初稿方案二,重点区分在卫生间的布局上。
两个方案给到,业主很快就敲定了方案,然后我们相继给到效果图和施工图。这个阶段,方案的推进都还是比较顺利的,业主联系好施工方就可以进场开工了。
效果图-客餐厅区域
效果图-客厅区域
效果图-客厅及玩耍区域
儿童房
儿童房衣橱
主卫
衣帽间
打拆完,发现原始图纸上可以动的墙体不能动(餐厅区域),无奈只能改方案,其实这种情况在我们旧房改造中时常遇到,遇到问题解决问题呗。
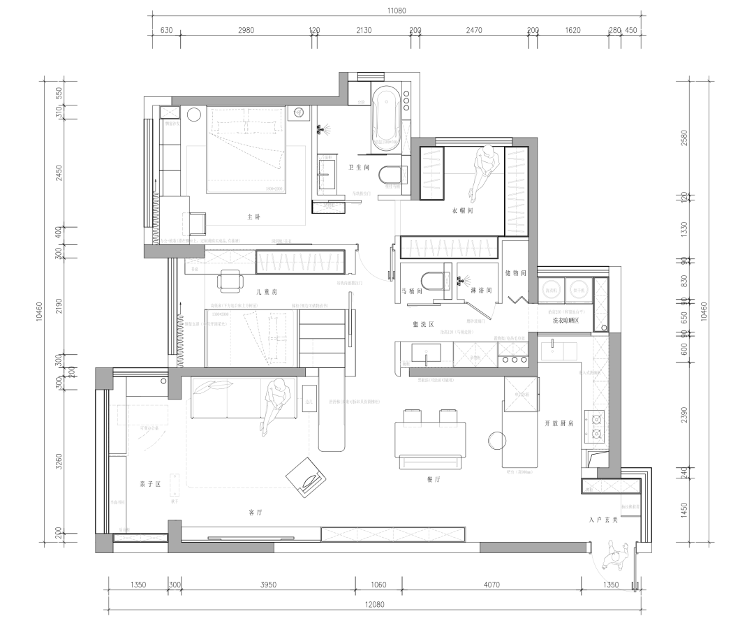
平面图更新,连带着效果图和施工图也全部更新。
图纸快速更新好,施工继续进行。
砌墙
防水及贴砖
贴砖进行中
木工及墙面
墙面批灰
油漆
全屋定制
全屋定制
家电进场
家电进场
经过了近一年的施工,硬装工程终于完工。
家里小公主心心念念的滑滑梯也安装完成
厨房及生活阳台
开放式厨房
主卧
儿童房,上下床。
纯实木打造,我最担心的环节,联系了好多厂家,也算是安稳落地吧。
餐边柜及储物柜
客厅区域
厨房及餐厅区域
客厅区域
儿童房及滑滑梯区域
卧室细节
洗衣房及洗漱间区域
衣帽间及主卫
一点现场细节
附上一小段一镜到底的现场视频,方便一些朋友理解。
几天前我发出了这一小段视频,很多朋友喜欢,也有些朋友提出质疑,为什么我们的有些案例和网上看到的感觉不太一样,或者说没那么高大上或艺术感。其实这个问题我之前的案例分享中解答过很多次,我们根据业主提供的需求,结合现场条件、预算以及各种其他限制,与业主们
共同完成
房子的设计或改造。即便是我们有很强主导权的案例,选方案、选主材、选软装也一定是需要业主们参与抉择的,毕竟房子装好后,是业主们生活在里面很多年的,我们不可避免或者说一定要尊重业主们的生活习惯和审美要求,这其实是很现实的问题。
即便我们已经做了这么多房屋设计,但也总是会遇到一些解决得不好的问题或者考虑不周全的地方,真心感谢信任、体谅我们的各位业主,感谢你们能够让我们“刷经验”。
最后回到这个项目:
方案设计:意匠工作室
项目周期:2024.04~2025.05
项目花费:32万元
(PS.很多供应商是业主朋友,价格相对较低,如果按照市场价,这个费用做不下来,仅供参考。)
客服
消息
收藏
下载
最近














































