查看完整案例

收藏

下载
◐
阳光淌过沙发褶皱,烟火在餐厨萦绕,
推开回家的门,
每寸空间都暗藏着生活的诗意,
这方天地,是琐碎日常熬成的治愈汤,
舀一勺,把疲惫泡软 。
Basic Information:
夫妻俩和孩子一起居住的生活空间,近两百平的空间在满足日常需求的基础上,创造出符合各自兴趣爱好的无限可能。3室改为主卧、次卧、加休闲健身区,
整体保持大气包容的格调,通过动线设计让各空间既相对独立又互相关联,营造舒适有爱的居住氛围。
🏠
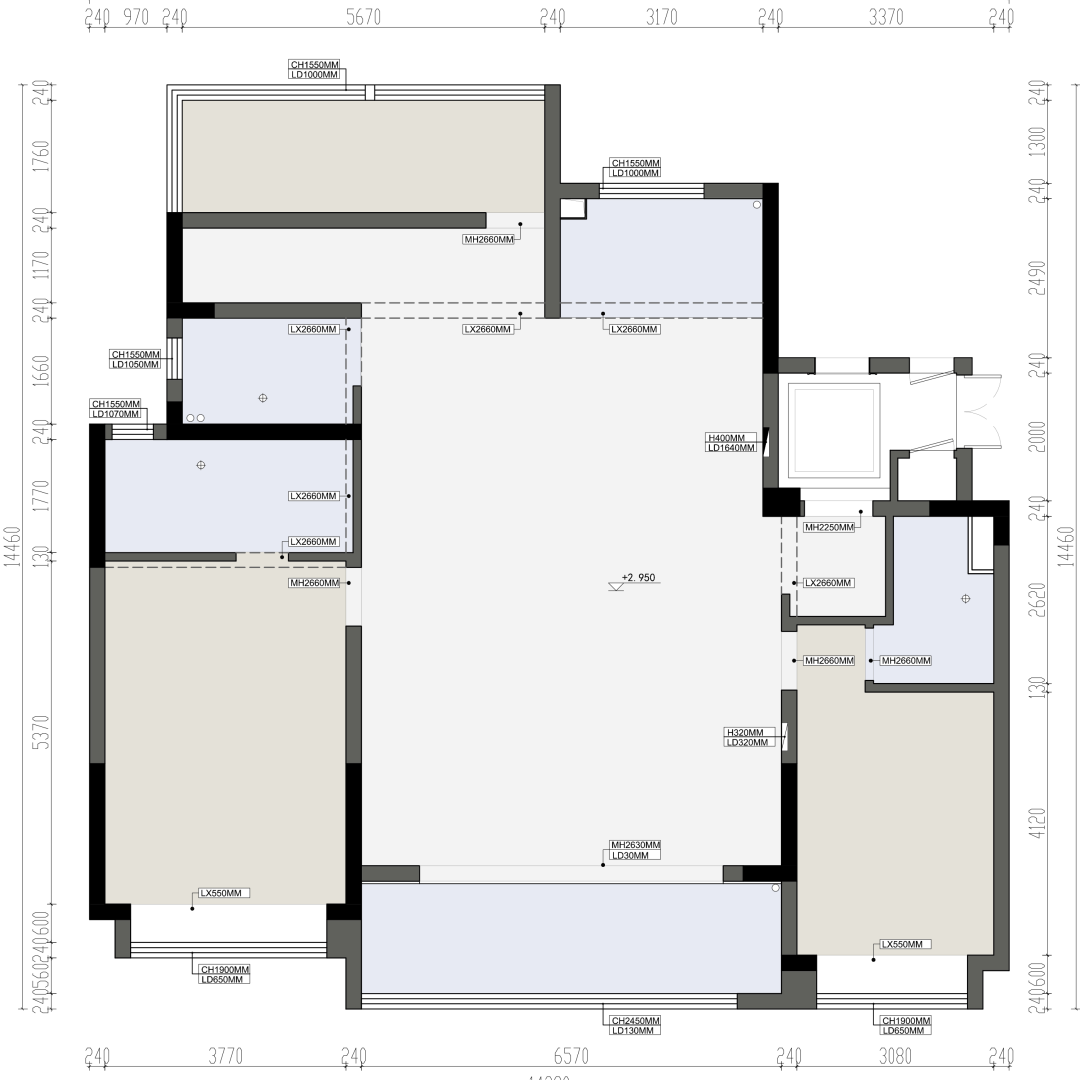
户型图对比:平面规划图 VS 原始户型图
左右滑动查看 平面规划图 VS 原始户型图
◐
关于改造
01.客餐厅一体化,增加餐边柜与岛台,
让公共区域更通透,形成开放空间,提升空间利用率与互动性,融合更多功能性。
02.主次卧都规划了衣帽间+卫生间的配置,
强化空间的功能适配性。
03.北侧的卧室改为多功能空间,休闲阅读+运动健身,优化整体的空间布局。
01.
客餐厅
木调温润,舒展生活日常
客厅改造前 VS 改造后
客厅改造前 VS 改造后
客厅、餐厅与厨房连通,整体
采用开放式布局,
打破空间界限,增强互动性与通透感,让空间更显开阔,光线自由穿梭,提升整体采光与视觉延展性。
以低饱和度的米色、白色为主色调,营造柔和、温馨氛围,结合柜体、地板的木色,沉稳质朴更增添自然质感;局部点缀黄色(单人椅)等亮色,激活空间活力,在色彩层次上实现了丰富又和谐统一 。
餐厨区改造前 VS 改造后
餐厅区域,利用墙体与小过道,设计了餐边柜和兼具操作功能的岛台,增强互动性与空间通透感,无论是家庭日常、三五好友到访、或者是小型家庭聚会,
都能成为重要的空间链接。
简约的吊灯,米白色搭配木色,
营造温馨、舒适的氛围。另外,
大量使用天然大理石的材质,呈现温润纹理;
木地板增加温暖质感,不同材质碰撞出不一样的高级感。
桌面的鲜花、摆件、还有咖啡器具等,呈现了浓郁的生活气息,丰富了空间故事性,展现主人对品质与日常感的平衡追求 ,整体传递出优雅、松弛的现代生活美学。
02.
厨房
原木素简,料理治愈时光
厨房以干净简约为基础,U型的操作空间,
浅木色橱柜搭配白色墙面、台面,
营造出温馨明亮的氛围。
百叶窗灵活调节光线,窗外能看到开阔的景色,也增添了空间的通透感。橱柜布局规整,收纳与操作功能兼具,让实用性与美观性
完美融合
。
厨房通过开放式的布局(与客餐厅
连通
),
既保留厨房的独立性,又让空间在视觉上得以延伸,整体空间在南北方向上互相贯通;
用简洁线条、中性色调,弱化繁杂装饰,强化空间本质功能(烹饪、收纳),同时借自然采光、材质温润感,让厨房成为 “实用又治愈” 的家居场景。
03.
多功能区
简雅一隅,承载多元逸趣
将北侧的小房间改为多功能区,是集“
休闲阅读+运动健身
”为一体的私享空间。首先利用
L型窗户引入充足的自然光线,
让空间明亮开阔,更具
通透感;在学习阅读、休憩放空、或者运动健身时也能眺望窗外美丽的景色,愉悦身心。
木地板与大理石的材质结合,
整体色调以大地色系为主,
搭配红色、墨绿色等的点缀,简洁又有视觉亮点 ,
提升了空间的质感;落地灯、挂画、绿植以及小摆件,增添
艺术氛围与活力生机 ,整体营造出舒适、雅致且具设计感的氛围。
04.
卧室
暖棕静隅,拥眠柔软清梦
次卧,
以柔和的浅色调为主,搭配木质元素,
增添自然质感。大
窗户引入充足自然光线,浅米色窗帘轻柔透光,窗外绿意景色延伸空间视野。
简约造型的床头柜、梳妆收纳柜等,在材质和色调上相互呼应,再加上装饰画、绿植、灯具等细节点缀,丰富空间层次,
整体营造出温馨、静谧的氛围。
主卧以
米白、木色为主色调,搭配大理石地面,营造自然温馨又具质感的基调。墙面的白色与衣柜、窗台的木质元素呼应,增强整体统一性;大理石地面的自然纹理,为空间增添精致感 。
定制衣柜与开放式书架结合,满足收纳与日常需求,让空间利用更高效 。转角的位置做了水吧台的小设计,跳色的点缀
简约别致,
既让空间得以灵活利用,又
丰富了视觉层次感。
利用天然的全景窗户打造休闲飘窗台,
引入充足自然光线,让室内更显通透,也将窗外景色自然融入,拓展空间视野 。无论是窝在这里看书阅读,或躺在这方小天地放空自我,都将获得难以言喻的快乐。
项 目 简 介
Project introduction
/
项目名称:滨江道
Project Name:Binjiangdao
/
项目面积:189㎡
Project area:189㎡
/设计风格:现代
Design style:Modern Style
/主创团队:筑凡空间设计
Main creative team:Zhufan Design
/施工单位:筑凡空间设计
Construction unit:Zhufan Design
客服
消息
收藏
下载
最近































