查看完整案例

收藏

下载
引用本文:
[1]
郭江波
.
回到起点——校园设计中公共空间的营造
[J]. 建筑技艺(中英文),2025,31(8).
回到起点
——校园设计中公共空间的营造
文 / 郭江波
NO.1
回到起点
在路易斯·康(Louis Kahn)的“秩序”与阿尔多·罗西(Aldo Rossi)的“类型学”理论框架下,
建筑的本质并非源于功能或形式,而是源于一种更为根本的起点
。现代功能主义往往局限于机构的日常运作程序,缺乏激发创造与活力的内在动力。这一起点既非怀旧的历史主义,亦非柏拉图的先天理念,而是一种内在感知与外在环境积极互动的过程。
它从社会、形态、景观与文脉等多维度汲取空间意义,进而在自然世界中构建一片人造之境
。若将建筑视为“世界中的世界”,则其与外部世界的关系便成为设计的出发点。
▲
校园鸟瞰
©
罗汉摄影
NO.2
始于自然
华南师范大学附属河源江东星河学校基地位于一座小山丘的南坡,
设计以一组通向山顶的大台阶为起点,与自然建立了一种平等的对话关系
。大台阶不仅在空间上拉近了与山顶的距离,更使其成为校园内的视觉焦点,赋予原本不起眼的小山丘以新的意义。
▲ 校园广场大台阶鸟瞰
©
罗汉摄影
四层高的大台阶形似一座独立建筑,随着高度增加逐渐收窄,最终形成面向山丘与天空的山顶剧场。
台阶不仅营造了向上的空间动势,还通过向下的视线将校园与南面山峦纳入同一视野
,仿佛欲将之一并纳入到校园之中。
▲ 校园广场大台阶及向下视野
©
罗汉摄影
NO.3
广场·聚集
设计没有采用中轴对称的常见布局,而是
以大台阶为起点,自然而然延展出整个校园公共空间系统
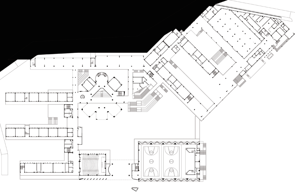
,其二层平台连接图书馆,接着横向贯穿两层高的敞廊,直到与图书馆西侧的小学教学组团的连廊相交,该连廊通过一系列横向挑台组成一个独立的建筑,成为次一级的公共空间。连廊南端的报告厅与图书馆隔着广场南北相对,外侧的回廊向东延伸至主入口,再继续通过体育馆与北侧斜向45°布置的中学建筑相接,形成完整的围合。
▲
中心广场
©
罗汉摄影
看似简单随意的布局,其实是精心布置的结果。建筑所围合广场的南北间距为较高建筑高度的1.5倍也就是30m,东西长边的最长距离为110m,长宽比略小于1:4。较小的报告厅面对着最高的图书馆,而体量最长的体育馆面对着大台阶。
广场完全被建筑所封闭,仅在南面和东面留出与外界及运动场的开口
。
▲
公共空间流线分析 ©
库博建筑设计
为了顺应地形而引入的两套轴网系统与单一的正交网格相比创造了更多的丰富性,八边形建筑与相邻建筑之间可以紧紧相连而又不失独立,相互依赖的建筑群仿佛在喁喁交谈,从而创造出一个更大范围的公共空间。
围合而成的广场并不是建筑之外的剩余空间,而是由建筑群通过相互作用生成的一个充满活力的空间实体
。
▲
中心广场
©
罗汉摄影
这种空间组织方式强化了公共生活的核心地位,展现了路易斯·康的“房间的社会”(Society of Rooms)的理念
——“我认为当所有这些活动聚集在一起的时候,会有一种新的力量产生,它们当然在完成各自的职责,但是当放在一起的时候会有新的事物产生”。建筑的相连不仅是其中公共空间物理上的相连,更会因为各种活动的聚集引发出新的创造力,是它们各自独立存在时无法达到的。
▲
图书馆及校园广场
©
罗汉摄影
人们可以自由决定进入周边的哪一个房间
,是可以一边经过、一边观察再决定是否进入的房间,比如这边可以看到学生们上课,那边可以听到中庭的讲座以及三五成群的讨论,遇见赶往下一节课堂的老师,还能瞥见草坪上玩耍的孩子,通往运动场上体育课的人群,
这些活动仿佛同时在一个大厅显现
。
▲
图书馆架空层敞廊看向体育馆
©
库博建筑设计
另一方面,当每天不断经过这些公共空间看到别人的使用,
就好像空间的每一次被使用都是所有人的共同经历与记忆。这种连续性同样反映了起源
,也许起初显得不同寻常,但一旦显现,人们就会接受它、拥护它,仿佛它永恒如斯。这比那些彼此分开毫无关联,一周只按部就班地用一次的公共空间布局要有意义得多。
▲
总平面 ©
库博建筑设计
NO.4
集会·运动·探索
图书馆作为知识与事件的汇聚之地,其设计以集中式体量彰显庄严感。
平面由八个相近体量组成正八边形,北侧结构体是一个圆形的采光天井,打破了过于严肃的秩序感
。中心是一个菱形剧场式大厅,四面墙体在角部打开,使内部空间最大化,围绕大厅的是阅览、办公等功能空间。大厅在北侧与圆形天井直接相通,营造出半圆形后殿般的静思氛围。
▲
图书馆空间构成 ©
库博建筑设计
集中式平面因为斜向元素的介入避免了均质与单调
,南北向的台阶式看台顺应了南低北高的地形,从大厅对角线最宽处到北侧的最窄处形成了一个等边直角三角形空间。看台从二层上到三层之后并未结束,而是转变成两个直跑楼梯沿着墙体继续上到四层并消失在大厅东西两侧,连续的斜向构图将人的视线不断引向上部,在原本静态的集中式平面中创造出强烈的动感。
▲
图书馆中庭看台及室外大台阶东西向剖面
©
库博建筑设计
中厅的四面通过楼梯、片墙、走廊与房间形成多层次退进
,角部的交通动线创造出独特的空间叙事性。就像故事之中仍有故事,而讲故事的人在经验的梯级上自由地上下往返,混淆了开始与结束的界限。
▲
图书馆中庭©
罗汉摄影
丰富的空间转换如同皮拉内西的画一般很快就会让不熟悉的参观者迷失方向,似乎总有新鲜的事物等待被发现。
只有生活在这里的人才知道那些消失在黑暗之中的连廊、楼梯到底通向何处,从而让这座迷宫般的建筑有着迷人的归属感
。
▲
一层平面图 ©
库博建筑设计
▲
二层平面图
©
库博建筑设计
NO.5
光影·记忆
中庭的白色片墙上开有巨大的圆形洞口,走廊隐藏其后,通常的空间尺度感似乎消失了,在这里建筑似乎能同时给身体以保护和压迫,
既营造出一种超尺度空间,又能随时感受到交谈、集会或者其他活动的氛围
。这一手法无疑是向路易斯·康的埃克塞特图书馆致敬,让它与遥远的建筑原型建立起某种血缘关系,从而进入了建筑的记忆。
▲
图书馆中庭看台光影 ©
罗汉摄影
这些具有记忆的墙体、洞口不仅仅是在注视,仿佛还在发出声音:“翻开来读!”
,就像一千多年前那位著名的圣徒在阳光下的花园中所听到的声音。相邻的片墙就是翻开的书页,站在这里,如同面对一本书,面对一个世界中的世界。阳光透过建筑顶部的梁格在大厅中游走,使光影成为此地的主人,仿佛一种无声的喧嚣。
这是一个装满了阳光、装满了时间的相遇之地、奇迹之地,吸引着孩子们去不断探索
。
▲
图书馆北侧圆形采光井光影 ©
罗汉摄影
▲
图书馆中庭
©
库博建筑设计
▲
图书馆中庭楼梯连廊的迷宫氛围 ©
罗汉摄影
NO.6
结语
校园不仅是学习的场所,更是交流探索之地,设计通过回归本源,将自然环境与公共生活结合在一起。建筑单体虽然受制于建设成本略显朴素,
但所有人都能在空间现场感受到某种蓬勃的生命力,使校园展现出特有的活力与庄严
。路易斯·康的一句话揭示了建筑设计的永恒本质:“过去的,一直是如此;现在的,一直是如此;未来的,一直是如此。这就是起点的本质。”这种对起点的坚守,正是建筑设计的核心所在。
▲ 校园广场鸟瞰
©
罗汉摄影
(
全文
将刊登于《建筑技艺》2025年8
月刊。
)
项目信息
项目名称:华南师范大学附属河源江东星河学校
业主:河源星置城市建设有限公司
建设地点:广东河源江东新区城市建设起步区
建筑设计:深圳市库博建筑设计事务所有限公司
主创建筑师:郭江波
设计团队:汤蕊华、吴家杰、许森茂、吴靖
总建筑面积:60 197㎡
设计时间:2020
建成时间:2024
客服
消息
收藏
下载
最近
























