查看完整案例

收藏

下载
以深圳高密度城市建设背景下的荔园外国语小学(景田)项目为例,回溯设计在用地紧张与规范限制的双重挑战下,如何实现“最大化保留场地原生榕树林与微地形”的核心原则,以建筑师角度呈现立体化布置的校园建筑类型所遇到的技术难点及应对方式,结合对具体问题的剖析与反思,探讨将自然转化为教育媒介的意义。
引用本文:
董功,张菡,冯超颖,等. 榕树高台——荔园外国语小学(景田)设计札记[J]. 建筑技艺(
中英文
),2025,31(4):12-25.
榕树高台
——荔园外国语小学
(
景田
)
设计札记
文 / 董功 张菡 冯超颖 黄英杰
01
前奏:高密度校园的新解
✦
2018年1月,直向建筑应深圳市规划和自然资源局福田管理局邀请,参与“走向新校园:福田新校园行动计划——8+1建筑联展”。
这是一次校园建筑设计竞赛结合建筑实践展的新机制,共面向8所中小学及1所幼儿园展开,同时也是针对校园空间设计和管理的一次创新实验。
“福田新校园行动计划”背后的城市,是我们并不陌生的深圳。2019年,坪山美术馆落成,项目始于直向建筑在2013年赢得的“坪山文化聚落” 国际设计竞赛。这个位于新城边界的文化引擎,正作为深圳改革开放后四十年来千万快速建造的代表之一,参与到这座城市正以“深圳速度”从边陲渔村到国际化超大城市的蜕变之中。深圳市内的各个建成区面积不断拓展,人口密度持续攀升。距离坪山新区50km的福田区,早已形成了深圳极具代表性的高密度城市空间。
在这里,城市面临的是暴涨的学位需求与土地稀缺的尖锐矛盾,大批学校正被迫在原址进行数倍规模的扩建。此时,传统的中小学设计规范与建设机制已经无法再应对新的现实需求和挑战。
在此背景之下,“福田新校园行动计划”于2017年7月启动。作为一场持续的、影响广泛的公共文化事件,“8+1建筑联展”集结了海峡两岸建筑界、教育界等各界人士参与。2018年3月,直向建筑提出“最大化保留场地原有树林和地形”为核心策略的设计提案,在此基础上以垂直立体校园的策略为高密度城区的校园建设提供新解,最终获得了方案评审的第一名。
△ 鸟瞰 ©直向建筑
02
基地:树林与微地形
✦
荔园外国语小学(景田)场地位于福田区景田南路,现状为一块矩形的封闭高台林地,周边是早期建设的成熟居住区。
这块林地具有显著的坡地特征,西侧地势平坦,与周边道路自然衔接;东侧北高南低,最大高差达2m;北侧景田南路呈微斜走势,东西路口高差4m。场地的最高点位于西南角,较路面高出7m有余。翻过高台,进入场地,生长着大片茂密的垂叶榕,树冠相触像是连着的伞盖。这是一块完整的、甚至可以说有点自持的场地,第一印象是城市中相对消极、被隔离的,仿佛是沉睡着的一片角落。后经调研,场地高差是由工地废土堆积形成的,外围连贯的挡土墙将其与外界隔离。这片荒置的密林在二十多年前是连排铺开的工棚,也就是深圳早期建设兵团的驻扎营地。当时这片区域被称为“猫颈田”,后来变成了“景田”。随着城市化进程的推进,工棚拆除后的场地成为了建筑废渣堆料场。通过卫星图可以看到,人工种植的垂叶榕在2008年还是阵列的小树苗,而后在这片土地上不断顽强生长,成为一片树林。
△ 20年间场地变化 ©直向建筑
△ 2018年基地踏勘榕树林原貌 ©直向建筑
由于竞赛提案设计期间在芝加哥出差,我只能通过现场照片来把握场地信息。
当观察到那些树木的自然生长状态后,直觉性地判断这是非常具体和宝贵的场地条件,因此将目标设定为最大化地留下缓丘上的榕树林,让它成为校园的主角,即使它们不是名贵的树木。
基于这一直觉性的判断,项目的方案草图很快就出来了,但当时并没有对具体容量展开太细致的计算,所以这个相对理想化的设计决策也为项目的后续推进埋下了诸多挑战。
△ 竞赛阶段草图 ©直向建筑
△ 方案设计阶段草图 ©直向建筑
03
策略:立体校园
✦
在设计开始阶段,我们面临的挑战是如何在红线内高差近7m、面积有限,且榕树密布的场地内满足一所36班小学的办学需求。
根据教育局对班级数量的硬性规定,竞赛原初设计的“L”形建筑体量无法满足该规模需求。
我们将总平面调整为“C”形布局,以适应新增的功能空间。
这一调整虽然满足了功能要求,但也导致保留的树木减少,成为了设计中的一大遗憾。
△ 竞赛方案效果图 ©直向建筑
△ 总平面图 ©直向建筑
△ 首层平面图 ©直向建筑
具体来说,项目的总用地面积为9550.8㎡,依据《中小学校设计规范》(GB 50099−2011),该面积仅能满足24班小学的规模,但实际任务书需承载36班的教学需求。为了实现最大化保留这片 “小森林”的设计核心原则,同时解决用地紧张这一矛盾,传统小学的梳型平面格局不再适用。
因此,我们选择了占地面积最小的垂直集中型体量布局——主体建筑变成了围合场地的“界墙”,将校园中心区域让位给树林。
△ “小森林”意象草图 ©直向建筑
△ 平立剖索引图 ©直向建筑
△ 悬浮跑道、操场与小森林 ©张钦泉
△ 小森林 ©存在建筑
紧接着的难题是,如何解决在校园中占地规模最大的室外田径场布置与用地不足、保留树木的冲突。场地南北向长110m、东西向宽86m,当排布完教学楼后,只能容纳180m长的跑道空间。
通过将传统铺开的运动场地拆分解体,让跑道抬升到空中,即设置于建筑三、四层之间,再架空南北两侧跑道,将两端嵌入建筑体量内
,在学校面向城市的界面上有局部的显露,同时将其他运动场分散布置于建筑屋顶及跑道层操场的下方空间。
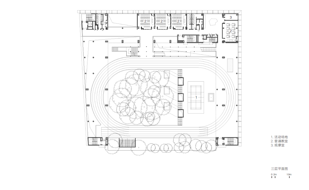
△ 三层平面图 ©直向建筑
△ 东立面局部和屋顶运动场 ©存在建筑
△ 悬浮跑道与小森林 ©罗灿辉
△ 架空层活动场地 ©存在建筑
△ 屋顶运动场 ©存在建筑
这种垂直化布置功能的设计策略实现了在局促用地条件下的空间竖向突围
,一方面提高了土地利用效率,减少了建筑对原始树林的侵占,另一方面也创造出了独特的空间体验——跑道仿若自然图景的 “画框”,学生奔跑于成片的树冠之下。
△ 从跑道看向小森林 ©存在建筑
△ 从架空层看向小森林 ©Dong建筑摄影
为适应深圳炎热多雨的气候条件,我们在集约型的建筑体量里设置了具备相当尺度的半户外公共平台系统。
这些平台不仅提供了完善的避雨、防晒、通风等功能,还成为承载校园公共生活的重要场所。平台在校园多个位置与跑道相连,跑道上的师生能够透过不同平台上的开口看向街道,街道上的人们又能抬头望向校园内的“小森林”,实现学校与城市空间的双向渗透。校园内,水平向设置的公共平台、跑道、连廊与垂直向分布的体育、交通空间系统相互连接,构成一套完整的立体户外活动空间系统,呈现出南方建筑特有的气质。
△ 从城市街道看向北立面 ©存在建筑
△ 从城市街道看向东侧入口 ©存在建筑
△ 架空层活动场地 ©陈颢
△ 北侧入口楼梯 ©存在建筑
△ 室外坡道与屋顶运动场 ©存在建筑
深圳作为典型的亚热带滨海城市,强烈的日照辐射与漫长的日照时间对普通教室的采光设计提出难题——在没有外遮阳设施的情况下,教室内部靠窗区域极易产生眩光,学生看不清黑板。为应对这一状况,一般学校在日常教学中通常都会拉窗帘来避免眩光,再依靠人工照明维持室内亮度。这种处理方式不仅降低了教学空间的舒适性,还大幅增加了建筑的能耗。
在这个项目中,我们在建筑的南、东、西三个方向立面上设置了25mm厚的外挂预制混凝土遮阳板。
外遮阳一方面能够有效抵御强烈日照产生的热辐射,也能避免高角度直射光进入教室形成眩光。在设计深化阶段,我们与建筑光学专家、清华大学建筑学院张昕教授团队开展了深入合作。张昕团队通过建立多个遮阳方案模型对所有教室进行光环境的动态模拟,利用“最小化列均不良利用时间占比”指标作为判断依据,指导设计进行优化,以兼顾各层教室各列书桌位置采光质量的均好性。同时,
基于光环境的模拟结果,我们在走廊一侧设置了较大尺度的开窗,优化窗地比,提升室内采光效率
,以尽量避免白天长时间拉窗帘的情况发生,从而实现保留窗外景观视野的同时,为师生创造出柔和的自然光环境。
△ 混凝土板遮阳与悬浮跑道 ©罗灿辉
△ 屋顶运动场及混凝土板遮阳局部 ©存在建筑
△ 从走廊看向小森林 ©存在建筑
△ 教室 ©存在建筑
04
难题:因树而起的连锁反应
✦
场地中被保留的原生树林和微地形成为了校园的核心空间,这一布局突破了传统学校空间的设计范式,相应地也需要我们根据现有的校园设计规范做出更具体的、有针对性的条文解释——主要涉及
校园总平面布局、建筑高度、层数认定、疏散场地
等方面。
首先,设计落地过程中,
环形消防通道需要在红线内设置,这迫使建筑体量相较于竞赛阶段的布局进行整体内缩
,导致场地内原生树林的保留范围又一次被压缩。项目初期规划保留50~60棵垂叶榕,最终仅留存25棵。
△ 2018年方案和2020年方案平面对比 ©直向建筑
其次,《中小学校设计规范》要求
小学主要教学用房不应设在四层以上
。垂直布置体量的策略原为解决面积指标与局促用地之间的矛盾,但涉及相关教学用房层数和消防规范对建筑高度的规定等技术难点,构成了方案落地过程中的诸多连锁挑战。在多轮量化研究后,我们将建筑体量设置为9层,属于高层建筑,其中普通教室被设在四到六层,不满足现有的设计规范。为解决这一矛盾,设计团队与深圳本地专家等多方展开沟通与反复研究,深入解读规范的条文含义(四层以内方便学生安全疏散和课间到首层活动),
最终利用场地原始坡地地形作为安全疏散场地,相当于将传统学校课间活动和安全疏散需要到达的“正负零层”抬高到了10m,成功破解了这一难题
——将场地内隆起地形的平均标高处设为学校的“正负零层”,该层与西侧台地小区地面大致持平,但比东侧街道高出了10m,因此“正负零层”以下10m高的空间可容纳两层楼高的功能空间,而普通教室布置在“正负零层”以上一到四层。这样即使该建筑实际共有9层,但学生到达操场和跑道的活动范围在四层以内,不会造成学生的疲劳。同时,
坡地地形作为安全疏散场地通过景观台阶与消防车道连接,满足了整体消防疏散的要求。
△ 剖面图 ©直向建筑
△ 七层平面图 ©直向建筑
在这个长达两年的漫长沟通过程中,建筑师和相关部门共同面对现实条件,通过灵活阐释条文以应对难题,而非违背现行设计规范。庆幸的是,在多方共同努力下,我们最终得以破局,坚守住了设计策略的核心原则——
最大化保留场地原有树林和地形。
△ 小森林与微地形 ©存在建筑
△ 树林中的活动场地 ©存在建筑
05
杂音:扬尘中的工地
✦
方案设计经过两年的调改,终于获得了相关部门对施工图审查合格的结果,并通过消防审批。项目施工从2021年1月开始,2023年12月结束,横跨疫情阶段。工地围挡内一片繁忙,打桩声音嘈杂,不可避免地对周边居民生活造成干扰。但不曾料想到的是,在施工过程中,项目还收到了千人签名的质疑信。与此同时,一个新情况是场地西侧天健集团开发的老住宅楼也开始被拆除,一大片土地准备建设超高层,这对教室的采光和相应的日照计算提出了新的挑战。为此,我们迅速联合相关部门通过答疑、宣讲等方式与提出质疑的居民进行沟通。项目建筑师甚至撰写了万字长文的回复信函——从消防设计原理、安全疏散流程、施工组织方案等多个方面进行详细解答,为居民消除疑虑,矛盾最终得到化解。
现在回看困难重重的过程,曾让我内心真正对设计产生动摇的一幕,却是病怏怏的垂叶榕和为了保护它们及树下土地而设置的预应力环梁挡土墙。
这一圈挡土墙高15m,当时施工队正在层层向上支模浇筑,从街角望向高台工地,被保留的树林在扬尘中不过是一大片赤裸土地上的一撮“鸡毛掸子”。
△ 施工期间垂叶榕生长状况 ©直向建筑
此外,由于校方在竣工半年前才正式介入,这使得之前的设计工作主要围绕教育局和工务署提出的具体指标要求进行调整,但使用方的需求在设计阶段无法及时获取。而作为建筑师,我们在整个项目周期中难以实现对全局的从容把控,更多处于高频次回应各方诉求与质疑的被动状态,这种困境也是项目的遗憾之一。
06
自然:教育的媒介
✦
回忆儿时的小学校园,没有现代主义巨构式的建筑,多是一栋栋小楼改造而成。放学时,大家会聚集在操场上,周围环绕着高大的杨树。那时的学校设施或许简陋,也没有空调,但教学用房都是4~5m高的空间,有着方方正正的大窗户。窗外总是尘土飞扬,但也绿树环绕,自然成趣。而这样的空间品质却是如今许多成建制教学建筑所缺失的——在如今的很多校园里,走廊被压缩到极限,老师因担心安全问题,甚至不允许学生在课间肆意奔跑和活动。
我们希望在保留的这片榕树林里,学生能够切实感受到四季的变化、聆听风声鸟鸣、触摸真实的土壤,相信这些都将成为他们童年学习生活中具体而美好的记忆。
学校空间作为重要的教育媒介,其环境的自然要素对学生成长具有深远影响。
为实现一个拥有一片“小森林”的校园付出如此代价,“值得与否” 以及“为什么是值得的”构成了这个方案的争议核心。
保留树木的过程阻力巨大,家长、管理层面乃至专业层面都存在争议,好像“值不值得”首先跟树种有关,跟城市空间的连续性关系不大。
△ 小森林与教学楼 ©罗灿辉
在和东南大学建筑学院史永高教授交流时曾经聊到这个话题,这里借用他的评价:“对于不知其历史的人来说,它或许只是在结果上提供了难得的自然与生机——这种盎然绿意总是人们喜闻乐见的。但稍稍知晓来历者,则会明白其不同一般的重要性,保留这片小森林是整个设计的起点与核心,也是后续空间结构发展的发动机。”如他所言,
这片垂叶榕的缓丘之下是福田中心区平凡建设者们的物质遗存,也是深圳四十多年城市化进程的缩影。如果能够保护这片树与其下的真实土壤,那么与之相关的历史信息也得以留存。
“鸡毛掸子”已经成长为一片葱郁密林,随着时间更迭,在未来或许会有人指着这片土丘上的密林讲述背后的故事。
△ 从跑道看向小森林 ©存在建筑
△ 小森林 ©存在建筑
在深圳超高速的城市化进程中,“七通一平” 式的土地开发模式如碾压的滚筒刀——削平山体、填海造陆,本质上是对自然的系统性“驯化”,这种模式虽然提高了开发效率,但也放弃了自然与人类情感的联接、时间的痕迹,以及城市与人类精神之间的联系。我们始终认为,
保留树木更多是对一种价值观的坚守,对城市空间发展的连续性与历史物质的留存有着倡导和引领作用,这种价值或许可以超越评估单一项目的得失,具有更广泛的社会与文化意义。
同时,也能够在常规的土地开发机制下,对诸多基地要素的那种习以为常的价值判断进行反思,由此引发对当代基地观的再认识,我们相信这是荔园外国语小学(景田)项目独有的力量。
此外,我们希望通过校园中的这片“小森林”,让学生在学习生活的这几年里构建与自然和谐共处的价值观。
然而,这一理念在实践中遭遇了诸多阻碍,家长对孩童可能被昆虫叮咬、树枝误伤等潜在安全隐患的忧虑也随之而来。这让我联想到直向建筑前些年的另一个项目——船长之家,我们在与常年以出海捕鱼为生的船长深入交流时发现,过去因技术与设备的局限,许多渔民在出海打鱼的过程中不幸遇难。而在当下的文化语境里,大海更多地被赋予美景的意象,成为人们抒发赞美的对象。事实上,真正的自然兼具愉悦与不安,深刻关联着人类与世界的深层互动。
家长对校园内的自然元素产生忧虑,本质上体现了对“真实自然”理解的复杂性。如今人们口中的亲近自然,实则是经过筛选的、剔除了原始部分之后被“驯化”的自然,大多是像小区绿地这样具有自然表象的工业化城市的产物,如修剪整齐的草坪本质上是“去风险化”的景观商品,它们虽具自然表象,却被剥离了自然的本真内核。
我们并非想要简单地去评判安全措施的对错与好坏,而是试图引发更深层的反思:当我们将自然过度“驯化”为城市景观时,是否也割裂了人与真实自然的联结?
项目信息
项目名称:荔园外国语小学(景田)
业主:深圳市福田区教育局、深圳市福田区工务署
建设地点:广东省深圳市福田区景田南路33号
建筑、室内、景观设计:直向建筑
主持建筑师:董功
项目建筑师:冯超颖、陈周杰
施工管理:赵亮亮、李锦腾
驻场建筑师:赵可、黄天植、黄雄深、张杰、程洋
设计团队:陈功、陶巍、赵亮亮、马小凯、管世鹏、高雨滴、赖建希、李想、刘世达、艾心、覃琛
合作设计院:深圳市华阳国际工程设计股份有限公司
合作设计院总建筑师:龙玉峰
合作设计院项目建筑师:谌贻涛
合作设计团队:梁茵、熊玮、林兴、李鹏程(建筑);徐宇鸣、吴亚平、肖政健、刘名(结构);陈娟、张晶、周天养、谢振、宋靖、钟展文、雷亚雄、苏东坡、王会兵、林佩怡、王业铭、李贝贝(机电);李建华、谢吉龙(室内);林子滔(绿建);陈欢敏、叶向前、施惠霞(景观)
支护设计:建研地基基础工程有限责任公司
幕墙设计:深圳市盈科幕墙设计咨询有限公司
灯光设计:深圳市自然光环境艺术有限公司
教室采光顾问:清华大学建筑学院张昕工作室
声学顾问:黄展春剧场建筑设计顾问(北京)有限公司
标识设计单位:上谷创意设计(深圳)有限公司
代建单位:深圳市华阳国际工程设计股份有限公司
代建项目管理团队:郑攀登、廖明宇、陈福广、童金宝、刘玉忠、胡炜、郑立旋、古培钦、王欣杰、宁平贵、范云卓
施工单位:深圳市华晟建设集团股份有限公司
建筑面积:29 061.80㎡(地上25 301.17㎡、地下3 760.63㎡)
占地面积:5 613.57㎡
用地面积:9 550.83㎡
设计时间:2018.03—2020.12
建设时间:2021.01—2023.12
摄影:存在建筑、张钦泉、DONG建筑影像、罗灿辉
作者简介
董功
直向建筑事务所创始人、主持建筑师。
张菡
直向建筑事务所理事合伙人。
冯超颖
直向建筑事务所理事合伙人。
黄英杰
直向建筑事务所媒体专员。
客服
消息
收藏
下载
最近









































