查看完整案例

收藏

下载
引用文本:[1]赵震,张鹏举. 绿色观下的内外适配——内蒙古师范大学音乐艺术楼设计[J]. 建筑技艺(中英文),2025,31(3):14-23.
▲ 整体鸟瞰 ©赵明焯
绿色观下的内外适配
——内蒙古师范大学音乐艺术楼设计
文 / 赵
震
张鹏举
内蒙古师范大学音乐艺术楼坐落于盛乐校区的东北角,与校园北侧的乌兰湖毗邻而居。作为承接老校区音乐学院搬迁的新载体,学校希望这座
集汇演、教学、排练等功能于一体
的建筑不仅承载
专业知识传授、艺术技能训练
的教育使命,成为
师生日常开展教学活动的场所
,还可周期性地
承担对外汇演职能,发挥文化传播与交流的作用
。
▲沿乌兰湖实景
©窦俞均
复合的功能需求和特定的场地条件对设计提出了多重要求:如何在校园新旧建筑的交织中,建立建筑与环境间的秩序与逻辑;如何在开阔的基地上,探索建筑自身的尺度与布局。在笔者看来,
设计并非单一协调或对抗策略的简单叠加,而是需要寻找综合最优解,探寻克制条件下物尽其用的设计法则,这一过程可称为建筑设计的“适配”
。“适配”既是理解场地复杂性与功能多样性、寻求秩序与自由平衡的线索,更是建筑以谦逊姿
态回应外在环境,以自洽系统状态满足内在需求,表达绿色理念的营建态度。
NO.1
适配内部——分置与联结
1.1 分置功能
在项目设计过程中,可切入的视角多元多样,但功能推敲始终是贯穿设计始终的核心问题。作为集汇演、教学、排练等功能于一体的“演教综合体”,
师大音乐艺术楼
包含1间报告厅、1间音乐厅、8间排练厅等多类型空间。
教学单元
承载专业功能体系,主要满足学院内部的日常教习需求;汇演部分作为核心空间,兼具文化交流与对外展示职能。两部分功能空间既因使用人群差异和时间安排交叉而存在矛盾,又因备演、练习等环节的需求互为依托。
本质上讲,两者作为建筑功能体系的一体两面,具有不可分割的内在关联
。基于这种认知,设计提出的原则是合乎效率的:教习、办公等日常空间被整合在南侧,观演被独立分置于北侧;体块间间距形成类似峡谷形态的通廊,与其上错动分布的连廊一同将空间拉结起来,使离散的体量被整合成为连续的整体。
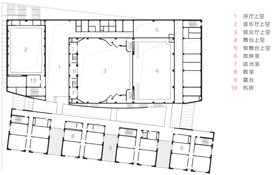
▲ 一层平面图
©
内蒙古工大建筑设计有限责任公司
▲ 二
层平面图
©
内蒙古工大建筑设计有限责任公司
汇演一侧,大尺度的剧场与音乐厅构成该区域空间的主导要素,两者均属低频使用空间
,设计通过将其并置且共享同一入场缓冲区域,简化了空间组合关系,实现功能高效适配。教学一侧,因各功能房间对应体量规模、使用人群及时间分布不一,设计将功能需求内在差异转化为竖向空间组织策略,组织排练厅、教室及教研办公房间自下向上逐层布置,层高依次递减,分别为5.4、4.3、3.8m,精准契合各功能空间需求与尺度感知。
▲ 三
层平面图
©内蒙古工大建筑设计
▲ 四
层平面图
©
内蒙古工大建筑设计有限责任公司
设计除在水平及垂直方向上对建筑体量进行了精细推敲外,另一个重要设计关照点是对内部空间节奏和氛围的营造。区别于学校、办公类建筑常用的线性走廊串联空间模式,音乐艺术楼南侧各功能房间被拉开7.1m间隔,形成兼具入口过渡与景观平台功能的复合空间。走廊向北延伸,与多条连廊衔接,直抵汇演区域。
通过主、次动线叠加,设计在原本线性走廊的基础上引入了明暗变化间奏,化解了枯燥与单调
。
1.2 联结通廊
跳脱出功能空间分离的逻辑之外,
两个性格迥异的空间之间存在着若即若离的张力
。音乐艺术楼内各功能体块基于相似使用属性,在空间组织中产生出内在的关联性,彼此之间尽管布局分隔,却仍呈现出隔而不断、相互渗透的空间状态。从另一视角审视,因功能分置形成的通廊空间,实则拥有再次连接空间的潜力。
▲ 远点景观对人流的引导
©窦俞均
通廊空间首先连接了两侧的功能体块,其上空四条错动的连廊织补起汇演与教学功能
。然而,报告厅南侧封闭的墙体对连廊的对接造成了阻碍,加之南北区域各层标高存在细微差异,进一步增加了空间连接的难度。报告厅外南侧的弧墙成为破局的关键,其间隙中被植入垂直交通核,为连廊提供灵活的对接端口,恰到好处地化解了标高差异引发的空间衔接问题。
▲ 通廊内部动线构成
©
内蒙古工大建筑设计有限责任公司
当把视角从建筑内部拓展至外部环境时,
通廊空间的一个关键成因便突显出来——作为景观通道连接建筑内外的人与物
。以南侧教学体块的扭转为界,自然地限定出西窄东阔的沙漏状空间形态,赋予其强烈的“吸纳”特质。其中,弧墙作为最具表现力的元素,牵引着观者的视线投射到建筑外的景观水系。至此,室外景观成为建筑空间构成要素的一部分,实现校园景观空间东西向的贯通。通廊内空间序列和节奏的动态变化,也成为引导观者走向景观的重要线索。通廊空间上方错动的连廊遮蔽了部分视线,使景观不能一览无余,向下的阶梯引导人们逐步前行,直至透过全面观景幕墙一窥景观的全貌。
▲ 通廊内丰富的光影与空间构成
©窦俞均
▲ 全面观景幕墙与湖景
©窦俞均
1.3 功能主导的内部适配
为保障实际使用过程中的舒适性与便利性,设计时既要横向满足功能布局,还需进一步纵向营造与空间需求相适配的内部环境。
音乐艺术楼的功能属性决定了它对声学隔离、光照分布、热环境调控等有极高要求,投射在空间塑造上,即是对腔体空间的利用和光热调节系统的配置
。
▲ 弧墙内外的垂直交通
©窦俞均
设计时,
需精准把控声学效果,通过有意创造“间层”,借助空间隔离实现被动隔声
。为保证声学效果和视觉体验,报告厅多呈不规则形态,不可避免地在其内外衍生出不规则腔体空间,将设备管网、垂直楼梯等辅助功能整合其中,既实现消极空间的二次利用,又借助“间层”达成报告厅内外的物理隔声。教学区遵循空间隔离原则,从北至南线性布置走廊、卫生间、楼梯间和排练厅,东西向设置入口空间作为排练厅间的缓冲带,使辅助空间自然形成隔声功能带。
▲ 集合热压与风压通风的通廊空间
©
内蒙古工大建筑设计有限责任公司
通廊作为汇演和教习之外的核心空间,通体采用玻璃幕墙与全面天窗,兼具景观引入和光热调节功能。
天窗体系的置入,使通廊在公共空间属性基础上成为室内光热环境的调控节点
,充足的直射阳光为室内环境提供稳定的光热能源。在电控系统辅助下,天窗借助热压与风压实现对室内舒适性的调控,以适应呼和浩特夏季炎热、冬季严寒的环境特性:冬季,北风被北侧大面积实墙阻隔,太阳直射中庭加温;其他三季,日照加热室内空气,热气流上升,开启天窗与侧窗时,热气流经天窗排出,形成热压通风。
▲ 日间通廊内充足的采光
©窦俞均
音乐艺术楼设计上的功能适配并非是将各类功能简单相加,而是通过精准的空间定位,使各功能单元如拼图般嵌入最能发挥其效能的位置
。从功能出发,设计实现了主从关系清晰、功能分区明确的内部布局。在理性的排布下,各功能单元相互适配,最终使内部空间呈现出一种自然而生、关系明晰的自洽状态。明确的功能定位和适配的运作系统,确保了建筑能长期稳定服务于目标功能,减少了后续为迎合使用而变动空间构成的情况。
由此可见,适配的功能策略实则是一种立足于建筑全生命周期的实践范式,更是绿色建筑可持续价值观的具象化呈现与传递
。
NO.2
适配外部——自明与互成
2.1 自明于环境
从内蒙古师范大学北入口广场踏入校园,稍向东步行便可抵达场地。音
乐艺术楼位于校园北侧东西次轴线上
,与西侧工美楼、行政楼共同构成轴线的东延线部分。
场地东侧毗邻一条贯穿校园的蜿蜒水系,南侧与公寓楼群隔空相望
。场地平面形态近似矩形,占地约23 600㎡
,轮廓规整而清晰,内部有约5m高差,整体地势呈北高南低、西高东低的走向。
在这片场地内外,既有需要映照的校园环境,又有可顺势而为的景观水系,以及亟待彰显的文化特质
。在有如此多重提示与参考的环境之中,设计需要探寻一种既能回应内在功能需求,又能与外部环境建立对话的逻辑框架,“适配”则为音乐艺术楼的设计提供了一个恰好的切入点。
▲ 总平面图 ©
内蒙古工大建筑设计有限责任公司
音乐艺术楼的布局反映着内在的功能逻辑,建筑体量南北向分置,对应教学与汇演功能。无需自然采光的汇演功能被置于北侧,采光需求较高的教学功能则自然被安排在南侧,其间通廊在空间形态走向和尺度上与东侧的景观水系相互关联。值得一提的是,南侧教学体量突破了校园建筑群既有的轴线走向,有意扭转了6°,最大限度争取采光面积,
在形体布置关系的层面使建筑适配采光需求,提升了建筑对能源的利用效率,实现了功能与节能的双重优化
。
分置的体量在满足建筑自身功能需求的同时,也在场地环境之间达成平衡。
教学与汇演体块之间的间隙形成了一条东西向的景观通廊,不仅有效回应了东侧湖景,还串联起湖景与校园内部的视觉与空间联系
,使音乐艺术楼成为湖景与校园之间的最后一块拼图,完成了从校园入口直至东侧水系的整体空间序列的建构。
▲ 形体操作
©
内蒙古工大建筑设计有限责任公司
2.2 互成于场所
汇演建筑的功能决定了它在平面布局上需具备较大的使用面积,在立面造型上倾向于采用厚重、庄重的建筑语汇。设计通过控制开窗面积比例,结合上升阶梯、柱列等立面元素,不仅暗示了汇演建筑的功能特质,也含蓄地呼应着邻近建筑的柱列形式,共同组建校园次轴线的秩序感,实现建筑个性表达与校园环境的协调适配。
教学区域基于其功能需求,选用白色穿孔板作为立面材料,通过单、双层的组合变化,实现采光性能与形式表达的平衡
。双层穿孔板将柔和的光线均匀散布至教学房间的各个角落,单层穿孔板则增强了功能房间之外的采光效率。
▲ 教学区立面构成©
窦俞均
由穿孔板组织的表皮如实契合了功能诉求,由此引发了一系列正向连锁反应,立面肌理自然发生变化,教学属性得以展现,人与建筑之间的距离也随之拉近。困扰立面设计“真实”与“表现”之间的难题迎刃而解,二者真正实现了相互适配的理想状态——
适配的表皮策略平衡了建筑语言艺术性表达与立面功能实用性需求之间的取舍关系
。此外,立面在兼具实用功能的同时,以一种自洽的方式映射出绿色建筑的设计理念与价值取向,
自然实现功能与节能的融合
。
▲ 教学区立面图
©内蒙古工大建筑设计有限责任公司
场所性格体现在建筑对其所处具体地点与环境特征予以回应,以及随之呈现相适配的形态。内蒙古师范大学盛乐校区的建筑群以砖红色为主基调,有着明确而统一的建筑语言氛围。
音乐艺术楼的陶红色软瓷板与整体基调呼应,模糊了新旧边界,使建筑与校园环境浑然一体
。在建筑临湖一侧,底层通透的玻璃体量与开窗丰富的穿孔板表面相得益彰,配合顶部错落的退台,与东侧的水系相互映衬,达成建筑与校园互成互融的适配状态,进而实现立面形式、功能需求与校园环境的适配。
2.3 界面主导的外部适配
对室内热环境的调控,并非局限于室内空间的局部优化,而应从建筑整体构造角度系统谋划,达成由表及里的系统性适配。呼和浩特冬冷夏热,太阳辐射强烈,在此气候条件下,如何实现室内空间性能的优化,这一问题可被投射到建筑外围护结构的设计中,以降低外界环境对室内空间使用的不利影响。
▲ 片墙有效隔绝西晒 ©
窦俞均
大面积的穿孔板与陶板决定了音乐艺术楼整体的立面基调,
针对不同的体量和空间单元,设计则采取了更为精细的处理策略
。南向外墙在正常窗洞的基础上,水平与垂直双向叠加长条形穿孔板,并拉大板间距离,对夏季直射阳光和冬季寒风进行双层过滤与缓冲,阻隔热量和寒气,尽可能维持室内空间性能稳定。双层穿孔板的设置也有利于实现对透光率的控制,将直射光分解为柔和、均匀弥散的漫反射光,避免眩光的产生。同时,音乐艺术楼与邻近建筑有一定间距,西晒问题突出。
西侧片墙与柱列在契合校园语境的同时,兼具遮阳功能,从而缓解西晒对室内热舒适度的不利影响
。此外,西侧音乐厅因其大空间体量与低使用频率的特性,自然形成了隔热空腔,进一步阻挡了西晒的热量渗透。
▲ 入口空间多层次引导
©窦俞均
NO.3
结语
内蒙古师范大学音乐艺术楼的设计与建造过程,本质上是建筑与环境、功能之间相互适配、协调的过程,亦是建筑平衡内外设计需求,并确立自洽逻辑的关键历程。
适配这一概念,绝非仅仅局限于实现需求与策略间单向度的“适”,更在于达成各个策略之间多向度的“配”
。倘若只是简单地堆砌策略,不免导致策略之间相互矛盾、彼此消磨。而适配的核心逻辑,恰恰在于从中斡旋,化解矛盾冲突,最终构建起一个使各建筑要素相互促进、良性互动的自洽体系。在此基础上,
自洽适配的建筑体系可视为绿色可持续建筑体系的一种本体表达
。功能、形体等多方要素在适配策略的统合下相互协作,彼此增益,不仅确保建筑自身可持续运转,更成为绿色建筑价值标准的基础。
▲
内蒙古师范大学音乐艺术楼与湖景
©窦俞均
伴随老校区音乐学院的搬迁,音乐艺术楼自2024年9月正式投入使用。
在院校师生的日常使用过程中,设计前期对建筑适配的构想被逐步验证。日常与正式、练习与展示
,共同构成了音乐艺术楼的使用常态。这一状态的达成并非依靠高开发强度的盲目叠加,
而是在剖析并精准界定所面临问题的基础上,探寻兼容的策略体系
,才最终实现了“适”与“配”平衡的空间最优解。
(原文刊载于《建筑技艺》2025年3
月刊。
)
项目信息
项目名称:内蒙古师范大学盛乐校区音乐艺术楼
业主:内蒙古师范大学
建设地点:内蒙古自治区呼和浩特市
建筑、景观、内装设计:内蒙古工大建筑设计有限责任公司
主创建筑师:张鹏举
项目负责人:赵智勋
设计团队:杨耀强、杨沛、黄利利(方案);赵智勋(建筑);朱喜荣、韩东波(结构);高红艳、石义强(设备);马海春、陈芳(电气);张琦(精装设计);李国棋(舞台工艺);赵宏宇(幕墙);张伟(景观)
施工单位:河北建设集团股份有限公司
总建筑面积:24 950㎡
设计时间:2019.10—2020.10
建成时间:2024.05
建筑摄影:窦俞均、赵明焯
作者简介
赵震
内蒙古工业大学建筑学院硕士研究生。
张鹏举
※
(通信作者)
客服
消息
收藏
下载
最近
























