查看完整案例

收藏

下载
坚持做有价值,有深度,有意义的事情
设计思考:黑白对比也可以很生活,设计为生活服务。
黑白冲击,如何平衡耐看,高级不冷适合小孩。
空间体快多,加入自然属性,空间色块一定要解决空间问题.
项目地址:中国·成都
项目面积:232m²
设 计:璞采空间设计机构
费用预控:98万
空间氛围:
品质 明快 对比 温度.
主材规划:深色质感砖+深色木+不锈钢+白色柜门+岩板+棉麻
原始结构现场照片
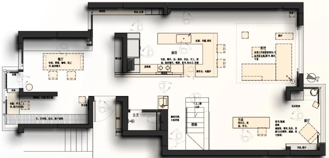
平 面 布 局
/ Flat layout
入 户
/
Entering the house
厨 房
/
kitchen
客 厅
/ parlo
餐 厅
/
dining room
客 卫
/
Guest Guard
二 楼 起 居 室
/
Second floor living room
二 楼 儿 童 房
/
Second floor children's room
二 楼 主 卧
/
Second floor master bedroom
二 楼 公 卫
/
Second floor public bathroom
二 楼 父 母 房
/
Second floor parents' room
客服
消息
收藏
下载
最近














































































