查看完整案例

收藏

下载
色彩是空间的情绪,材质是它的触感。
——凯莉·韦斯特勒
极简主义的魅力在于严谨、准确,理想主义的不懈追求把时尚本身提升至艺术境界。以穿梭的变色光线与冷硬金属形成强烈对比,通过重构、折叠、移位和塑形解构轮廓魅力,探索感官吸引力与肌理美学,超越了常规思路解读对空间的理解。
The charm of minimalism lies in its rigor and precision, and the unremitting pursuit of idealism elevates fashion itself to the realm of art. the strong contrast between shuttle color light and cold hard metal, the charm of the profile is deconstructed through reconstruction, folding, displacement and modeling, exploring the sensory appeal and texture, transcending the conventional interpretation of the understanding of space.
△改造方案
△原始结构图
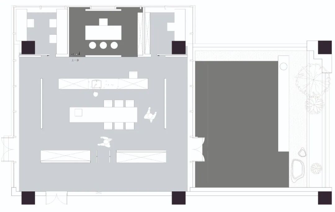
△平面布置图
在这
140
平的展示空间内,以率性、纯粹、利落的线条勾勒出空间的划分区域,集办公、展示、茶歇、会议等基本功能,展示人与环境、人与物之间的相互依存、相互并立的实际需求。
In this 140-square-meter exhibition space, the areas are outlined with free, pure, and neat lines, integrating basic functions such as office exhibition, tea break, and conference, showcasing the actual needs of interdependence and coexistence between people and the environment, and between people and things.
空间与时空将在同一状态下萌生,能够通过奇观唤起情感并讲述故事。不断穿梭的放射光线如气流般上下席卷,创造其神秘感、静谧感,不乏灵气与玄思,全部注入精神归属。
Space and time will be born in the same state, and can be evoked by wonders to arouse emotions and tell stories. The constantly shuttling light is like airflow, rolling up and down, creating its mystery, tranquility, not lack of spirit and speculation, all of which are injected into spiritual belonging.
黑白灰色调统一着整个空间,将明暗对比、深浅层次演绎得淋漓尽致。在空间中,节奏分明,飞速发展,感叹时光流逝,深邃更迭。颂扬过去,反思未来,将科技化注入现代生活,多重层次充斥着主题演变,反射出空间简约又感知的空间情绪。
Black, white and gray hues unify the entire space, bringing out the contrast between light and dark, and the depth and shade to the fullest. In space, the rhythm is distinct, the development is rapid, the passage of time is lamented, and the deepening is iterated. Eulogizing the past, reflecting the future, injecting the technological into modern life, and the multiple layers are full of theme evolution, reflecting the simple and perceptual spatial mood.
空间中不需要过多的缀饰,只需明晰的轮廓,永恒的精髓包容了一切,隐含着丰富的内涵。引发深入思考,展望未来
……
Space does not need too much embellishment, just clear contours, the essence of eternity contains everything, implicit and rich in connotation. It provokes deep thinking and forward to the future
…
▶ 项目信息
主案设计(Designer) :杭州
MH
设计团队
设计时间(Design Time) :
2025
年
07
月
项目类型 (Project Type) :工装(木作展厅)
项目地址(Project):杭州
建筑规模(
Building scale):140
m²
往期精彩回顾:
MH设计作品——【
梦开始的地方……
】
MH设计作品——【
极致•韵律(实景)
】
客服
消息
收藏
下载
最近






















