查看完整案例

收藏

下载
引用文本:
孟瑶. 从策略到设计——中国美术学院良渚校区使用纪实[J]. 建筑技艺(中英文),2024,30(11):12-26.
▲ 校园全景 ©田方方
从策略到设计
——中国美术学院良渚校区使用纪实
文 / 孟瑶
对于非常建筑来说,2023年完工的杭州市中国美术学院良渚校区是一个较为特殊的项目,它不同于工作室以往的作品——以建筑材料或结构、空间作为设计原点,
良渚项目始于张永和老师对一个艺术院校教学体系的整体设想,并在发展这个体系的过程中,建筑成为了学院教学系统的物质载体。
国美良渚校区的整体设计由地面层绵延的工坊、教学空间以及局部高起的宿舍楼、公共建筑构成
,开放至今除了图书馆的少部分室内尚未完全交付,其余建筑已经全部投入使用。那么,设计团队的思考在落地后是否适配美院的校园生活?作为一个在良渚工作了近一年的建筑师,希望能从功能和实际使用的角度来介绍张永和老师设计的教学体系与校园空间的关系,以及设计师在材料、结构层面的思考之于美院生活、教学的意义。
▲校园一期Ⅰ段 ©田方方
01
基地与设计策略
提到国美良渚校区的设计,有不少人会好奇象山、南山与良渚孰优孰劣?为什么良渚校区那么像厂房?回答这两个问题并不困难。首先,环境、红线面积、地理位置与设计息息相关。《园冶》第一章即为“相地”,位于城市、山林、郊野、村庄的基地各有不同的设计策略。当代建筑也同样如此,城中的国美南山校区可借西湖柳浪闻莺之便集约建造;转塘依山傍水的象山校区能取场地之广自由舒展;而良渚校区距离城市中心遥远,用地紧张,又服务于工业、视觉传播、创新、时尚设计四大师生众多且随时需要动手做大型作品的设计学院,所以
水平延展工坊、垂直向功能分区的“居学一体”策略几乎成为最适合于良渚基地的选择。
1960年代,荷兰建筑师阿尔多·凡·艾克(Aldovan Eyck)在阿姆斯特丹孤儿院(A msterdam Orphanage)中用“毯式建筑”来对抗现代主义早期建筑及城市强调功能分区的设计方式,他认为这种平铺的平面形式能够去中心化,实现建筑各功能之间有效、流畅的连通。在国美良渚校区的设计中,非常建筑认可“毯式”平面的自由度与多样性,这样连绵、不间断的空间能最大程度允许各学院、不同学科之间互通有无、相互交流,也有机会让师生于日常工作中潜移默化地了解、学习到新的知识。
▲ 阿姆斯特丹孤儿院的毯式平面
©CCA Mellon Lectures
但是,工坊的设计并不如想象中那么简单。在非常建筑内部,建筑师们曾设想过一个问题:是不是用现成的工厂也能够改造出一个相当不错的设计学院?答案自然是否定的,因为建筑设计中的结构、材料、尺度、光线、室内外关系、功能流线、防火等是个复杂的综合操作,并非单纯的形式问题。
在工坊的设计中,室内最高处净高为9.9m,所有高窗都朝北,其高度介于5.2~9.9m之间。第一,相对于其他方向,
北窗能够避免强烈、直接的光照
,室内光线会较为平均、柔和,易于创作。第二,
拱的平面排列方式自然划分了防火分区
,并且高窗可以解决排烟,拱的自然下落也消化了方盒子建筑需要刻意设置的机械排烟与挡烟垂壁。第三,窗在高处,
窗下空间便无需再因为采光要求而进行分割
,连续、延展的工坊为大规模布展及大型作品的创作提供了可能性。
▲ 连续的工坊 ©田方方
▲ 工坊半室外空间 ©田方方
▲ 工坊一期典型剖面图 ©非常建筑
例如,时尚设计学院的工坊内可以一次性展出2024届所有服装设计毕业生的作品,创新学院同学的大型交互作品也能够得以呈现。此外,工坊顶层屋面的结构全部为反梁,使得室内半拱形的空间能够获得更为纯粹的形式表达。在二层,每一组工坊之间都有一条1.5~6.6m宽的通道,不仅解决了防火规范中的疏散问题,也为二层增设了公共活动的平台。
▲ 中国美术学院2024“世界树”毕业设计展览
——时尚设计学院 ©孟瑶
▲ 中国美术学院2024“世界树”毕业设计展览
——创新学院布展过程 ©孟瑶
从功能分区的角度,“居学一体”并不仅仅是便捷的垂直通勤方式,更是设计师在有限的场地中尽可能多地布置公共空间的一种策略。
与工坊直接连通的多层与高层建筑均为宿舍楼,除去首层及二层的公共空间,宿舍楼顶层是供同学学习、锻炼或休闲的多功能活动厅(也称为“探索器”)。这些开放程度不同的公共空间构成了功能类型与形式的多样,便于学生在校期间尽可能多地与他人进行交流与联系。但遗憾的是,目前探索器只在五号楼开放,其他宿舍楼的顶层公共空间均尚未敞开, 希望校方有朝一日可以将这部分空间还给同学。
▲ 东南侧鸟瞰 ©林俊杰
▲ 工坊与宿舍楼鸟瞰 ©田方方
▲ 五号楼顶层公共空间(探索器) ©孟瑶
02
材料逻辑与建筑功能组织
国美良渚校区的设计从2017年9月开始到完成施工图经历了两年时间,校园一期的施工周期不到三年,工程造价约5000元/㎡,这些设计、施工决定了设计团队需要使用最经济的方式创造性地进行材料与空间营造。
非常建筑的方法是探索表皮材料的工艺价值,并用材料的逻辑来组织建筑功能。
其中,以木模板混凝土定义校园公共空间内部,包括底层工坊、教室内部及外部檐下空间,室外则使用横向肌理的涂料拉毛工艺。
▲ 2020年木模板混凝土施工 ©孟瑶
▲ 横向肌理拉毛涂料外墙 ©孟瑶
▲ 2020年在杭州良渚国美工地进行的拉毛涂料实验 ©孟瑶
多层与高层宿舍楼立面采用颗粒度较小的白色纹理涂料和铝方通格栅,其屋顶公共空间的围合界面(也称为“探索器”)通过采用张拉网附着在半干的砂浆上形成像巧克力威化一样的特殊肌理。
▲ 宿舍楼远眺 ©孟瑶
▲ 2020年在北京隆福寺非常建筑办公室楼下
进行的张拉网表皮实验 ©孟瑶
▲ 5号楼顶层“探索器”外部表皮 ©李诗琪
标志性的校园公共建筑如图书馆、展览馆立面,主要运用不同类型的涂料拼合形成材料的弱对比,表达建筑的特殊功能。
▲ 图书馆主入口 ©田方方
▲ 大拉毛涂料外墙 ©黄舒怡
这些工艺的运用构成了丰富的建筑体验,室内木模板混凝土消解了工业材料的冰冷,图书馆的拉毛外墙能够使人从材料肌理而不只是外部形式感知其作为公共建筑与其他空间的不同;宿舍楼顶层张拉网材料的陌生感与“探索器”的概念不谋而合,能够引导人们近距离观察、了解建筑。同时,材料设计也加入了对视觉的考虑,例如宿舍楼外部的铝方通外立面在遮阳、通风的同时也能够遮挡同学们各种颜色的衣物,令校园的整体形象更加干净、统一。
▲ 宿舍楼铝方通格栅外立面 ©孟瑶
通过材料,使用者可以与这所校园建立一种新的联系,或粗糙或细腻的墙面邀请人们用更为微妙、专注的方式去认知、理解空间,使得建筑的形式、质感与方位同时被纳入记忆的范畴。
03
设计师与使用者互相启发的
空间使用方式
在国美良渚校区正式交付后,建筑的使用状态令人欣喜,学校师生对于空间布局、教学方式的设计超出了建筑师的预想,校园本身也成为了老师和同学们课程创作的内容。可以看到,
充分开放、灵活的空间最大程度激发了师生的创作,也有机会转变长期以来传统授课-学习的等级关系,使得教学相长、平等对话成为现实。
▲ 工坊一层教室及外部回廊 ©田方方
| 室内工坊空间的使用
在良渚校区,老师们的教学空间常常并不固定,可以在教室,也可以在工坊任意的公共空间中,有兴趣驻足旁听的同学不会遭到排斥,教师们也不过分正襟危坐。另外,同学在连续的校园空间中也有机会参与其他学院或工作室的公开授课内容,
“分享”成为了良渚校区的日常
。例如,在2024春季学期创新学院的中期评图中,一组特殊的“长卷”不仅最大化了图纸的连续性阅读,也为“评图”这个设计学院日常行为探索出新的形式。
▲ 2024 年春季学期创新学院中期评图 ©孟瑶
除了教学,工坊最基本的功能是展览与作品制作。在这样一个鼓励动手的校园,同学们有机会在本科阶段就亲身体验策展、制作、布展的全流程。
▲ 工坊一层教室及外部回廊 ©田方方
▲ 工坊内一层教室及通往二层空间的楼梯 ©田方方
▲ 工坊中的装置搭建 ©田方方
▲ 视觉传播学院咖啡车 ©林俊杰
当然,良渚校园的生活也不全然是紧张的教学,在工坊撤展之后也有同学将这个大空间当做滑板练习场,或者在周末临时搭建羽毛球场,这些生动的使用方式增添了属于美院人的活泼。
▲ 工坊空间撤展后同学在滑滑板 ©李诗琪
▲ 工坊内的临时羽毛球场 ©张永和
| 室外庭院与檐下空间的使用
良渚校区的室外空间主要包括数个不同尺度由建筑围合的公共绿地、工坊内部的窄院、二层屋顶平台空间和檐下空间。
▲ 鸟瞰 ©田方方
作为建筑的外延,不同尺度的空间可以适应不同的功能,也能够关注到不同需求的公共生活。
例如,2024年毕业季的灯光和服装秀就借用了校园内最大的水院作为舞台,展开了一场以校园建筑及景观为背景的别开生面的毕业作品开幕式;水院西侧的8号楼前是电影兴趣社的常驻观影地点,在二层屋檐的庇护下,日常的放映既能获得最大程度的开放性,也不容易受到天气影响;在工坊的檐下,若干微小休闲空间被临时用来供学生做喷漆、焊接等;食堂边的“舅妈烧饼”和水果摊,得益于杭州宜在室外活动的温和气候,成为了良渚校区最具人气的场所。
▲ 2024 中国美术学院毕业季“世界树”水舞台 ©林俊杰
▲ 8号楼前电影兴趣社短片放映 ©林俊杰
▲ 工坊屋檐下的下沉空间 ©张永和
▲ 6号楼前“舅妈烧饼” ©孟瑶
▲ 良渚校区6号楼前水果摊 ©张永和
04
设计与施工容错
从建筑师视角来看,国美良渚校区的施工并不完美,如木模板混凝土脱模质量不佳且后期修补痕迹重,景观桥的完成曲线与原设计不符,诸如此类的问题比比皆是。
这样的施工结果给建筑师和使用者都带来了困扰,但值得注意的是,它们并没有影响美院的空间质量与整体呈现。
记得多年前在课堂上,周榕老师讲到西扎的建筑在施工水平非常有限的情况下也能够“布衣粗服不掩天香国色”。虽然国美良渚校区外表冷峻,与天香国色距离遥远,但
依靠材料工艺与空间本身来呈现建筑的魅力实则更考验设计功底。
从项目的最终完成结果来看,良渚校区的结构体系和材料选择是相当成功的,拉毛工艺不会让人去追究墙面的平整度,灰色模板的混凝土掩盖了一部分脱模不佳的缺陷,这无疑展现出在大规模建造中传统手工艺对抗机器、精细化施工的实操可能性,给预算有限的设计师提供了一个可参考的经验。
除了施工,在实际使用中我们发现良渚校区的设计的确还存在一些问题,如各工坊入口的高度(现为2.3m)和宽度或许还应增加,以方便一些大型设备进场;又如因防火规范而不得不修改的“近在咫尺却遥遥相对的桥”,似乎成为流线设计的缺陷;宽度过剩的宿舍楼走廊,原本建筑师希望用尺度化解双边走廊的消极性,使得房间能够从室内向外拓展,丰富同学的公共生活,但出于安全考虑和管理要求,目前不允许在走廊放置任何桌椅,这个空间可能还需要进行二次设计。
05
结 语
总体而言,国美良渚校区是非常建筑经过数十年的工作沉淀以及对多个校园设计进行研究、实践之后较为成熟、完整的设计表达。非常建筑一直以最为开放和坦诚的态度,持续探索建筑的更多可能性或尝试更具挑战性的设计方法,希望在未来能够有机会弥补过去的遗憾,取得更大的进步。同时,作为一个包容度极高的校园,国美良渚校区的设计也不止步于当下,会随着新面孔、新思想、新技术的涌现而日新月异。建筑师期待生活在良渚校区的大、小艺术家们能用自己的智慧探索出更多有趣的校园使用、生活方式,并因此而收获更积极的人生。
· 技术图纸 ·
▲总体首层平面图 ©非常建筑
▲总体二层平面图 ©非常建筑
▲工坊一层平面图 ©非常建筑
▲工坊二层平面图 ©非常建筑
▲工坊剖、立面图 ©非常建筑
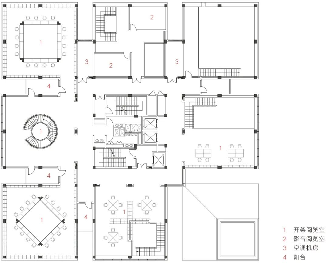
▲图书馆一层平面图 ©非常建筑
▲图书馆四层平面图 ©非常建筑
▲图书馆九层平面图 ©非常建筑
▲体育馆一层平面图 ©非常建筑
▲体育馆屋顶拱底平面图 ©非常建筑
项目信息
项目名称:中国美术学院良渚校区(一期)
业主:中国美术学院
建设地点:浙江省杭州市良渚区
建筑设计:非常建筑
主持建筑师:张永和、鲁力佳
设计团队:王文志(Ⅱ段)、尹舜(Ⅰ段)、王玥、龙彬、黄舒怡、梁小宁、刘扬、柳超、张博文、王硕、程艺石、何泽林、师琦、林诗洁、李相廷、谢岩旭、焦慧敏(建筑);王玥、张敏、韩书凯、李帅(室内);师琦、尹舜、林诗洁(景观);李诗琪(现场协调)
施工图设计:同济大学建筑设计研究院(集团)有限公司建筑设计三院
照明顾问:同济大学建筑设计研究院(集团)有限公司建筑照明所
建筑面积:180 000㎡
结构:钢筋混凝土结构
设计时间:2018.03—2019.06
建成时间:2023(一期Ⅱ段)
作者信息
孟瑶
非常建筑建筑师。
本文刊登于《建筑技艺》杂志
2024年11月刊
编辑:付丽娜
校核:刘晓茜
| 近期活动
|
全
媒体展示平台
| 更多信息
杂志订阅 |
010-88375434(订阅)/57368807(物流)
客服
消息
收藏
下载
最近


























































