查看完整案例

收藏

下载
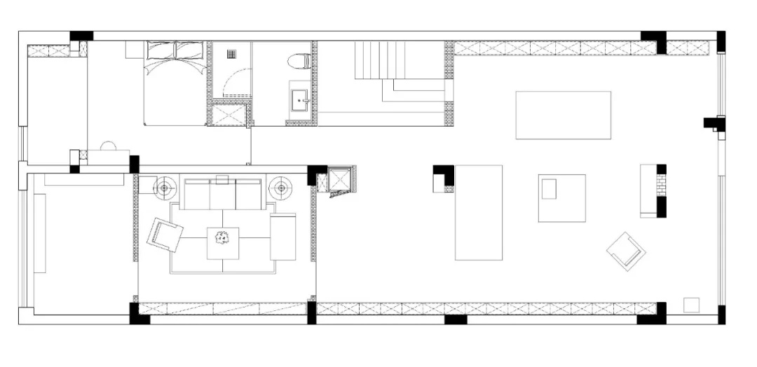
深入剖析这套联排别墅的户型,其整体为三层结构,涵盖地下一层与地面两层。看似格局不错,实则存在不少较为棘手的问题。
地下室的状况令人担忧,仅 2.4 米的层高,使得空间稍显压抑。而采光主要依靠一个面积仅约 2.5㎡的小天井,微弱的光线难以穿透,导致地下室光线昏暗,极大地限制了该空间的使用功能与舒适度。
来到一层,厨房空间逼仄,光线不足,难以满足多样化的烹饪需求,且缺乏西厨区域,对于追求品质生活的客户来说是一大遗憾。此外,一层未设置鞋帽间,使得入户后的收纳问题凸显。入户至客厅的动线杂乱无章,空间利用效率低下。更为关键的是,若要保留宽敞的大客厅,就无法再增设老人房,这对于有老人同住的家庭而言,无疑是个不小的困扰。
二层的布局同样差强人意。主卧的衣帽间和卫生间面积狭小,难以满足业主对于高品质生活的追求。儿童房也存在明显不足,缺少独立的卫生间和衣帽间,无法充分保障孩子的隐私与生活便利性。
客户对生活品质有着较高的追求,期望设置保姆房、影音室、洗衣房等功能空间。然而,以当前户型的空间条件,实现这些需求困难重重,空间资源极为紧张。
此外,后花园虽有 60㎡的可观面积,但从客厅到花园需要下行 8 个台阶,存在一米多的落差,这不仅在通行上极为不便,也在一定程度上影响了花园与室内空间的连贯性和互动性。如何巧妙化解这些问题,合理优化空间布局,满足客户的多元需求,成为摆在我们面前的重要课题。
负一层平面图
在这场充满挑战与创意的别墅改造中,我们大胆突破原有格局,进行了一系列精妙的设计与施工。
首先,我们果断打掉了负一层到一层的楼板,将客厅巧妙地布置到原来的负一楼。这一举措不仅增加了客厅的挑高,让整个空间显得更加宽敞大气,还充分且完美地利用了之前仅有 2.4 米层高的地下室。
接着,我们对花园进行了改造,将其下挖一米有余,并拆除了负一层与花园之间无承重功能的挡土墙。随后,增设了落地窗,让大量的自然光线涌入地下室。曾经昏暗潮湿的地下室,如今变得明亮通透,阳光能够肆意倾洒进来。
同时,我们还优化了客厅与花园之间的通行路径。以往,从客厅前往花园需要走下 8 个台阶,如今通过精心设计,仅需下一个台阶,便可以轻松到达花园,实现了从客厅到花园的无障碍通行,让空间的连贯性和互动性大大增强。
此外,我们还对空间进行了合理的拓展,成功扩大了别墅的整体使用面积。在新增加的空间里,我们精心规划出了保姆房、影音室等功能区域,满足了客户多样化的生活需求,让这座别墅不仅是一处住所,更成为了承载品质生活的温馨家园。
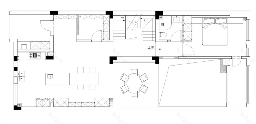
一层平面图
在对别墅一层的改造过程中,我们进行了一系列精妙的设计调整,让空间布局更加合理,功能也更加完善。首先,我们大胆改变了入户门头的位置,将其从西北边迁移至东北边。这一变动看似微小,却极大地优化了室内进门后的动线,让人们从踏入家门的那一刻起,便能感受到空间的流畅与便捷。
厨房的改造是此次一层翻新的一大亮点。我们在保证空间合理利用的基础上,加大了厨房的采光面积,让阳光能够充分洒入,为烹饪创造了明亮舒适的环境。同时,增设了宽敞的西厨区域,配备了时尚的岛台。当家中人少的时候,这里成为了温馨的用餐角落,家人可以围坐在岛台边,享受轻松惬意的用餐时光;而当亲朋好友相聚时,大气的大圆桌则能满足多人同时用餐的需求,营造出热闹欢乐的氛围。
考虑到居住的便利性和舒适性,我们在一层增加了衣帽间和老人房。衣帽间的设置,为衣物和杂物的收纳提供了充足的空间,让家居生活更加整洁有序。老人房的设计充分考虑了老人的生活习惯和需求,为他们打造了一个温馨舒适的居住空间。
此外,地下室挑空的设计一直延伸到一层顶部,这一巧妙的处理不仅增加了空间的层次感,还让整个别墅的视觉效果更加大气磅礴。站在一层餐厅向下望去,客厅的开阔景象尽收眼底,空间的互动性也得到了显著提升。客餐厅之间不再是孤立的个体,而是通过这一挑空设计,形成了一个有机的整体,让家人和客人在不同区域活动时,也能感受到彼此的存在,增强了家庭的温馨氛围。
二层平面图
在二楼的改造规划中,我们致力于打造一个舒适且充满温馨氛围的居住空间,主要设置了主卧、儿童房以及父母房。
主卧室的设计堪称奢华与实用的完美结合。我们特意增设了一个宽敞的衣帽间,配备了中岛和梳妆台,满足了业主对衣物收纳和梳妆打扮的全方位需求。大大的主卫更是功能齐全,拥有独立的淋浴间和独立的马桶间,还有长长的洗手盆以及一个漂亮的浴缸。在这里,业主可以尽情享受私密、舒适的洗漱时光,放松身心,舒缓一天的疲惫。
儿童房的设计充满了创意与童趣。我们精心打造了一个树屋,树屋下方是一张 1.8 米宽的舒适大床,旁边还设置了书房、衣帽间以及独立的卫生间。而树屋上方则规划出了小朋友可以躲猫猫、尽情玩耍的空间。这个充满想象力的设计,不仅为孩子提供了一个独特的成长空间,还增加了空间的趣味性,圆了业主小时候对自己房间的所有美好梦想。让孩子在这个充满爱的房间里,既能快乐玩耍,又能安心学习和休息,拥有一个难忘的童年时光。
父母房的布置同样温馨舒适,充分考虑到老人的生活习惯和需求,为他们营造了一个宁静、惬意的居住环境,让他们在这个家中也能感受到满满的关爱与温暖。通过这样精心的设计与规划,二楼的每个房间都各具特色,又相互协调,共同构成了一个理想的居住空间。
踏入家门,先邂逅一个艺术感的木质空间,恰似温柔木盒,隔绝喧嚣,包裹身心。悬浮鞋柜轻盈“悬浮”,一门到顶,简约大气又扩容。隐匿的感应灯带,在进门瞬间点亮,柔和光线倾洒,温馨满溢,每一步都仪式感十足。
走进这方深色西厨空间,深邃色调如夜的诗篇,优雅且神秘,尽显独特格调。中央的长岛台,大气实用,是美食创作的舞台,亦是亲友小聚的温馨角落。暖光灯带温柔晕染,为空间注入脉脉温情,让烹饪时光满是惬意与温暖。
踏入餐厅,一张黑色圆桌映入眼帘,沉稳大气,在白色墙面的映衬下,形成鲜明而和谐的视觉冲击。桌面摆放的绿植,以一抹清新为空间注入生机。墙面上,临摹赵无极的抽象画,笔触灵动,色彩交融,似在诉说无尽故事。一旁的米开朗基罗石膏像,带着艺术的庄重与典雅,静静伫立,整个餐厅宛如艺术的殿堂,别具韵味。
从餐厅向下俯瞰,挑空的客厅尽显大气风范。简约风格的沙发摆放其中,线条流畅,与空间完美相融。阳光透过窗户倾洒而入,为整个客厅披上一层金色的薄纱,光影交错间,营造出温馨而惬意的氛围。客厅一隅,艺术雕塑静静伫立,独特的造型为空间增添了几分艺术气息,彰显着主人不凡的品味。
眼前的悬浮艺术楼梯,宛如一件灵动的雕塑,轻盈地“悬浮”于空间之中。洁白的踏步,似云朵般纯净,每一步都仿佛踏在梦幻之上。超白玻璃扶手,通透澄澈,如水晶般折射出迷人光泽,与白色踏步相得益彰。木饰面背景温暖质朴,为整个楼梯空间增添了一份自然的质感,让艺术与实用完美融合。
踏入挑高客厅,开阔之感扑面而来。背景墙的木饰面一路延伸至顶,自然纹理尽显温馨质感。简约沙发线条流畅,舒适而不失格调。实心石材茶几厚重沉稳,与沙发搭配相得益彰。一旁的壁炉,极简设计却充满温暖气息。阳光透过窗户肆意倾洒,为整个空间披上一层金色薄纱,营造出舒适惬意又极具品味的氛围。
步入一楼的老人房,温馨的氛围便如轻柔的风般萦绕四周。木饰面背景墙温润质朴,带着自然的纹理与温度,仿佛能抚平岁月的痕迹。床头那小巧的吊灯,散发出柔和的暖光,在不经意间点亮了宁静的时光,为老人营造出一个舒适、安心的休憩之所,每一处细节都透露着对老人的关怀与爱。
主卧内,斜顶造型赋予空间别样风情。窗边精心打造的小书房,是阅读与思考的静谧角落。床头背景以灰色打底,留白处悬挂的挂画,似在无声诉说艺术之美。温馨的衣帽间配有中岛,衣物收纳井然有序。主卫更是尽显奢华,独立淋浴与马桶,使用便捷又私密。线条优美的展示浴缸,搭配长长的洗手台面,实用又大气。灰色瓷砖质感满满,为整个空间增添沉稳高雅格调。
踏入这间卫生间,一股清冷之意扑面而来。顶部巧妙引入的天光,为空间洒下自然而柔和的光线,让整个区域明亮又通透。立柱盆搭配木色抽屉,刚柔并济,在硬朗中融入一丝温润。灰色瓷砖整齐铺陈,纹理细腻,尽显干净高冷的气质,营造出一个简洁而不失格调的卫浴空间。
走进这间儿童房,纯净的白色与温润的木色相互交织,营造出温馨又舒适的氛围。房间里最引人注目的当属那座别致的树屋,下方是柔软的床铺,供孩子安然入眠,上方则是充满童趣的玩耍空间,是孩子专属的小小天地。这样的设计,圆了女业主儿时的梦想。儿童房功能齐全,不仅带有安静的书房,方便孩子学习成长,还有独立的衣帽间,满足收纳需求。连接的卫生间更是充满了可爱的气息,粉色的洗手台搭配小巧的浴缸,旁边的小熊壁龛萌趣十足,每一处细节都在呵护着孩子的童真,让孩子在这方小天地中快乐成长。
一楼公共卫生间以暖色调为主,温馨舒适。悬空马桶时尚易洁,水滴龙头别致灵动,暖光洒落,带来宾至如归的体验。
起初,阳光还透过窗户肆意倾洒,为客厅镀上一层温暖金光,我饶有兴致地记录着这美好的场景。谁知,照片拍着拍着,天色竟渐渐暗了下来。夜幕笼罩下,客厅却别有一番韵味。壁炉中跳跃的火苗,如灵动的精灵,散发着柔和暖意;茶几上的蜡烛悠悠燃烧,烛影摇曳间,浪漫悄然蔓延;电视墙的灯带,似隐似现地勾勒出空间轮廓,增添了几分梦幻色彩;一旁的艺术雕塑,在光影交错中,更显神秘与独特。这夜晚的客厅,每一处细节都散发着迷人魅力,令人沉醉其中,不舍离去。
项目名称:长沙市开福区堤亚纳湾
项目地址:湖南长沙
建筑面积:435 ㎡(外框面积含挑空树屋阁楼)
园林面积:60㎡(后院)+40㎡(前坪)+50㎡(屋顶花园)
设计风格:极简主义
设计机构:长沙行舍空间设计
室内设计:谢江波
参与设计:钟颖晖 刘阳 洪佳琪 段硕
售价: 1 金钱
设计美学与现代功能完美结合的典范。通过定制化设计、精挑细选的家具与软装陈设,打造成一处永恒的美学空间。设计美学与现代功能完美结合的典范。通过定制化设计、精挑细选的家具与软装陈设,打造成一处永恒的美学空间。]空间氛围营造很棒,功能与美学很好的兼顾到了
客服
消息
收藏
下载
最近

























































