查看完整案例

收藏

下载
△ 万安县文化馆
△ 万安县博物馆
△ 万安县图书馆
项目临赣江而建,紧邻三条主要市政道路,位于万安县中心城区的心脏地带,占地面积达126,469平方米,核心设计包括万安县三馆建筑设计,其中图书馆(建筑面积6,100平方米)、博物馆(建筑面积5,495平方米)及文化馆(建筑面积6,000平方米),园林景观工程(绿化面积95,603.5平方米),建筑装饰设计以及沿江路道路工程、驳岸栈道设计等。
△ 现状区位分析
总体设计遵循了现状条件与规划理念的和谐统一原则,以赣江古驿道及十八滩文化为核心,依托地块形似船体的自然形态,结合毗邻赣江风景带的区位优势,提炼并展现万安县跨越千年的文化底蕴与精髓,通过创新性的呈现方式,将该区域塑造成为彰显城市特色的标志性名片。
△ 总平面图及景观、主要建筑示意图
园区采用“一船、三馆、九园”的景观布局,以万安县丰富的人文历史资源为支撑,打造地方特色文化景观的同时,构建了一个集环境优美、功能完善、布局科学、主题鲜明、形态典雅于一体的综合性休闲、娱乐及健身园区,全面满足不同游客群体的需求。
△ 区域民俗文化分析
建筑设计以中国古代“万字纹”作为主要文化符号,采用中式传统院落空间布局理念,融入“天人合一”的哲学思想,我们试图探索一种既契合当代社会发展需求,又深深植根于传统历史文化,同时与现代设计风格相融合的理想建筑空间布局。
( WAN AN )。
万安县图书馆
图书馆依据当地文化特色,将其建筑平面巧妙布局成船形,以此抽象表达万安水驿站及十八滩的深厚文化底蕴。建筑设计融合中国古典美学,主体采用唐代建筑风格,同时融入民国时期建筑元素,形成独特的细节设计。
△ 万安县图书馆
图书馆外墙面以纯净的白色为主色调,基座则选用青砖材质,营造出古朴而典雅的视觉效果。鲜明的船形轮廓外立面,与周边博物馆建筑风格相呼应,形成统一而富有特色的城市文化景观。
△ 图书馆外立面
室内的阶梯式看书台设计,不仅满足了日常阅读需求,还具备多功能性,可灵活转换为剧场或报告厅使用,极大地提升了空间利用率和实用性。
△ 图书馆阶梯阅览室
( WAN AN )。
万安县博物馆
博物馆受地形限制,设计为坐北朝南的长方形布局。建筑共三层,在三馆中为最高。内庭设计中巧妙融入绿植元素,同时借鉴了历史悠久的十八滩文化,部分设计灵感汲取自传统船舫形态。这一设计不仅彰显了对地域文化的尊重与传承,更为博物馆赋予了别具一格的特色与魅力。
△ 博物馆内庭空间
△ 博物馆外立面
( WAN AN )。
万安县文化馆
文化馆坐西朝东,由于地块东西方向的宽度不足100米,为了最大化利用空间,建筑规划为长方形布局。外观设计融入唐风元素,我们希望每一处细节都透露出对传统文化的尊重与传承,使得整个建筑不仅具有现代功能,更承载着丰富的历史文化内涵。
△ 万安县文化馆
△ 一层大厅(左图)与二层报告厅(右图)
文化馆的主要职能是服务于广大人民群众的娱乐休闲生活,优越的地理位置也为建筑增添了独特的魅力。文化馆东侧特别设置了宽敞的广场,这里将成为市民们进行户外活动的理想场所。
△ 文化馆外立面
种植设计重视对现状樟树的保护与利用,对于长势良好的樟树以保护为主,采用先避让,后移植的方式,优先选择本土植物,尽量做到四季有花,适当注重春、夏、秋、冬四季的季相变化,力求实现将开发建设与现有生态资源相互协调。
△ 万安县博物馆
总之,万安县沿江路北延及三馆建设项目不仅是一项城市建设的壮举,更是一次文化与自然的和谐共生。以建筑设计为核心,园林景观为翼,我们希望将这片热土打造成集文化传承与城市展示于一体的新地标。
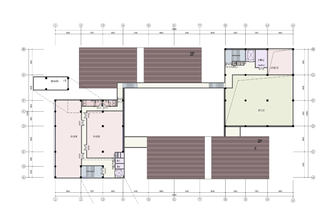
△ 图书馆地下一层平面图
△ 图书馆首层平面图
△ 图书馆二层及夹层平面图
△ 图书馆屋顶层平面图
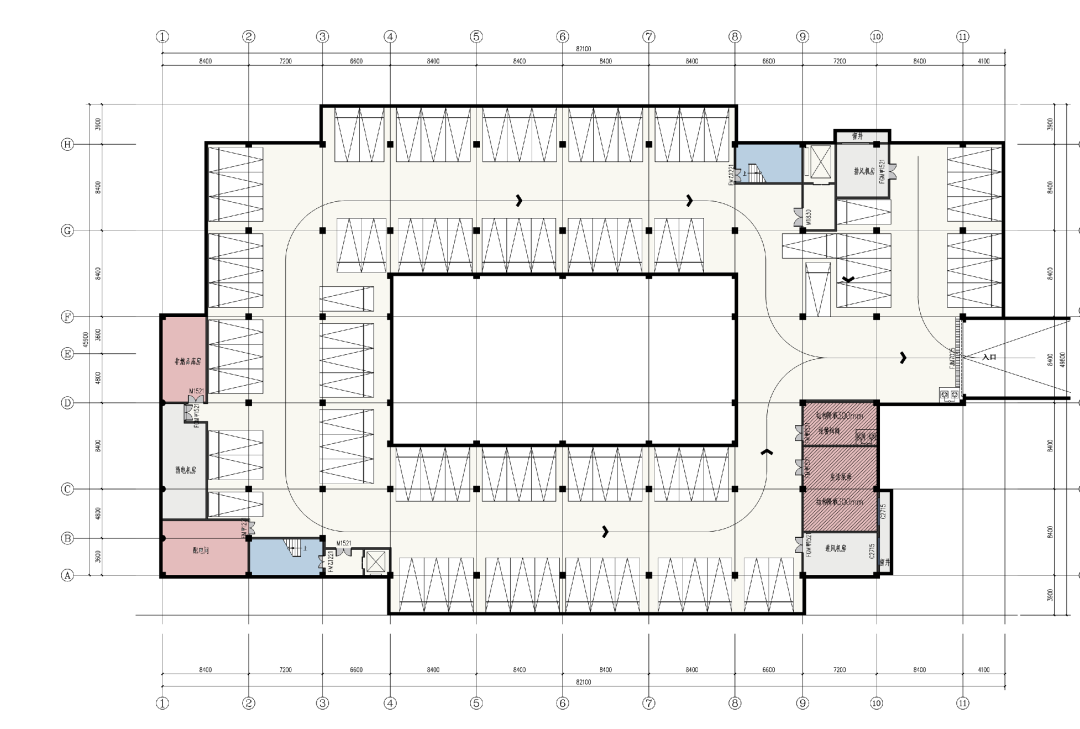
△ 博物馆地下一层平面图
△ 博物馆首层平面图
△ 博物馆二层平面图
△ 博物馆三层平面图
△ 博物馆屋顶层平面图
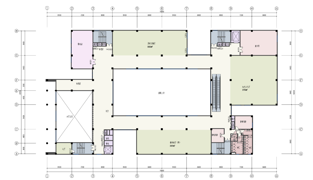
△ 文化馆地下一层平面图
△ 文化馆首层平面图
△ 文化馆二层平面图
△ 文化馆屋顶层平面图
完整项目信息
项目名称
万安县沿江路北延及三馆建设项目
项目类型
文化建筑 展览馆
项目地点
江西省万安县
项目状态
已建成
设计时间
2019年
设计阶段
方案
设计、初步设计、施工图设计
主创建筑师
曾繁柏 郭丽文
方案设计团队
范颖 沈若宏 李宝志
施工图设计团队
沈若宏 李宝志 张旭 龚建军 郭士卫 李胜阳 胡伟鹏 郝月波
建筑面积
三馆
总建筑面积31943平方米、绿化面积95603.5
平方米
业主
万安县住房和城乡建设局
建筑
•
新纪元
设计
•
新生活
建筑设计 城市更新 室内精装
精品景观 文旅规划 机电顾问
官方网站
客服
消息
收藏
下载
最近






































