查看完整案例

收藏

下载
集野木工的工厂坐落在漳州市郊的云洞岩下。这里现在以盐鸡闻名。但从五代开始,这座陡峭的山岩便留下了历代名家、学者的步履和题刻,朱熹也曾在此讲学,留下“溪山第一”赠予这座理学名山。
▼项目概览
▼入口立面
从集野工厂往山上看,可以看见山岩叠峦,颇似一尊土地公(福德正神)庇佑此地。而他俯瞰的云洞岩下,如今土生土长的本地村民、安扎的工厂和往来的游客三位一体。从木材到家具的生产正是在这样一个地方展开。
▼庭院一角
▼庭院休闲区
集野木工的创始人之一的厚行家中从事古建修复,他告诉我,木工行业师徒相承,磨砺数十年才能从徒成师,因此木工匠较之其他工种,既有匠气也有文人气,木工厂也由此不同于其他工厂的管理。厚行处事斩钉截铁,另一位创始人元将待人热忱真诚,他们是集野木工的一体两面。
▼室内空间概览
▼吧台与座位区
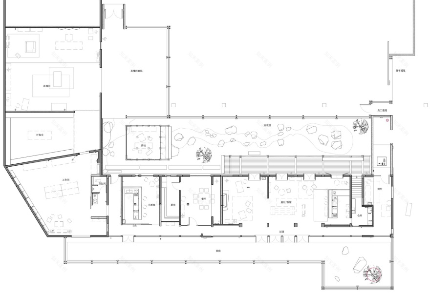
而一个木工厂也不能只是工厂,家具不只有工艺,它是审美、生活理解和情趣的展现。集野木工以柚木作为主材,也是钟情于它温润的质地和触感。我们希望将集野木工的产品和工艺放置于一个使用环境中,待人接物也需要一个有温度的空间,于是便有了这个Zea room。
▼咖啡及用餐区
▼茶寮
Zea room包含了咖啡馆、小酒馆、茶寮、餐厅、工作间和一条小溪,它与工厂由一堵小木条垒起的围墙隔绝开。Zea room的结构、门窗使用了大量柚木,这种热带硬木使它颇具东南亚气息。和退化建筑的茶室合作的“弓”系列、结合了大漆的野木在望系列和更轻松轻盈的“洋松”系列家具分布其中。也有很多来自东南亚的老柚木家具,它们是19-20世纪殖民风格的东南亚分支(影响了后来的南洋家具)。对称、实用和手工的东方装饰融合,加上热带闲散生活方式的投射,使得这些家具大多在形制上朴拙松弛。集野木工的家具也深受这些老家具影响,在此基础上守正创新。新老在Zea room的空间中也形成融合与参照。
▼木作展陈架
更重要的是,这样一个空间可以让对柚木、对非工业化家具和这种热带生活气息感兴趣的朋友在云洞岩下多做停留。溪流声、“土地公”、盐鸡、摇曳的芭蕉叶、弯弯绕绕的村路,还有我们的好朋友——自称是“大自然的搬运工”的老白——带来的经年累月暴露在阳光和雨水中长出石花的山石,让工厂增添了很多生气,也是集野木工的家具需要的生气。
▼外部照明细节
▼平面图
项目名称:集野木工 Zea room
业主:集野木工
项目地点:福建省漳州市龙文区云洞岩路6号集野木工
项目面积:635平方米
项目完工时间:2025年8月
空间设计:DEVOLUTION退化建筑
主创团队:汤建松,王琦
设计团队:蔡晶莹,林程辉,王娜
景观设计:石蛋景观
项目摄影:Elias
施工单位:如林装饰
装修主材:老柚木
设计美学与现代功能完美结合的典范。通过定制化设计、精挑细选的家具与软装陈设,打造成一处永恒的美学空间。设计美学与现代功能完美结合的典范。通过定制化设计、精挑细选的家具与软装陈设,打造成一处永恒的美学空间。]空间氛围营造很棒,功能与美学很好的兼顾到了
很棒的设计,整个空间的材料选择皆出于对真实与触感的尊重。
客服
消息
收藏
下载
最近

























