查看完整案例

收藏

下载
地点 | 湖南湘潭
楼盘 | 新景未来城
项目类型 | 复式
面积 |254㎡
设计师 | 刘十九
时光流转于洞石之上,温暖栖息于胡桃木之间
整个空间宛如一场洞石与胡桃木的材质交响乐
洞石的粗粝感与胡桃木的温润精致形成微妙对比
共同营造出丰富又统一的层次
原本突兀的承重墙
通过
弧形曲面
的木饰面包裹
从缺陷变成了视觉焦点
它不仅柔化了空间线条
其流畅的动感更与一旁的旋转楼梯形成了巧妙呼应
让整个客厅的流动性倍增
▼一楼客厅
Living room on the first floor
一半展示热爱,一半收纳生活
设计师巧妙运用了‘二分法’构图
左侧极简:留白的墙面搭配一幅精心挑选的挂画
呼吸感十足,如同乐句中的休止符,令人遐想
右侧极繁:但这份‘繁’并非杂乱
而是被精心规制于柜体之中
四扇胡桃木玻璃柜门如同珍藏室的窗口
将心爱的手办与收藏品的故事娓娓道来
而另外四扇米白色柜门则谦逊地退后
将所有生活的芜杂悄然隐藏
一左一右,一露一藏
是功能与展示的极致平衡
▼客厅沙发背景墙
Sofa background wall on the first floor
不妥协的咖啡星人
午后阳光穿过百叶窗
在浅色台面上投下斑驳的光影
手冲壶细流缓缓
咖啡粉肆意膨胀
空气中弥漫着浓郁的香气
这个角落
是快节奏生活中的一个缓冲带
是只属于我的沉思时刻
▼一楼餐厨
The dining kitchen on the first flo
or
于胡桃木的包裹中,安放一夜好梦
卧室,是家中最应体现‘自私’的地方
一切设计都应以主人的舒适和情感为核心
这间主卧,没有追逐浮华的潮流
采用了极具安全感的半高木饰面墙裙
高度恰到好处的
保留了墙面的呼吸感
又与衣柜、地台床头柜色调高度统一
形成了极强的整体性
构筑了一个沉稳、温暖、令人彻底放松的治愈匣子
它既是高效的办公延续
更是高质量的睡眠保障
▼一楼主人房
Master room on the first floor
一盏灯,一幅画,一间让客人安睡的暖心卧室
对于不常使用的客房,过度装饰是一种浪费
但丝毫不花心思则是一种怠慢
这间客房的设计哲学
在于用最克制的笔墨
书写最舒适的体验
它不喧宾夺主
却用和谐的色调、柔和的光影和恰到好处的艺术点缀
为远道而来的亲友准备了一份‘刚刚好’的安静与尊重
▼一楼客房
Rooms on the first floor
清风、美食与暖光:共筑一方食事烟火
木质吧台和餐椅的木色部分带来了自然温润的质感
白色烤漆桌面干净明亮
与嵌入柜体的电器面板相呼应
黑色餐椅腿则压住了空间的轻盈感
增添了一丝现代与稳重
这种‘木、白、黑’的经典三角配色
让空间层次丰富且永不过时
风扇吊灯是功能主义的胜利
复古的造型兼顾了颜值,提升夏日用餐的舒适度
而吧台上方那盏独特的造型灯,则是情调担当
营造出温馨小酌的浪漫场景
▼二楼餐厅
Restaurant on the second floor
双轨出入,美味流转于方寸之间
厨房,是家中最具烟火气的地方
也是最考验设计功力的地方
两个出入口的设计,是这个厨房的格局灵魂
它彻底打破了传统厨房‘面壁’的封闭感
创造了洄游动线
极大地提升了空间的互动性和便捷性
妈妈在灶台前忙碌时
也不会与家人完全隔绝,可以随时交流
这正是‘半开放’设计的精髓所在
▼二楼厨房
Second floor kitchen
天窗下,格栅间:
我家客厅拥有一整天光影放映厅
如果说一楼的客厅是沉稳的复古序曲,
那么二楼的客厅便是一首轻快明亮的光影协奏曲
它位于抬高的地台之上
本身便自带‘舞台感’
而设计师面对复杂的原始结构
非但没有回避
反而以一场精妙的‘光影魔法’
将这个空间变成了整个家中最接近艺术馆的存在
▼二楼客厅
Second floor living room
所有家具的布局都围绕着‘自由’与‘观景’展开
可移动的电视机打破了空间的固定性
让观影模式可以随心切换
沙发被特意安置在最佳观景位
天窗和超白玻璃窗下
一侧是木框包裹的露台风景
另一侧是头顶的流光溢彩
坐在这里,仿佛置身于一个舒适的‘观景舱’
室内外的界限被模糊
心境也随之变得开阔明朗
木色包裹的温柔岁月:
这间房盛满了静谧时光
这间卧室,每一处设计都诉说着对居住者的深刻理解与尊重
从衣柜、床、到梳妆台和凳
全部采用了协调的木色
它不张扬,却足够体贴
它很简约,却功能俱全
在这里,生活是慢下来的,是在木香中安眠
在光影中阅读,在摇椅中回味
这或许就是我们能给予长辈最好的礼物
一个完全属于她自己的、被温柔以
待的宁静世界
▼长辈房
Elder's room
▼一楼原始户型
The original apartment type on the first floor
▼一楼原始户型
The first floor plan is renovated
▼二楼原始户型
The original apartment type on the second floor
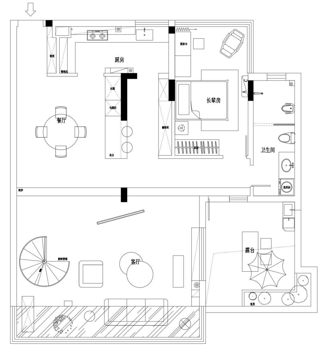
▼二楼方案改造
The second floor is renovated
客服
消息
收藏
下载
最近




































