查看完整案例

收藏

下载
地点 | 株洲醴陵
楼盘 | 爱情海中央城
项目类型 | 平层
面积 |180㎡
设计师 | 陆凌
收纳| 暖意|极简美学
电视墙,
以永恒黑白谱写空间韵律。
阳台侧,
纯白悬浮造型柜轻盈律动,
收纳与美学共生;
下方电子壁炉跃动科技暖意,
光影在极简线条间流转,
静享质感生活的温度。
▼客厅电视背景墙
TV background wall in the living room
从阳台悬浮白柜收纳光影,
到深邃电视墙聚焦视线,
电子壁炉无声升温;
过渡至中央,胡桃木书桌界定工作与休闲;
背景,镂空木柜陈设心之所好,
沉稳黑沙发拥抱慵懒时光。
层次分明,功能交融,
演绎现代意式生活范本。
意式格调 | 材质的交响诗
转身,视线掠过沉稳黑皮沙发,
落于温润胡桃木书桌,
延伸至后方镂空展示柜。
木的呼吸、
光的舞蹈、
石的冷峻、
皮的质感,
在极简框架下共奏空间韵律。
▼客厅沙发背景墙
Living room sofa background wall
洞石呼吸|科技脉动
天然洞石岛台,
承载时光凿痕,
散发原始力量。
其后,哑光黑木巨柜沉稳内敛,
将现代生活的核心电器——冰箱、烤箱、洗烘机悉数消隐。
一道未来感光晕自柜体温柔溢出,
科技脉搏于自然肌理之上悄然律动。
▼餐厅
Kitchen
儿童房 | 木之温度
温润胡桃木墙拥抱双床,
对称壁灯如守护星辰,
洒落柔光。
天然木香伴童梦,
在极简的秩序中,
呵护每一份好奇与安眠。
▼儿童房
Children's room
长辈房 | 覆盖全维生活场景
同一抹胡桃木色,
化作整面温暖背墙。
天然肌理成为安全感最温柔的注脚。
洞石的粗粝、黑白的冷冽,
在此被木的包容悄然中和。
材质穿越空间,
在功能与情感间自如转换,
诠释意式设计的智慧与温度。
▼长辈房
Elder's room
洞石与胡桃木|空间的二重奏
一整面洞石岩板磅礴而立,
粗粝原始的肌理是安眠的厚重底色。
左侧,一盏意式壁灯如雕塑低语,洒下私密光域;
胡桃木地台自床边延伸,
温润承载晨昏。
大地之石与温厚之木,
在静谧中达成终极平衡。
静谧至此,是安眠的终点。
▼主人房
Master
room
意式极简 × 赛博绿洲
代码与电流仿佛在空气中嗡鸣。
这里是主人的未来战场,
也是个性最张扬的藏宝洞。
从大地肌理的温厚,
到数字霓虹的眩惑;
从对称秩序的安宁,
到科幻机甲的躁动。
意式框架包容冲突,
于极简中绽放生活的多面灵魂。
天然肌理拥抱数字血脉,
静谧私域藏匿机甲战场。
于极简框架,容纳生活的所有可能。
▼衣帽间
C
loakroom
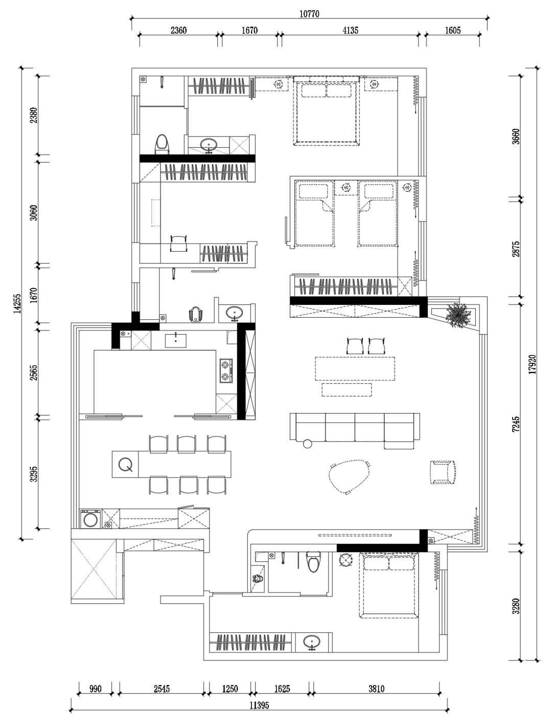
▼原始户型
Original house type
▼方案改造
The renovated
客服
消息
收藏
下载
最近




























