查看完整案例

收藏

下载
生活是自己的艺术品
用心创作,赋予其意义
—— 路易斯·海恩斯
本案位于绿城黄浦湾,307㎡ 精装交付大宅。屋主一家长期居住于此,但随着家庭成员结构的变化以及对生活品质要求的提升,原交付标准已无法满足当下的功能需求。屋内的设施也因多年使用出现老化问题,加之最初的布局缺乏合理的动线规划和功能分区,空间利用率并不高。综合考虑下,屋主决定重新改造。
在需求访谈过程中,了解到男女屋主均在家办公时间较长,且对“安静、独立”的工作空间有较高要求。尤其是男屋主,他特别强调对书房私密性与静音效果的需求。
原户型存在空间冗余,许多功能区未被合理使用等问题。设计师决定打破原有结构限制,将原本的四房两厅三卫格局,重新规划为五房三卫的布局。不仅成功多出两个独立空间,同时使整体公共区域更为宽敞、气场更足。
// 玄关·打通界限,重塑生活场域
玄关通过拉宽左右两侧尺度来弥补进深较浅的局限,使其保留大平层应有的仪式感。墙面采用整面木饰面包裹,地面则以拼花工艺打造出中式风格的手绘金箔图案,寓意吉祥美好。右侧设置绿植小景与壁灯照明,不仅丰富了入户的第一印象,也提升了归家的温馨感。
隐藏式鞋柜嵌入木饰面墙内,既满足收纳需求,又实现了视觉统一。整个玄关区在有限的空间里做到了极致利用,并将更多的面积让渡给餐厅与吧台,实现真正的“功能优先”。
// 厨餐厅·家庭互动的核心地带
为了释放更多有效空间,设计师拆除了原玄关、储物间及衣帽间的墙体,将多个零碎区域进行一体化整合。餐厅则原先边缘化的位置移至空间中心,与玄关和客厅形成联动关系,打造真正意义上的“家的核心”。
从玄关进入后,映入眼帘的是一个宽敞明亮的餐厅和吧台区域。相比原设计,新布局提升了空间的整体气场,能够轻松容纳一张2.5米长的餐桌和一个超过2米的岛台,既满足了日常用餐需求,也为家庭聚会提供了理想场所。
原来的独立客餐厅整合为一个连续的空间,不仅增强了家庭成员间的互动性,还使得原本用于餐厅的空间得以重新分配:一部分转化为一间小房间,另一部分则扩展为一个大型中岛区。中岛区设有一面大镜子,可供女儿练习舞蹈或瑜伽,同时这里也是放置佛龛柜的理想位置,
佛龛柜采用嵌入式圆弧柜设计,
既保证了宗教信仰的庄重感,又不失现代家居的简洁美学。公共走廊尽头设置了带有藤边装饰的隐形门,打开后是一个备用的小房间,专为来访的父母或亲友提供临时住宿。
// 客厅·打通界限,重塑生活场域
为了实现屋主所期望的“宽厅”设计,设计师将客厅与书房打通,并将两者与餐厅形成联动。
客厅选用了RocheBobois B&B Italia沙发,这款沙发不仅是舒适度的象征,其背后的设计更强调了客厅的社交属性。沙发背面对着餐厅区域,与左侧的钢琴区和右侧的阅读角形成自然过渡,创造出一个开放而连贯的生活空间。沙发背面安装了一块壁画电视。在不使用时显示世界名画,既是一件艺术品,又具备实用性。
南面区域,设计师将原本属于客厅的部分空间划归为新的书房区。这一改动不仅让客厅变得更加宽敞明亮,同时也创造出一个独立的家庭书房。
移门打开时,书房融入客厅。书房内设有一张大型圆木桌台,既可供家人围坐一起阅读、做手工,也可作为临时工作区使用。特别是对于姥姥来说,她可以在白天照顾孩子的同时,在这里安静地看书学习,享受片刻宁静。
书房背面配置了一整面墙的大书柜,不仅满足了大量的藏书需求,也提供了丰富的展示空间。无论是孩子在此完成作业,还是全家人共同参与的手工活动,都能在这个充满书香气息的环境中找到归属感。
// 主卧·“另辟新径”创造温馨私密书房
原主卧面积过大,不聚气。设计师缩小了主卧面积,并通过隐形门设计将其与客厅相连。主卧旁边则腾出了一个温馨而私密的书房空间。尽管面积不大,但这个私密书房功能齐全:配备两人的办公桌、舒适的卡座以及两侧的开放式书架。卡座上方还安装了投影仪,方便夫妻二人在工作之余享受电影时光。
整体现代简约的风格,融入轻法式的线条元素,营造
出简约而不失精致的氛围
。硬装上,以原木色和米白色为主色调,地板选用原木材质,卫生间干区则采用了洞石元素,确保整个空间显得干净整洁。墙面和吊顶均进行了倒弧处理,进一步提升了空间的流畅感和温馨感。软装上,则选择了带有装饰主义元素的地毯和异形定制地毯,以及弧形布艺沙发等家具,为空间增添了丰富的层次感。
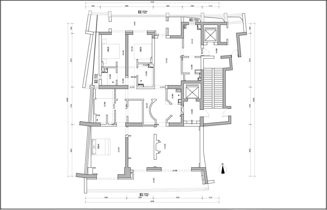
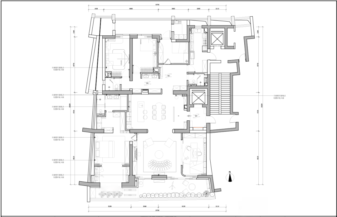
// 户型设计
原始平面图
平面布局图
项目情况 |
项目地址丨Address:上海·黄浦
面积丨Area: 307㎡
设计单位丨Company:上海示觉室内设计事务所
服务方式丨Service:硬
装+软装全案设计服务,施工+主材+软装代购等全案落地服务
往期精彩
客服
消息
收藏
下载
最近

































