查看完整案例

收藏

下载
2025丨05丨15
设计记录
Daily records
热爱丨落地丨还原
NEWCASE
address:海伦小镇
style:现代法式风
Built-up area:460 ㎡
designer:三伏设计
Construction:三伏U+home
项目介绍
将法式的优雅浪漫与现代的舒适便捷揉进这套460㎡的叠墅中,细节处的精心打磨,既保证了整体的美观呈现,又兼顾了实用性,为生活赋予松弛与质感并存的魅力。
(2025)
设计空间
。
PART/1
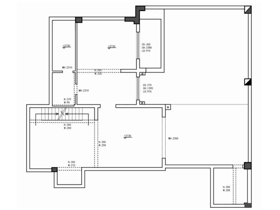
一楼
左滑查看原始平面图
设计亮点:
①阳台门洞扩大,门垛采用弧形面处理,增加室内采光的同时,也考虑到了柔和的视觉效果呈现。
②老人房卫生间考虑到淋浴、马桶、洗漱台以及浴缸功能的四合一,适当的向卧室外扩,不会让卫生间显得拥挤。
01.
一楼客厅
感受光影的变化
Experience the changes of light and shadow.
光线在空间中的自由流动,能够为生活带来不少明媚色彩。考虑到这一点,我们将一楼客厅阳台的门洞扩大,增加室内采光的同时,木饰面装饰的融入也让整个空间的联系变得更加紧密。
电视墙岩板与石膏线的巧妙结合,既有法式的优雅氛围,又有现代的独特质感。装饰上选择砖红色元素作为空间跳色,单人沙发、工艺品摆件等,温馨的暖色调不显突兀,为室内增添了一抹精致色彩。
SANFU
DESIGN
02.
餐厅
重拾旧时光的浪漫
Restore the romance of old times.
与法式优雅契合的餐边柜,搭配富有艺术气息的肌理装饰画,这里有独属于法式的浪漫。餐桌上方选择曲线吊灯,柔和的光源为用餐提供温馨的气氛,简约却兼顾了功能性与空间美学。
SANFU
DESIGN
03.
儿童房
陪你一起慢慢长大
Growing up slowly with you.
考虑到随着孩子年龄的增长,对卧室的需求也会更加成熟,所以我们在儿童房的设计中增加了既有趣味性又不失质感的元素。
在卧室床头背景墙中采用简约的配色和线条装饰,一侧的精致吊灯可以提升空间质感。
靠近窗户的位置搭配带有洞洞板的书桌,可以随意调节的收纳架增加空间的灵活趣味性,充足的自然光线也能满足日常学习所需。
SANFU
DESIGN
04.
卫生间
生活与艺术的平衡之美
Every heartbeat moment.The beauty of balancing life and art.
淋浴、马桶、洗漱台以及浴缸功能的四合一让一楼的主卫更显精致,洗漱台嵌入两墙之间,再搭配侧边的壁龛,为日常使用提供了充足的收纳空间,整体配色简约却高级感满满。
(2025)
设计空间
。
PART/2
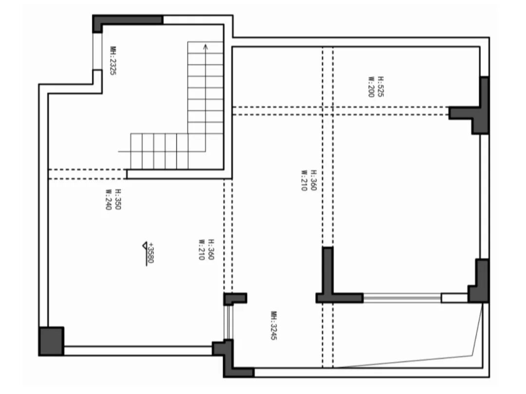
负一楼
左滑查看原始平面图
设计亮点:
①通过对室内空间的合理规划,定制柜体将收纳功能最大化。
②主卧由双开门进入,其中通过过厅设置独立的衣帽间和梳妆间,既满足了空间的显大效果,又能确保室内的隐私性与静谧环境。
05.
负一楼休闲区
每一个心动的瞬间
Every heartbeat moment.
不同于一楼对于高级质感的着重考量,负一楼整体空间以温柔优雅的基调为主,通过色彩与材质的碰撞,营造出一个悠闲舒适的休息空间,让心灵在此处能够得到最好的放松。
暖调的粉棕色背景墙在素雅的白色空间中铺展开,搭配复古的铁艺灯具、柔软的绒面沙发,以及充满温润气质的木地板,不同材质的元素和谐共处,也让整个室内的温柔气质呼之欲出。
SANFU
DESIGN
06.
茶室
享受慢节奏生活
Enjoy a slow paced lifestyle.
进入到茶室,整个空间都萦绕着沉稳雅致的气息,其中深色的复古实木柜既满足了空间的收纳需求,自带的弧形元素装饰也延续了法式的精致与优雅,为生活提供惬意休闲的品茗场景。
SANFU
DESIGN
07.
主卧
日出日落都浪漫
It's romantic at sunrise and sunset.
通过低饱和度色彩与弧形元素的搭配,为卧室营造出温柔缱绻的休息氛围。弧形转角+石膏线搭配的天花板,一眼望去柔和舒适;小面积的绿色点缀,自然的融入也让人心情愉悦。
在卧室临窗的小角落设置休闲区,背景线条与精致的角花装饰,再选择复古有质感的落地灯与绿色单人沙发组合,细节处的精心打磨将生活的浪漫尽数呈现。
SANFU
DESIGN
08.
景观花园
四季都与你有关
All seasons are related to you.
必不可少的绿色植物为花园带来活力与生机,搭配简约的桌椅、黑色的铁艺扶手,以及花园用水与收纳柜的组合,满足日常休闲所需的同时,也让整个环境看起来充满现代时尚感。
SANFU
DESIGN
(2025)
设计空间
。
PART/3
负二楼
左滑查看原始平面图
设计亮点:
①负二楼主要作为休闲区,通过拱形门洞去到各功能区,整体呈现美观柔和,也为室内增添许多趣味性。
②在确保休闲区开阔轻松氛围的情况下,规划出独立的杂物间满足生活中的储物需求。
09.
地下室休闲区
猫咪的专属乐园
The exclusive paradise for cats.
沿着楼梯往下是一整层的猫咪乐园,可爱的猫咪用品与拱形元素为小小空间增添着趣味性,去繁从简的设计也让室内充满轻松自在的氛围。
SANFU
DESIGN
(2025)
施工合集
。
PART/4
将纸上设计化为触手可及的家,在整个施工过程中,每一次的巡检验收都是对工地质量的严格把控,每一次的耐心沟通、专业解答都是为了让家更好的落地,呈现理想中的效果。
客服
消息
收藏
下载
最近















































