查看完整案例

收藏

下载
「Theme Park」主题公园,源起荷兰,兴盛于美国。是以预先策划的特定主题(如童话故事、地域文化、影视IP)为核心,通过空间规划、设施配置、活动设计形成沉浸式体验的休闲娱乐综合体。
「LEGO」乐高,创立于1932年,公司位于丹麦,全球知名的玩具制造厂商之一。
其语义来自丹麦语“LEg GOdt”,意为“play well”,即:玩得快乐。
「MOC」My Own Creation的缩写,即跳出乐高官方指定的框架,完全依靠玩家自己的想象力去创造新的模型。在 MOC 中设计者可自由发挥创意,天马行空地构建出任何复杂的结构。
Blue Bottle Coffee爱琴海缤纷里店位于上海金山,毗邻上海乐高乐园度假区。项目是该品牌在中国内地的第十三家门店。不同以往,这次跟随xy,一起体验新玩法。
科技组MOC,趣味盎然
将整个项目设计视为一场与乐园关联的MOC,我们首先择取其产品线中的一个独特系列:Technic,其套装通常用于搭建车辆、飞机等现代机械工程设备。这一系列常用于机械的结构和基础的建设,裸露的部件可以让我们兼顾道具的新颖造型并充分利用其语言增加空间的互动体验。
FREE STANDING COUNTER中岛咖啡吧台
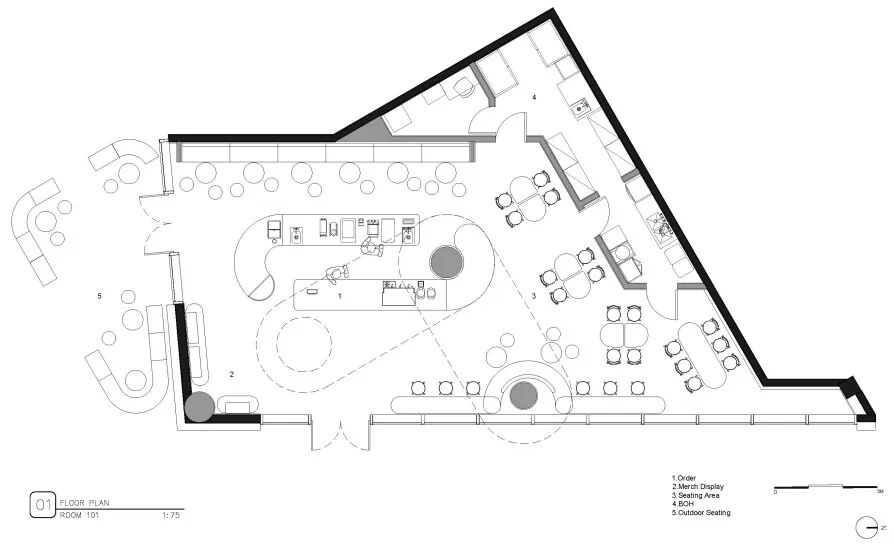
平面图
规划后的平面并不具备太多的施展空间,为消解场地自带的“柱”体,xy拣选了科技系列(Technic)中的四大部件:Beam、Pin、Connector,Axle 对应建筑结构中“梁”、“柱”、“连接件”与“轴”。将三层按说明组装后,进行一定角度的旋转,就得到了蓝瓶咖啡全球首个“Free Standing Counter”概念的中岛吧台。
©Atelier xy 吧台拼装“说明书”
吧台组装示意
蓝瓶咖啡室内:被中岛吧台消化的两根柱体
并且,第
二层Beam的远端孔洞中被加入另一组
Technic组件与
室内天花直接相连,以此抵消吧台天花的重力,这样既能保证整体结构的稳定性,又盼望游客在不经意的抬头间隙,挖掘更多与玩具关联的设计妙思。
由
Technic元素组成的另一个结构
靠近玻璃幕墙柱体的下方,Connector的结构特征被自然演化成弧形座椅的一部分,利用玩具的局部细节与室内家具兼融,也是我们对乐园主题的另一层解构与演绎。
室内部分座位的设计灵感来源
©Atelier xy 道具拼装“说明书”
Technic系列在细部的体现
砖块组MOC,经典复刻
区别于科技MOC,另一MOC被归纳为砖块MOC。旗下的子系列
Architecture Studio (21050建筑工作室套装)是极具深意的一款产品,摒弃说明书,洁白的1210块积木可自由发挥供玩家们创造出独一无二的建筑作品。
入口立面与冲破幕墙的LOGO
将立面的玻璃幕墙视为建筑MOC的透明砖块,由科技MOC构筑出富有秩序感的主体吧台并将结构元素穿透玻璃幕墙延伸至室外,标志性的蓝色logo穿透幕墙出现在游客视线之中,回应了乐园主题的畅然趣味与无限创意。
立面图(砖块堆砌)
用砖块堆砌的实墙:建筑MOC
墙面部分则分别采纳了建筑系列中常见的基础砖,透明砖与齿条砖作为室内设计语言;空间、形式与材质的无穷变幻,让积木玩具建筑超越了单纯的物理空间构建,由此深入到人们对空间、形态及艺术的认知层面。
以此复刻,是我们对同样追求细节与高品质蓝瓶咖啡文化的深切致意。
至简至美,融入社区
通过融合主题公园(Theme Park)简明轻松地传达Blue Bottle Coffee的信息,是一次全新的挑战。
场地图
手工模型研究
我们将来自美国西海岸文化的蓝瓶咖啡店融入到了缤纷色彩的乐高乐园当中。与此同时,xy专注于延续其他蓝瓶咖啡店的设计理念,即在空间中“创造出至简至美平等的关系”。
蓝瓶咖啡周边产品的陈列展示柜
我们期待在这个空间中可以形成独特的体验:巨大的积木组件和乐高MOC理念合作创造,不仅作为资深品牌迷会触发某种感官体验。第一次接触乐高或蓝瓶咖啡的用户,作为全新的咖啡店室内空间,它让人们在享用咖啡的同时,不论成人或儿童都可小憩并在这里探索片刻。
项目名称:蓝瓶咖啡上海爱琴海缤纷里店
项目业主:Blue Bottle Coffee
项目地点:上海金山
室内面积:150m²
外摆面积:4
0m²
完工时间:2025.07
主要材料
:水泥预制砖、FENIX、染色木、玻璃砖、人造石,不锈钢
空间摄影:Wen Studio
设计事务所:Atelier xy 向域设计事务所
设计团队:漆哓峰、王宇扬、宗雪梅
联络方式:info@atelier-xy.net
撰文:胡彦昀 王宇扬
特别鸣谢:蓝瓶咖啡品牌方、王典、Ezio、Emma
项目图片版权所有归属
蓝瓶咖啡
文字内容内容版权所有归属向域设计
▲CONSOMMÉ
▲Le Cave De Montrachet
▲海上潮
▲鸟沢TORISAWĀ
▲J.Boroski Shanghai Bar
加入我们
Follow
跟!
2025
©
Atelierxy all rights reserved
业务合作请联系
email: info@atelier-xy.net
instagram: atelier_xy
客服
消息
收藏
下载
最近
























